De Dietrich EVODENS AMC PRO, AMC 45, DIEMATIC EVOLUTION - инструкции и руководства
Котел De Dietrich EVODENS AMC PRO, AMC 45, DIEMATIC EVOLUTION - инструкции пользователя по применению, эксплуатации и установке на русском языке читайте онлайн в формате pdf
Инструкции:
Инструкция по эксплуатации De Dietrich EVODENS AMC PRO, AMC 45, DIEMATIC EVOLUTION
Краткое содержание
1 Безопасность 1.1 Ответственность 1.1.1 Ответственность производителя Наша продукция производится в соответствии с требованиями различных применимых Директив. В связи с этим она поставляется с маркировкой и всей необходимой документацией. В целях повышения качества нашей продукции мы постоянно стре...
2 О данном руководстве 2.1 Дополнительная документация Следующая документация доступна в дополнение к данному руководству. Руководство по установке и эксплуатации Требования к качеству воды 2.2 Символы, используемые в настоящем руководстве Настоящее руководство содержит специальные инструкции, отмеч...
3 Описание изделия Котёл AMC Pro поставляется с панелью управления, блоком управления и электронной платой расширения. Содержание настоящего руководства основано на следующей информации о программном обеспечении и навигации: Таб 1 Информация о программном обеспечении и навигации Название, отображаем...
4 Эксплуатация панели управления 4.1 Компоненты панели управления 1 Поворотный переключатель для выбора плитки, меню или настроек 2 Клавиша для подтверждения выбора 3 Клавиша возврата : Кратковременное нажатие на клавишу: Возврат на предыдущий уровень или в предыдущее меню Длительное нажатие на клав...
5 Руководство по эксплуатации 5.1 Изменение настроек дисплея 1. Нажать на клавишу .2. Выбрать Системные настройки . 3. Выполнить одно из действий, описанных в нижеприведенной таблице: Таб 4 Настройки дисплея Меню «Системные настройки» Параметры Задать дату и время Установка текущей даты и времени Вы...
Пикто грамма Меню Функция Защ.замораж. Задать режим защиты от замерзания; минимальная комнатная темпера тура защищает систему от замерзания Задать темпер. действий оотпления Задать комнатную температуру для каждого действия суточной про граммы. См.: Суточная программа для управления комнатной тем...
4. Выбрать действие. Отображается клавиатура с буквами, цифрами и символами. 5. Изменить название действия: 5.1. Нажать на вращающуюся ручку , чтобы повторить букву, цифру или символ. 5.2. Выбрать для удаления буквы, цифры или символа. 5.3. Выбрать для добавления пробела. 6. Выбрать символ на экране...
4. Выбрать день недели, который необходимо изменить. А День недели В Обзор запланированных действий С Список действий 5. При необходимости, выполнить следующие действия: 5.1. Редактировать время запуска и/или назначение запланированного действия. 5.2. Добавить новое действие. 5.3. Удалить запланиров...
6 Инструкции для специалиста 6.1 Доступ к уровню Специалиста Некоторые параметры, способные повлиять на работу котла, защищены кодом доступа. Только специалисту разрешено изменять эти параметры. 1. Выбрать плитку [ ].2. Для подтверждения выбора нажать на клавишу . 3. Для выбора кода использовать пов...
M Максимальная тепловая мощность F Заводская настройка Q Мощность (Hi) (кВт) R Скорость вентилятора (об/мин) M Максимальная тепловая мощность F Заводская настройка Q Мощность (Hi) (кВт) R Скорость вентилятора (об/мин) 6.2.5 Настройка отопительного графика Если датчик наружной температуры подключен к...
6.2.6 Сушка стяжки Функция сушки стяжки позволяет задать постоянную температуру подающей линии или ступенчатое изменение для ускорения сушки стяжки контура напольного отопления. Важная информация Настройка этих температур должна быть выполнена с учетом рекомендаций специалиста, выполняющего стяжку. ...
2. Если проверка на максимальной мощности завершена, то выбрать плитку [ ] для перезапуска меню «Трубочист». А Измен.режима тест.мощн. В Мин. мощность 3. Выбрать проверку Мин. мощность в меню Измен.режима тест.мощн.. Запускается работа на минимальной мощности. Выбранный режим проверки на мощности от...
9. При возможности следует выбрать Расш. счетчики или Расш. сигналы для считывания сигнала или показаний счетчика на уровне Специалиста. A Параметры Счётчики Сигналы Расш. параметры Расш. счетчики Расш. сигналы B Список настроек или значений Более подробно - см. Список измеренных значений, Страница ...
7 Примеры установки 7.1 Доступ к блоку расширения Если в панели управления котла нет места для установки (дополнительной) платы расширения, то установить плату в блок электронных плат расширения. Этот блок предлагается в качестве дополнительного оборудования. 1. Отщелкнуть крышку корпуса. 2. Снять к...
7.4 Настройка функции входа 0–10 В платы SCB-10 Существует три варианта управления входом 0–10 В электронной платы SCB-10: отключение функции входа. вход с управлением по температуре. вход с управлением по тепловой мощности Таб 24 клавиша > Установка > SCB-10 > Вход 0–10 В > Параметры Ко...
Таб 26 Модуляция мощности Входной сигнал (B) Теплопроизводитель ность (%) Описание 0–2,0 0 Котел выключен 2,0-2,2 0 Запрос тепла 2,0–10 0–100 Требуемая теплопро изводительность 7.5 Управление каскадом Если на ведущий котёл установлена Diematic Evolution, то можно управлять максимум 7 котлами с Ini...
1 Все котлы запускаются в каскаде, когда температура системы опускается на 3°C ниже заданного значения. 2 Первый котел останавливается, когда температура системы на 3°C превышает заданное значение. 3 Через 4 минуты останавливается второй котел, если ΔT< 6K, а температура системы все ещё более чем...
7.6.2 Пример подключения 1 Рис.35 1 котёл + 1 прямая зона + зона горячей санитарно-технической воды (ГВС) AD-4100034-01 A 1 B 2 C 3 4 AD-4100147-01 6 .3 A T X12 X13 X15 S-BUS X1 X9 X11 X2 X3 X4 X5 X10 RS SP L-BUS SCB-10 X14 X8 N L B N N L TS N L A N TS C R-Bus B R-Bus A +TA- TA 1 2 C B A Tsyst Tsyst...
7.6.3 Пример подключения 2 Рис.36 1 котел + 1 прямая зона + 1 смешанная зона AD-4100035-01 A M 5 T 3 4 C 2 1 B AD-4100137-01 6 .3 A T X12 X13 X15 X9 X11 X2 X3 X10 RS SP L-BUS SCB-10 X14 X8 +TA- TA 1 2 C A B Tsyst Tsyst Tdhw Tflow Tflow Tflow X14 N L B N N L TS N L A N TS T out Status R-Bus 1 2 3 4 +...
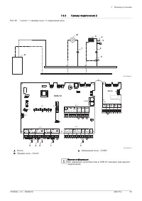
7.6.4 Пример подключения 3 Рис.37 1 котёл + 1 смесительная зона + зона горячей санитарно-технической воды (ГВС) AD-4100036-01 1 A 3 2 4 B 5 C 6 AD-4100138-01 6 .3 A T X12 X13 X15 S-BUS X1 X9 X11 X2 X3 X4 X5 X10 RS SP L-BUS SCB-10 X14 N L B N N L TS N L A N TS T out Status R-Bus 1 2 3 4 + 0-10V - C R...
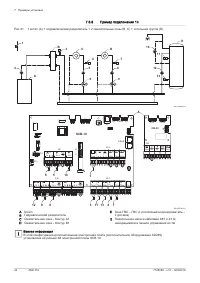
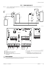
7.6.5 Пример подключения 4 Рис.38 1 котёл + 1 прямая зона + 1 смесительная зона + зона горячей санитарно-технической воды (ГВС) AD-4100037-01 1 A M 6 T 4 5 C 3 2 B 7 9 D 10 8 AD-4100139-01 6 .3 A T X12 X13 X15 S-BUS X1 X9 X11 X2 X3 X4 X5 X10 RS SP L-BUS SCB-10 X14 +TA- TA 1 2 C B A Tsyst Tsyst Tdhw ...
7.6.6 Пример подключения 5 Рис.39 1 котёл + буферный бак + 3 смесительные зоны + зона горячей санитарно-технической воды (ГВС) AD-4100038-01 1 A 2 M 11 T 9 10 D 8 13 12 14 E 6 5 7 C 15 16 F 17 B 4 3 AD-4100140-01 6 .3 A T X12 X13 X15 S-BUS X1 X9 X11 X2 X3 X4 X5 X10 RS SP L-BUS SCB-10 X14 X8 N L C X1...
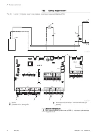
7.6.7 Пример подключения 6 Рис.40 1 котёл + 1 смесительная зона + 1 прямая зона + зона бассейна + зона горячей санитарно-технической воды (ГВС) AD-4100039-01 1 A 9 8 E 7 D 6 C M 5 T 3 4 B 2 10 12 F 13 11 AD-4100141-01 R-Bus Tout BL RL Tdhw CB-03 X131 X136 X4 X03 6 .3 A T X12 X13 X15 S-BUS X1 X9 X11 ...
7.6.8 Пример подключения 10 Рис.41 1 котёл (A) + гидравлический разделитель + 2 смесительные зоны (B, C) + котельная группа (D) AD-4100040-01 1 B A 2 3 8 7 9 D 5 4 6 C 10 12 E 13 11 AD-4100142-01 X8 N L X14 6 .3 A T X12 X13 X15 S-BUS X1 X9 X11 X2 X3 X4 X10 RS SP L-BUS SCB-10 X14 X5 N L B N N L TS N ...
7.6.9 Пример подключения 11 Рис.42 1 котёл + гидравлический разделитель + 3 смесительные зоны + зона горячей санитарно-технической воды (ГВС) AD-4100041-01 1 B A 2 3 M 13 T 11 12 E 10 8 7 9 D 5 4 6 C 14 16 F 17 15 AD-4100143-01 6 .3 A T X12 X13 X15 S-BUS X1 X9 X11 X2 X3 X4 X10 RS SP L-BUS SCB-10 X14...
7.6.11 Пример подключения 14 Рис.44 2 котла в каскаде + гидравлический разделитель + 1 смесительная зона + зона горячей санитарно- технической воды (ГВС) AD-4100043-01 1 B 3 A 2 4 C 6 5 7 D 8 10 E 11 9 AD-4100145-01 6 .3 A T X12 X13 X15 S-BUS X1 X9 X11 X2 X1 X3 X4 X2 X3 X4 X5 X10 RS SP L-BUS SCB-10 ...
8 Параметры 8.1 Общая информация о кодах параметров Платформа управления использует расширенную систему классификации параметров, измерений и счетчиков. Знание логики этих кодов облегчает их идентификацию. Код состоит из двух букв и трех цифр. Первая буква – это категория, к которой относится код.A ...
Код Текст на дис плее Описание Диапазон Подменю 45 65 90 115 DP020 ВыбегНасГВ С/3ХодКлап Время насоса ГВС/3- ходового клапана после нагрева ГВС 0 Секунды - 99 Секунды Газовое оборудов ание 10 10 10 10 DP034 СдвигВодона грГВС Сдвиг для датчика водонагревателя 0 °C - 10 °C Водонагр еватель ГВС 2 2 2 ...
Код Текст на дис плее Описание Диапазон Подменю Завод ская на стройка EP036 EP037 Конфиг.входа датчика Задает общую конфигурацию входа датчика 0 = Выключено 1 = Водонагреватель ГВС 2 = Верх.водонагрев. ГВС 3 = Датчик буфер. бака 4 = Верх. буферного бака 5 = Система (каскад) Аналоговый вход 0 NP00...
Код Текст на дис плее Описание Диапазон Подменю AC026 Часы работы насоса Счетчик кол-ва часов работы насоса 0 Часы - 65534 Часы Газовое оборудование AC027 Запуски насоса Счетчик кол-ва запусков насоса 0 - 65534 Газовое оборудование DC002 Циклы клапана ГВС Количество циклов переключающего клапана дл...
Таб 76 Счетчики на уровне Базового специалиста Код Текст на дис плее Описание Диапазон Подменю AC001 ВрПитОтСети Кол-во часов питания платы от эл.сети 0 Часы - 4294967294 Часы Функцион. системы CC001 CC002 CC003 CC004 CC005 Отр.часы насоса зоны Количество рабочих часов насоса для зоны 0 - 429496729...
8.3.4 Сигналы электронной платы расширения SCB-10 Таб 83 Навигация для уровня Базового специалиста Уровень Путь меню Базовый специа лист > Установка > SCB-10 > подменю (1) > Параметры, счетчики, сигналы > Сигналы (1) Для правильной навигации см. столбец «Подменю» в следующей таблице....
9 Техническое обслуживание 9.1 Регламент технического обслуживания Важная информация Котел должен обслуживаться квалифицированным специалистом с соблюдением требований национальных и местных правил и норм. Обязателен ежегодный осмотр. Выполняйте стандартные процедуры проверки и технического обслужив...
Таб 91 Проверка/настройка значений для O 2 при максимальной мощности для G31 (пропан) Значения при максимальной мощности для G31 (пропан) O 2 , % (1) AMC Pro 45 4,4- 4,9 (1) AMC Pro 65 4,6 – 4,9 (1) AMC Pro 90 5,1 – 5,2 (1) AMC Pro 115 4,9 – 5,4 (1) (1) Номинальное значение Таб 92 Проверка/настройка...
Таб 96 Проверка/настройка значений для O 2 при минимальной мощности для G30/G31 (бутан/пропан) Значения при минимальной мощности для G30/G31 (бутан/пропан) O 2 , % (1) AMC Pro 45 5,7 (1) - 6,2 AMC Pro 65 5,7 (1) - 6,2 AMC Pro 90 5,7 (1) - 6,2 AMC Pro 115 5,7 (1) - 6,2 (1) Номинальное значение Вниман...
9.3.6 Проверка горелки и чистка теплообменника 1. Снять трубопровод подачи воздуха на трубе Вентури. 2. Ослабить прокладку на газовом клапане. 3. Отсоединить разъёмы вентилятора (на передней и задней стороне). 4. Снять привинченный разъём с газового клапана. 5. Снять разъём электрода розжига с транс...
8. Использовать пылесос со специальной насадкой (дополнительное оборудование) для очистки верхней части теплообменника (топка). 9. Вакуумная очистка без верхней щетки на конце 10. Очистить нижнюю часть теплообменника специальным очищающим ножом (дополнительное оборудование). 11. Проверить (например,...
6. Отсоединить вентилятор. 7. Снять вентилятор вместе со газовым клапаном. 8. Проверить обратный клапан и заменить его, если обнаружена неисправность или повреждение или если комплект для технического обслуживания содержит обратный клапан. 9. Выполнить сборку в обратной последовательности. Внимание ...
9.4.2 Очистка коллектора для сбора конденсата 1. Снять разъем датчика температуры обратной линии. 2. Снять датчик температуры дымовых газов (при наличии) 3. Открыть защёлку на трубе отвода дымовых газов. 4. Вдавить верхнюю часть телескопической трубы отвода дымовых газов вниз до упора. 5. Вытянуть т...
10. Установить верхнюю часть трубы дымовых газов в нижнюю часть до отметки. 11. Установить трубу отвода дымовых газов таким образом, чтобы линия между двумя стрелками была обращена вперед к коллектору для сбора конденсата до отметки. 12. Установить разъем датчика температуры обратной линии. 13. Уста...
10.2 Журнал ошибок Панель управления содержит память ошибок, в которой хранится история последних 32 ошибок. Это позволяет считать параметры котла на момент возникновения ошибки. Например: Режим Подрежим Температура подающей линии Температура обратной линии Эти и прочие параметры могут оказаться пол...
11 Технические характеристики 11.1 Электрическая схема Рис.74 Электрическая схема AD-3001177-01 BR BR BL BL GN/ YW GN/ YW 2 3 1 X32 1 3 2 X33 2 3 1 2 4 1 3 X31 N L 24V, 50Hz 4 1 3 2 1 3 4 2 X1 BR BL GN/ YW 12 BK BK 1 2 1 4 BK BK 2 3 BK 1 X114 9 X111 BK BK BK BK 4 2 3 1 14 X115 BK BK BK BK 1 2 4 5 2 ...
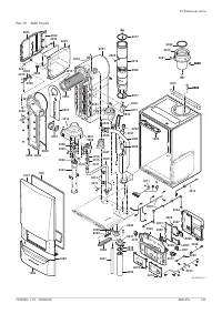
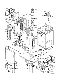
12.3 Перечень запасных частей Таб 101 Обшивка Позиции Артикул Описание 45 65 90 115 1001 7699575 Передняя панель обшивки x x x x 1002 7699596 Крышка панели управления x x x x 1003 S101517 Настенный кронштейн x x x x 1005 S101403 Фиксатор шпильки на четверть оборота x x x x 1006 7702357 Подсветка кот...
© Авторские права Вся техническая информация, которая содержится в данной инструкции, а также рисунки и электрические схемы являются нашей собственностью и не могут быть воспроизведены без нашего письменного предварительного разрешения. Возможны изменения.
De Dietrich Котлы Инструкции
-
De Dietrich EVODENS AMC PRO AMC 65, DIEMATIC EVOLUTION
Инструкция по эксплуатации
-
De Dietrich EVODENS AMC PRO AMC 90, DIEMATIC EVOLUTION
Инструкция по эксплуатации
-
De Dietrich MCA 45
Инструкция по эксплуатации
-
De Dietrich MS 24 BIC
Инструкция по эксплуатации
-
De Dietrich MS 24 BIC FF
Инструкция по эксплуатации
-
De Dietrich MS 24 MI
Инструкция по эксплуатации
-
De Dietrich MS 24 MI FF
Инструкция по эксплуатации
-
De Dietrich MSL 24 FF
Инструкция по эксплуатации
-
De Dietrich MSL 24 MI
Инструкция по эксплуатации
-
De Dietrich MSL 24 MI FF
Инструкция по эксплуатации
-
De Dietrich MSL 28 MI FF
Инструкция по эксплуатации
-
De Dietrich MSL 31 FF
Инструкция по эксплуатации
-
De Dietrich MSL 31 MI FF
Инструкция по эксплуатации
-
De Dietrich NEOVO ECONOX EF 22
Инструкция по эксплуатации
-
De Dietrich NEOVO ECONOX EF 29
Инструкция по эксплуатации
-
De Dietrich NEOVO ECONOX EF 36
Инструкция по эксплуатации
-
De Dietrich NEOVO ECONOX EF 46
Инструкция по эксплуатации
-
De Dietrich PMC-M 24 PLUS HR117
Инструкция по эксплуатации
-
De Dietrich PMC-M 24/28 MI PLUS HR118
Инструкция по эксплуатации
-
De Dietrich PMC-M 30/35 MI PLUS HR119
Инструкция по эксплуатации