Водонагреватели Vaillant actoSTOR VIH K 300 150 л 305945 - инструкция пользователя по применению, эксплуатации и установке на русском языке. Мы надеемся, она поможет вам решить возникшие у вас вопросы при эксплуатации техники.
Если остались вопросы, задайте их в комментариях после инструкции.
"Загружаем инструкцию", означает, что нужно подождать пока файл загрузится и можно будет его читать онлайн. Некоторые инструкции очень большие и время их появления зависит от вашей скорости интернета.

Посібник з експлуатації й установки actoSTOR 0020071925_01
9
5.3
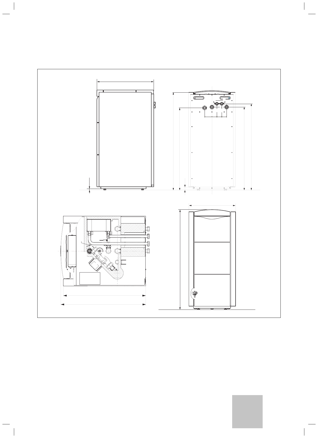
Розміри приладу та патрубків
1021
1061
1010
60 60 60
90
5
1
4
2
1201
40
3
570
691
1221
16-32
1)
10
11
14
13
12
17
15
6
16
671
691
Мал. 5.2 Креслення з розмірами
1)
Ніжки накопичувача можна налаштовувати по висоті на 16 мм
(розмір ключа 30)
Пояснення:
1 Патрубок холодної води, накидна гайка G 1
2 Патрубок гарячої води, накидна гайка G 1
3 Підведення накопичувача, накидна гайка G 1
4 Лінія відведення накопичувача, накидна гайка G 1
5 Циркуляційний патрубок, G
3
/
4
6 Вентиль спорожнення
10 Електронний блок (електронне підключення)
11 Різьбова пробка вентиляційного отвору (з боку питної води)
12 Захисний анод з приєднанням кабелів
13 Насос для нагрівання питної води
14 Маркувальна табличка
15 Пластинчатий теплообмінник
16 Датчик NTC
17 Сполучення захисного аноду з корпусом
Установка 5
UA
Содержание
- 4 Указания по документации; Указания по документации 1
- 5 Пояснение вида и источника опасности.; Техника безопасности
- 6 заказать; Техника безопасности 2
- 7 Использование по назначению; Описание аппарата
- 8 Эксплуатация; Ввод водонагревателя в эксплуатацию; Опасность получения ожогов из-за горячей воды!; Эксплуатация 4
- 10 Подключение; Требования к месту установки; Подключение 5
- 11 Размеры аппарата и подключений
- 14 Ввод в эксплуатацию; Ввод установки в эксплуатацию; Нагнетательный насос горячей воды (; Снимите верхнюю часть теплоизоляции (; Ввод в эксплуатацию 6
- 15 Осмотры и техническое обслуживание; Защитный анод
- 16 Гарантийное и сервисное обслуживание
- 17 Строго соблюдайте действующие в Вашей стране; Утилизация упаковки и аппарата
- 18 0 Технические данные; Технические данные 10
- 19 0 Технические данные

