Водонагреватели Vaillant actoSTOR VIH K 300 150 л 305945 - инструкция пользователя по применению, эксплуатации и установке на русском языке. Мы надеемся, она поможет вам решить возникшие у вас вопросы при эксплуатации техники.
Если остались вопросы, задайте их в комментариях после инструкции.
"Загружаем инструкцию", означает, что нужно подождать пока файл загрузится и можно будет его читать онлайн. Некоторые инструкции очень большие и время их появления зависит от вашей скорости интернета.

10
Инструкция по эксплуатации и монтажу actoSTOR 0020071925_01
5.3
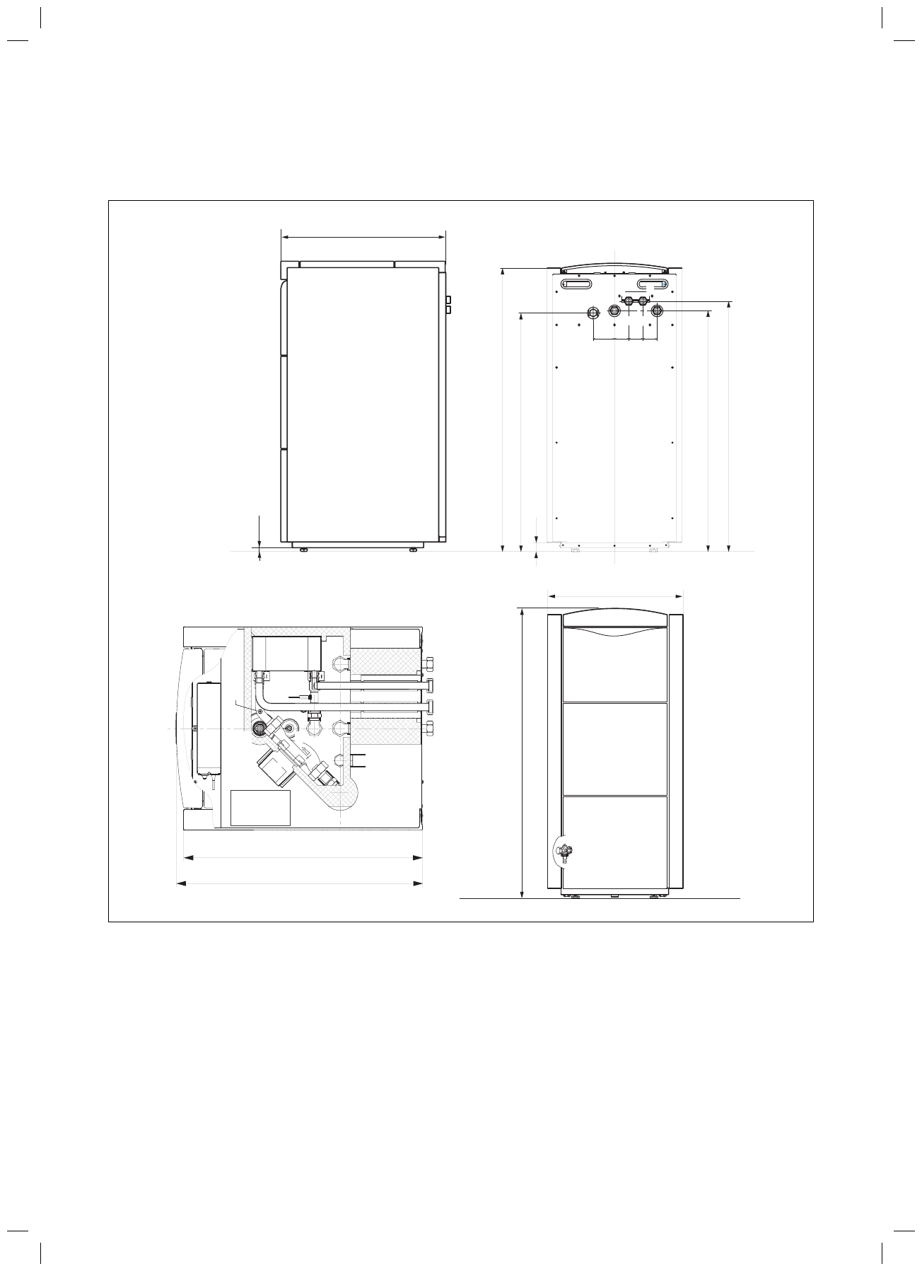
Размеры аппарата и подключений
1021
1061
1010
60 60 60
90
5
1
4
2
1201
40
3
570
691
1221
16-32
1)
10
11
14
13
12
17
15
6
16
671
691
Рис. 5.2 Размерный чертеж
1)
Ножки водонагревателя, регулируемые по высоте на 16 мм (раствор
ключа 30)
Пояснения к рисунку
1 Штуцер холодной воды, накидная гайка G 1
2 Штуцер горячей воды, накидная гайка G 1
3 Подающий трубопровод водонагревателя, накидная гайка G 1
4 Возвратный трубопровод водонагревателя, накидная гайка G 1
5 Циркуляционный штуцер, G
3
/
4
6 Сливной кран
10 Блок электроники (электрическое подключение)
11 Пробка вентиляционного отверстия (со стороны питьевой воды)
12 Защитный анод с кабельным подключением
13 Нагнетательный насос питьевой воды
14 Шильдик
15 Пластинчатый теплообменник
16 NTC-датчик
17 Соединение защитного анода на корпус
5 Подключение
Содержание
- 4 Указания по документации; Указания по документации 1
- 5 Пояснение вида и источника опасности.; Техника безопасности
- 6 заказать; Техника безопасности 2
- 7 Использование по назначению; Описание аппарата
- 8 Эксплуатация; Ввод водонагревателя в эксплуатацию; Опасность получения ожогов из-за горячей воды!; Эксплуатация 4
- 10 Подключение; Требования к месту установки; Подключение 5
- 11 Размеры аппарата и подключений
- 14 Ввод в эксплуатацию; Ввод установки в эксплуатацию; Нагнетательный насос горячей воды (; Снимите верхнюю часть теплоизоляции (; Ввод в эксплуатацию 6
- 15 Осмотры и техническое обслуживание; Защитный анод
- 16 Гарантийное и сервисное обслуживание
- 17 Строго соблюдайте действующие в Вашей стране; Утилизация упаковки и аппарата
- 18 0 Технические данные; Технические данные 10
- 19 0 Технические данные

