Водонагреватели Ariston NEXT EVO SFT 11 NG EXP 3632271 - инструкция пользователя по применению, эксплуатации и установке на русском языке. Мы надеемся, она поможет вам решить возникшие у вас вопросы при эксплуатации техники.
Если остались вопросы, задайте их в комментариях после инструкции.
"Загружаем инструкцию", означает, что нужно подождать пока файл загрузится и можно будет его читать онлайн. Некоторые инструкции очень большие и время их появления зависит от вашей скорости интернета.

/
23
ВСТАНОВЛЕННЯ
УСТАНОВКА
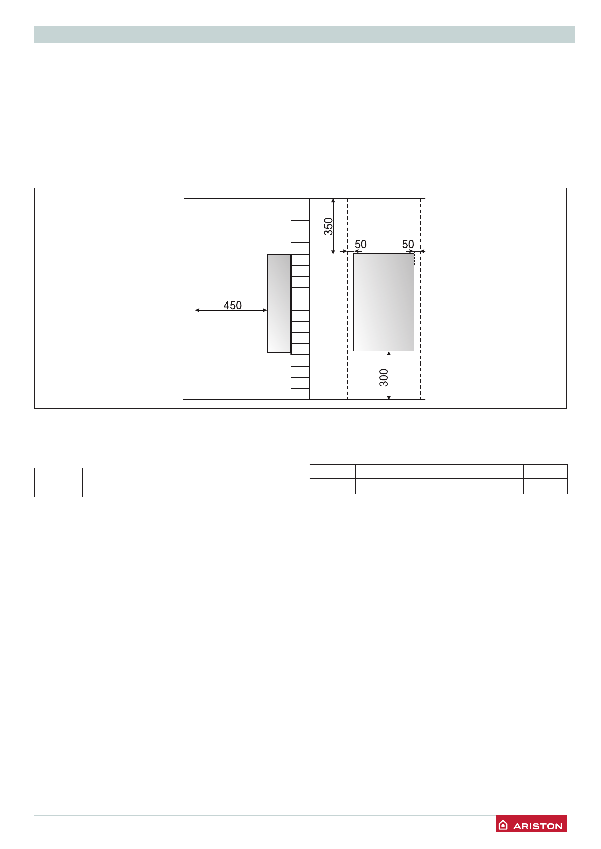
Мінімальні відстані
Для легкого доступу до водонагрiвача при технічному
обслуговуванні слід забезпечити відповідні мінімально
припустимі відстані (вільний простір) від корпуса водонагрiвача
до прилеглих предметів і поверхонь.
Установлювати водонагрiвач слід відповідно до чинних норм і
правил, а також відповідно до вимог виробника.
При встановленні обов’язково використовуйте рівень,
водонагрiвач має перебувати точно в горизонтальному
положенні.
Минимальные расстояния
Для легкого доступа к водонагревателю при техническом
обслуживании следует обеспечить соответствующие
минимально допустимые расстояния (свободное пространство)
от корпуса водонагревателя до близлежащих предметов и
поверхностей.
Устанавливать водонагреватель следует в соответствии с
действующими нормами и правилами, а также в соответствии с
требованиями производителя.
При установке обязательно используйте уровень,
водонагреватель должен находиться в строго горизонтальном
положении.
Підключення до газопроводу
Водонагрiвач розрахований на роботу із наступними типами
газу.
КРАЇНА
Модель
Типи газу
UA
NEXT EVO SFT 11
I
2H
За впакуванням і заводською табличкою на корпусі водонагрiвача
переконайтеся, що його розраховано на експлуатацію у
відповідній країні та роботу від газу, наявного в країні експлуатації.
Перевірте відповідність типу газу в трубопроводі типу, на який
розраховано водонагрiвач.
Монтаж і випробування газових трубопроводів виконуйте
відповідно до чинних норм і правил, з урахуванням
максимальної теплопродуктивності водонагрiвача. Перед
установленням обов’язково ретельно очистіть газові
трубопроводи для видалення забруднень, які можуть порушити
роботу водонагрiвача. Газове з’єднання слід виконувати через
прокладку.
Переконайтеся в належному тиску газу (природного (метану) або
зрідженого), оскільки при занадто низькому тиску ефективність
роботи водонагрiвача знижується, і він не забезпечує належного
рівня комфорту.
Подключение к газопроводу
Водонагреватель рассчитан на работу со следующими типами
газа.
Модель
Типы газа
RU
NEXT EVO SFT 11
I
2H
По упаковке и заводской табличке на корпусе водонагревателя
убедитесь, что он рассчитан на эксплуатацию в соответствующей
стране и работу от газа, имеющегося в стране эксплуатации.
Проверьте соответствие типа газа в трубопроводе типу, на
который рассчитан водонагреватель.
Монтаж и испытания газовых трубопроводов производите в
соответствии с действующими нормами и правилами, с учетом
максимальной теплопроизводительности водонагревателя.
Перед установкой обязательно тщательно очистите газовые
трубопроводы для удаления загрязнений, которые могут
нарушить работу водонагревателя.. Газовое соединение должно
быть выполнено через прокладку.
Убедитесь в надлежащем давлении газа (природного (метана)
или сжиженного), поскольку при слишком низком давлении
эффективность работы водонагревателя снижается, и он не
обеспечивает должного уровня комфорта.
Содержание
- 2 Руководство по эксплуатации; Посібник з експлуатації; Дата изготовления; “О безопасности низковольтного оборудования”
- 3 ГАРАНТІЯ
- 4 Химический состав воды, используемой в качестве
- 5 Перечень условных обозначений:
- 7 Панель управления
- 8 Процедура розжига
- 9 Режим ЭКО
- 10 Устройства защиты водонагревателя; Откройте кран ГВС и перед прибором дождитесь полного; Таблица кодов неисправностей; код; Описание; - Проверить газовый; Таблиця кодів несправностей; Опис; газовий кран
- 11 Техническое обслуживание
- 12 Инструкция по установке и обслуживанию
- 13 ОБЩИЕ ПОЛОЖЕНИЯ; ЗАГАЛЬНІ ПОЛОЖЕННЯ
- 14 Химический состав воды, используемой в
- 19 Обозначение; Загальний вигляд
- 20 Розміри
- 21 Перед началом монтажа.
- 22 Место установки водонагревателя; Соблюдайте инструкции, решая где установить прибор.; Місце встановлення
- 23 Мінімальні відстані; Подключение к газопроводу; NEXT EVO SFT 11
- 24 Обозначения; Підключення водонагрiвача; Не вмикати пристрій без фільтру.
- 25 Гідравлічна схема
- 27 NEXT EVO SFT; MIN; Типи димоходів/повітроводів
- 28 Кабель электропитания; Підключення до електричної мережі; водонагревателя
- 29 Main; Электрическая схема
- 31 - Электрические соединения выполнены. Еще раз; Перше вмикання; - Димохід повинен підходити до цьго пристрою та повинен
- 32 Доступ к параметрам - параметры регулировки; Accessing the settings - adjustment parameters; та; LO; Парам; Lo; Проверка параметров газа
- 33 Проверка мощности плавного розжига
- 34 NEXT EVO 11 SFT; мбар; Сводная таблица параметров по типам газа
- 35 Умови блокування колонки; Код помилки
- 36 E E
- 37 Доступ к внутренним элемента; снять переднюю панель.; Доступ до внутрішніх елементів; Перед будь-якою операцією з водонагрівачем необхідно
- 38 водонагревателя НЕ МЕНЕЕ 1 раза в год:; ВОДОНАГРЕВАТЕЛЯ СО СНЯТЫМ ФИЛЬТРОМ.; Перед початком робіт по обслуговуванню:
- 39 Процедура слива воды из прибора; Обучение пользователя; Процедури зливу; правильного і економічно вигідного використання пристрою.
- 40 Серийный номер
- 41 Technical Data
- 44 OOO «Аристон Термо Русь»; Российская Федерация,; ТОВ «АРІСТОН ТЕРМО УКРАЇНА»