Варочная панель Wolf ICBIF15/S - инструкция пользователя по применению, эксплуатации и установке на русском языке. Мы надеемся, она поможет вам решить возникшие у вас вопросы при эксплуатации техники.
Если остались вопросы, задайте их в комментариях после инструкции.
"Загружаем инструкцию", означает, что нужно подождать пока файл загрузится и можно будет его читать онлайн. Некоторые инструкции очень большие и время их появления зависит от вашей скорости интернета.

7
I N S TA L L AT I O N
S P E C I F I C A T I O N S
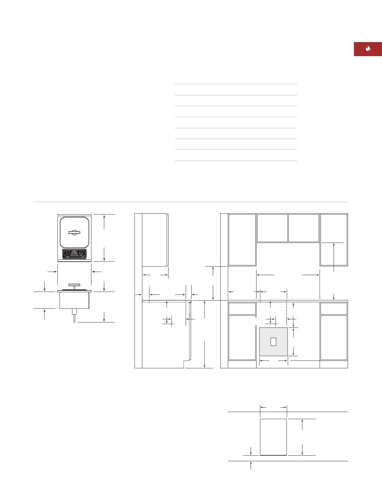
The illustrations below provide the overall
dimensions, finished cut-out dimensions and
electrical placement for the Wolf electric fryer
module.
The fryer module is designed to fit a standard
610 mm deep base cabinet with 635 mm deep
countertop. Before making the countertop cut-
out, verify that the module will clear the side
walls of the base cabinet below.
178
mm
min
*
CUT-OUT TO
COMBUSTIBLE
MATERIALS
(BOTH SIDES)
356
mm
COOKTOP CUT-OUT
WIDTH
356
mm
COOKTOP CUT-OUT
WIDTH
838
mm RECOMMENDED
CABINET WIDTH
457
mm
NOTE: Application shown allows for installation of two 381 mm modules side-by-side with 838 mm recommended cabinet width. 457 mm
recommended cabinet width for installation of single 381 mm cooktop or module. NOTE: Fryer module must be installed in a base cabinet with
access to manual valve at base of unit to drain oil into heat resistant receptacle. * Minimum clearance from both side edges of cooktop cut-out
to combustible materials up to 457 mm above countertop. ** Minimum clearance from rear edge of cooktop cut-out to combustible materials up
to 457 mm above countertop.
489
mm
COOKTOP CUT-OUT
DEPTH
64
mm
min
914
mm
STANDARD
FLOOR TO
COUNTERTOP
HEIGHT
330
mm
max
762
mm
COUNTERTOP TO
COMBUSTIBLE
MATERIALS
ABOVE COOKTOP
FRONT OF COUNTERTOP
64
mm
min
489
mm
COOKTOP
CUT-OUT DEPTH
194
mm
314
mm
DRAIN OUTLET
LOCATION
E
343
mm
381
mm
381
mm
314
mm
152
mm
DRAIN OUTLET
LOCATION
64
mm
**
381
mm
OVERALL WIDTH
533
mm
OVERALL
DEPTH
343
mm
TO DRAIN
OUTLET
191
mm
M O D E L I C B I F 1 5 / S D I M E N S I O N S
Overall Width
381 mm
Overall Height
343 mm
Overall Depth
533 mm
Minimum Cabinet Depth
578 mm
Minimum Height Clearance
343 mm
Cut-Out Width
356 mm
Cut-Out Depth
489 mm
Unit dimensions may vary to 3 mm.
I N S TA L L AT I O N
I N S T R U C T I O N S
Overall Dimensions
Installation Specifications
Countertop Cut-Out
Dimensions
Характеристики
Остались вопросы?Не нашли свой ответ в руководстве или возникли другие проблемы? Задайте свой вопрос в форме ниже с подробным описанием вашей ситуации, чтобы другие люди и специалисты смогли дать на него ответ. Если вы знаете как решить проблему другого человека, пожалуйста, подскажите ему :)













