Варочная панель Fulgor Milano FSH 804 ID TS BK - инструкция пользователя по применению, эксплуатации и установке на русском языке. Мы надеемся, она поможет вам решить возникшие у вас вопросы при эксплуатации техники.
Если остались вопросы, задайте их в комментариях после инструкции.
"Загружаем инструкцию", означает, что нужно подождать пока файл загрузится и можно будет его читать онлайн. Некоторые инструкции очень большие и время их появления зависит от вашей скорости интернета.

94
PT
aria
- air -
air
- Luft -
aire
- lucht -
ar
100 cm
2
MIN.
induzione
- induction -
induction
- Induktion
-
inducción
- inductie -
indução
aria
- air -
air
- Luft -
aire
- lucht -
ar
100 cm
2
MIN.
ZONA FORNO O ARMADIETTO
OVEN ZONE OR CUPBOARD
ZONE FOUR OU PLACARD
OFENBEREICH ODER SCHRANK
ZONA HORNO O ARMARIO
OVENRUIMTE OF KASTJE
ZONA DO FORNO OU ARMÁRIO
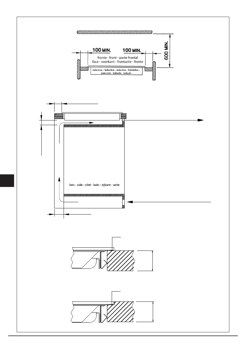
50 MIN.
50 MIN.
20 MIN.
(2 x 500)
Fig. 6
INDUZIONE
INDUCTIO
N
INDUCCIØN
INDUÎÍ O
POSIÇÃO GUARNIÇÃO SELANTE NA
VERSÃO RENTE AO TOPE
POSIÇÃO GUARNIÇÃO SELANTE NA
VERSÃO SEMI RENTE AO TOPE
ATENÇÃO : em caso de inobservância
das indicações de construção do móvel, o
produto perde a sua garantia
Характеристики
Остались вопросы?Не нашли свой ответ в руководстве или возникли другие проблемы? Задайте свой вопрос в форме ниже с подробным описанием вашей ситуации, чтобы другие люди и специалисты смогли дать на него ответ. Если вы знаете как решить проблему другого человека, пожалуйста, подскажите ему :)













