Варочная панель Fulgor Milano CPH 402 G TC X - инструкция пользователя по применению, эксплуатации и установке на русском языке. Мы надеемся, она поможет вам решить возникшие у вас вопросы при эксплуатации техники.
Если остались вопросы, задайте их в комментариях после инструкции.
"Загружаем инструкцию", означает, что нужно подождать пока файл загрузится и можно будет его читать онлайн. Некоторые инструкции очень большие и время их появления зависит от вашей скорости интернета.

68
69
PT
Instalação
Este aparelho não possui um dispositivo de descarga do 
produto da combustâo. Recomenda-se por conseguinte, 
que venha instalado em lugares suficientemente arejados 
segundo as disposições das leis em vigor. A quantidade 
necessária de ar para a combustão, não deverá ser inferior 
a 2.0 m
3
/h por cada kW de força instalada. Veja a tabela
relativa à força dos queimadores.
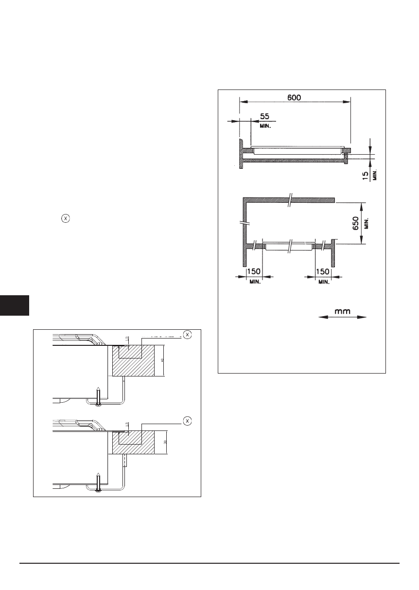
Posicionamento (Fig. 4)
O aparelho está previsto para ser encaixado num plano 
de trabalho como ilustrado na respectiva figura.
Antes de introduzir o plano prepare a guarnição de 
vedação     ao redor de todo o perímetro da abertura 
do encaixe.
As medidas de encaixe estão indicadas nas figuras 6-7-
8-9.
Para os modelos Filotop é necessário realizar um 
abaixamento na zona perimetral da abertura de encaixe 
por uma profundidade de 1,5 mm.
Para os modelos Semifilotop esse abaixamento não 
deve ser realizado.
A instalação pode ser realizada em vários materiais, 
tais como em aço, mármore, conglomerados, sintéticos, 
madeira e madeira revestida com laminados plásticos, 
sempre que resistentes a uma temperatura de 90°C.
Fig. 4
Sob o painel deve ser instalado um painel de 
madeira ou outro material isolante, posicionado a 
uma distância mínima de 15 mm do invólucro do 
plano.
Modalités d’installation
Fig. 5
GUARNIÇÃO SELANTE
GUARNIÇÃO SELANTE
Характеристики
Остались вопросы?Не нашли свой ответ в руководстве или возникли другие проблемы? Задайте свой вопрос в форме ниже с подробным описанием вашей ситуации, чтобы другие люди и специалисты смогли дать на него ответ. Если вы знаете как решить проблему другого человека, пожалуйста, подскажите ему :)

 
  
  
  
  
  
  
  
  
  
  
  
  
  
  
  
  
  
  
  
  
  
  
  
  
  
  
  
  
  
  
  
  
  
  
  
  
  
  
  
  
  
  
  
  
  
  
  
  
  
  
  
  
  
  
  
  
  
  
  
  
  
  
  
  
  
  
  
  
  
  
  
  
  
  
  
 











