Варочная панель Fulgor Milano CPH 402 G TC X - инструкция пользователя по применению, эксплуатации и установке на русском языке. Мы надеемся, она поможет вам решить возникшие у вас вопросы при эксплуатации техники.
Если остались вопросы, задайте их в комментариях после инструкции.
"Загружаем инструкцию", означает, что нужно подождать пока файл загрузится и можно будет его читать онлайн. Некоторые инструкции очень большие и время их появления зависит от вашей скорости интернета.

56
57
ES
Instalación
Este aparato no tiene un dispositivo de descarga de los 
productos de la combustión. Se aconseja instalarlo en 
locales suficientemente aireados según las disposiciones 
de ley vigentes. La cantidad de aire necesaria a la 
combustión no tiene que ser menos que 2.0 m
3
/h por
cada kW de potencia instalado. Véase tabla potencias 
quemadores.
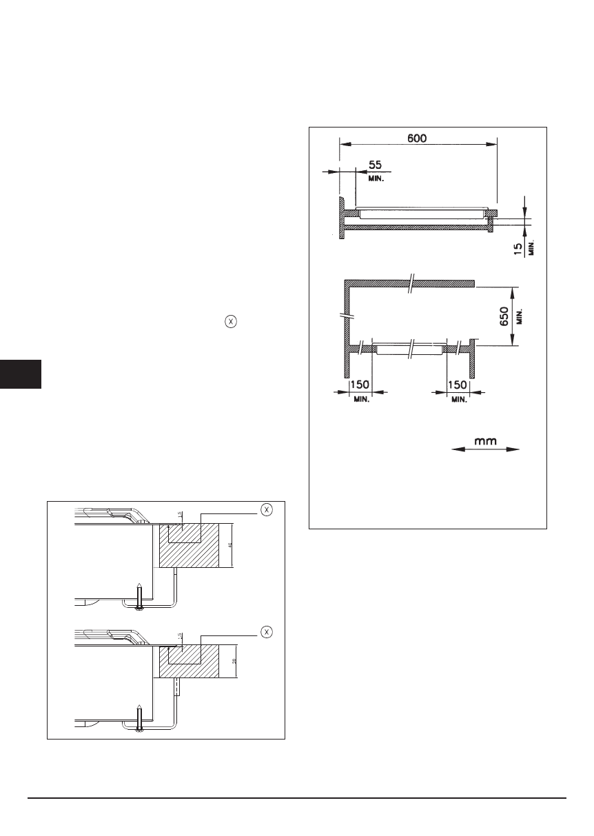
Colocación (Fig. 4)
El aparato está preparado para ser empotrado en 
una mesa de trabajo tal como se ilustra en la figura 
correspondiente.
Antes de introducir la placa de cocción es necesario 
preparar la guarnición de estanqueidad    en todo el 
perímetro de la perforación del empotrado.
Las medidas de empotrado aparecen en las figuras 6-7-
8-9.
Para los modelos Filotop es necesario efectuar una 
reducción en altura en la zona perimetral del orificio de 
empotrado de 1,5 mm de profundidad.
Para los modelos Semifilotop este fresado no de tiene 
que efectuar.
La instalación se puede realizar sobre materiales 
distintos como acero, mármol, conglomerados, 
sintéticos, madera y madera revestida con laminados 
de plástico, siempre que sean resistentes a una 
temperatura de 90°C.
Fig. 4
Debajo del panel se tiene que instalar un panel de 
madera u otro material aislante, colocado a una 
distancia mínima de 15 mm del envase de la placa.
Instruccionespara el instalador
Fig. 5
GUARNICIÓN SELLADOR
GUARNICIÓN SELLADOR
Характеристики
Остались вопросы?Не нашли свой ответ в руководстве или возникли другие проблемы? Задайте свой вопрос в форме ниже с подробным описанием вашей ситуации, чтобы другие люди и специалисты смогли дать на него ответ. Если вы знаете как решить проблему другого человека, пожалуйста, подскажите ему :)

 
  
  
  
  
  
  
  
  
  
  
  
  
  
  
  
  
  
  
  
  
  
  
  
  
  
  
  
  
  
  
  
  
  
  
  
  
  
  
  
  
  
  
  
  
  
  
  
  
  
  
  
  
  
  
  
  
  
  
  
  
  
  
  
  
  
  
  
  
  
  
  
  
  
  
  
 











