Варочная панель Fulgor Milano CPH 402 G TC X - инструкция пользователя по применению, эксплуатации и установке на русском языке. Мы надеемся, она поможет вам решить возникшие у вас вопросы при эксплуатации техники.
Если остались вопросы, задайте их в комментариях после инструкции.
"Загружаем инструкцию", означает, что нужно подождать пока файл загрузится и можно будет его читать онлайн. Некоторые инструкции очень большие и время их появления зависит от вашей скорости интернета.

20
21
GB
Instructions for the installer
Installation
This appliance is not provided with a combustion 
product discharge. It is recommended that it be installed 
insufficiently aerated places, in terms of the laws in force. 
The quantity of air which is necessary for combustion 
must not be below 2.0 m
3
/h for each kW of installed
power. See table of burner power.
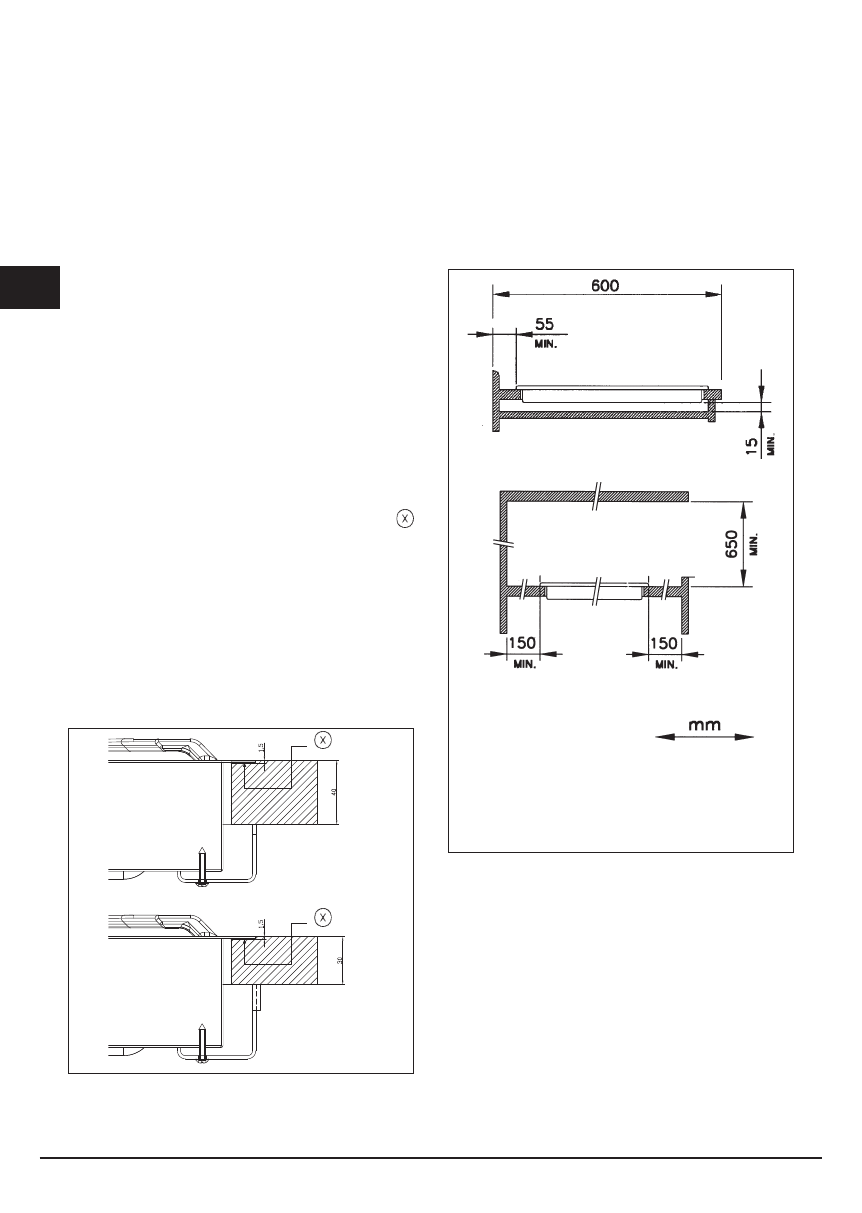
Positioning (Fig. 4)
The cook top is designed to be built in to a work surface 
as shown in the figure.
Before installing the cook top, install the gasket seal
around the entire perimeter of the hole where it will be 
inserted.
The dimensions of the hole are shown in figures 6-7-8-9.
For Filotop models, the perimeter of the hole must be 
lowered by a depth of 1.5 mm.
The hole does not need to be milled for Semifilotop 
models.
The cook top can be installed on different materials such 
as brickwork, steel, marble, conglomerates, synthetics, 
wood and wood covered with plastic laminates, so long 
as resistant to a temperature of 90 °C.
Fig. 4
A panel made of wood or other insulating material 
must be installed under the cook top at a distance 
of at least 15 mm from the surface.
SEAL
SEAL
Fig. 5
Характеристики
Остались вопросы?Не нашли свой ответ в руководстве или возникли другие проблемы? Задайте свой вопрос в форме ниже с подробным описанием вашей ситуации, чтобы другие люди и специалисты смогли дать на него ответ. Если вы знаете как решить проблему другого человека, пожалуйста, подскажите ему :)

 
  
  
  
  
  
  
  
  
  
  
  
  
  
  
  
  
  
  
  
  
  
  
  
  
  
  
  
  
  
  
  
  
  
  
  
  
  
  
  
  
  
  
  
  
  
  
  
  
  
  
  
  
  
  
  
  
  
  
  
  
  
  
  
  
  
  
  
  
  
  
  
  
  
  
  
 











