Посудомоечные машины Elenberg DW-9326 - инструкция пользователя по применению, эксплуатации и установке на русском языке. Мы надеемся, она поможет вам решить возникшие у вас вопросы при эксплуатации техники.
Если остались вопросы, задайте их в комментариях после инструкции.
"Загружаем инструкцию", означает, что нужно подождать пока файл загрузится и можно будет его читать онлайн. Некоторые инструкции очень большие и время их появления зависит от вашей скорости интернета.

46
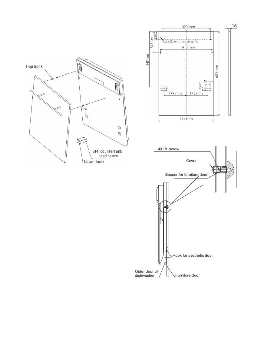
aesthetIc panel’s dImensIons and InstallatIon
1. The aesthetic wooden panel could be pro
-
cessedaccordingtotheigure3.
2. Install the hook on the aesthetic wooden
panel and put the hook into the slot of the
outerdoorofdishwasher(seeigure4a).
After positioning of the panel, ix the
panel onto the outer door by screws
andbolts(Seeigure4b).
1. Takeawaythecover.
2. Pinupthescrew.
3. Getbackthecover.
Figure3
Figure4a
Figure4c
Содержание
- 3 сеРвисное обслуживание:; введение
- 5 основные хаРактеРистики
- 6 °dH; использование соли; Подготовка к исПользованию
- 8 заправка ополаскивателя; чрезмерного пенообразования.; настройка; Замечание: Последовательно увеличивайте или умень-; моющее сРедство
- 9 • Среднее количество моющегося средства необходимое при выполне-
- 12 корзина для столовых приборов; Внимание: Острые части столовых при-; загрузка приборов и посуды
- 13 Повреждение стеклянной посуды
- 15 система ФильтРов; • Регулярно проверяйте состояние фильтра.; демонтаж фильтров; • Чтобы собрать фильтр, повторите описанную выше процедуру в обрат-; чистка фильтров; • Никогда не включайте машину без установленной системы фильтров.; ЭксПлуатация и чистка
- 17 Подготовка к установке; розеткаэлектросетисзаземлением,трубыдляподачииотводаводы.; место установки; Расстояние между стенками машины и стенками ниши, для нее, должно; инстРукция По установке
- 18 установка декоРативной Панели
- 20 Пошаговая установка Посудомоечной машины; Подключитешлангдляподачиводыккранусхолоднойводой.
- 23 устРанение неПоладок
- 25 сообщения об ошибках; но удалите излишки воды
- 26 сПециФикация