Посудомоечные машины Elenberg DW-9326 - инструкция пользователя по применению, эксплуатации и установке на русском языке. Мы надеемся, она поможет вам решить возникшие у вас вопросы при эксплуатации техники.
Если остались вопросы, задайте их в комментариях после инструкции.
"Загружаем инструкцию", означает, что нужно подождать пока файл загрузится и можно будет его читать онлайн. Некоторые инструкции очень большие и время их появления зависит от вашей скорости интернета.

18
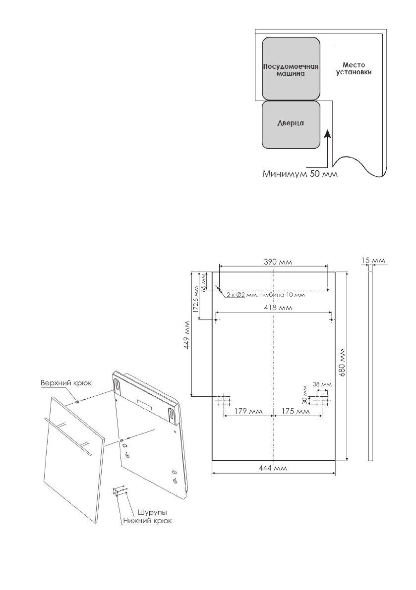
2. Нарисунке2указаноминимальноерассто
-
яние, необходимое для того, чтобы беспре
-
пятственнооткрыватьизакрыватьдверцу.
Расстояниеотдверцыдоокружающихпред
-
метовдолжнобытьнеменьше50мм.
установка декоРативной Панели
1. Подготовьтетыльнуюсторонудекоративнойпанеливсоответствиисрисун
-
ком3.
Дваверхнихотверстиядиаметром2ммиглубиной10ммслужатдляуста
-
новки верхних крепежных крюков. Следующие два отверстия диаметром 2
ммиглубиной10ммслужатдляфинальногокреплениядекоративнойпа
-
неликдверце.
Два прямоугольника отме
-
чают расположение нижних
крепежныхкрюков.
2. Привинтите крюки к тыльной
стороне декоративной пане
-
ли (рисунок 4а) в соответс
-
твиисразметкойрисунка3.
Навесьте декоративную па
-
нельнадверцу,введяверхние
и нижние крюки в специаль
-
ныепазы.
Рис.2
Рис.3
Рис.4a
Содержание
- 3 сеРвисное обслуживание:; введение
- 5 основные хаРактеРистики
- 6 °dH; использование соли; Подготовка к исПользованию
- 8 заправка ополаскивателя; чрезмерного пенообразования.; настройка; Замечание: Последовательно увеличивайте или умень-; моющее сРедство
- 9 • Среднее количество моющегося средства необходимое при выполне-
- 12 корзина для столовых приборов; Внимание: Острые части столовых при-; загрузка приборов и посуды
- 13 Повреждение стеклянной посуды
- 15 система ФильтРов; • Регулярно проверяйте состояние фильтра.; демонтаж фильтров; • Чтобы собрать фильтр, повторите описанную выше процедуру в обрат-; чистка фильтров; • Никогда не включайте машину без установленной системы фильтров.; ЭксПлуатация и чистка
- 17 Подготовка к установке; розеткаэлектросетисзаземлением,трубыдляподачииотводаводы.; место установки; Расстояние между стенками машины и стенками ниши, для нее, должно; инстРукция По установке
- 18 установка декоРативной Панели
- 20 Пошаговая установка Посудомоечной машины; Подключитешлангдляподачиводыккранусхолоднойводой.
- 23 устРанение неПоладок
- 25 сообщения об ошибках; но удалите излишки воды
- 26 сПециФикация