Котел Protherm Тигр 24 KTZ - инструкция пользователя по применению, эксплуатации и установке на русском языке. Мы надеемся, она поможет вам решить возникшие у вас вопросы при эксплуатации техники.
Если остались вопросы, задайте их в комментариях после инструкции.
"Загружаем инструкцию", означает, что нужно подождать пока файл загрузится и можно будет его читать онлайн. Некоторые инструкции очень большие и время их появления зависит от вашей скорости интернета.
Загружаем инструкцию

34
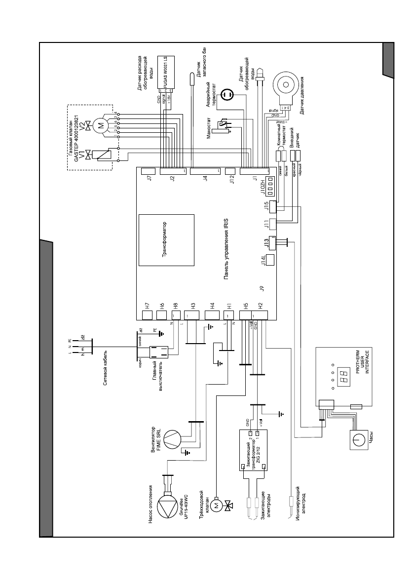
Электричес
кая сх
ема к
о
тла PRO
THERM
Тиг
ер
24 (12) KTZ
рис.25
Содержание
- 2 Навесной комбинированный котёл; Tiger; Скалица
- 3 Содержание; РУКОВОДСТВО ПО ОБСЛУЖИВАНИЮ; «Руководство по монтажу» предназначен только для специалистов.
- 6 Руководство по обслуживанию; Управление и сигнализация; Главный выключатель
- 7 Отображение заданной температуры; Выбор режима отсчёта
- 8 a b; рис
- 9 „P“ Параметр; Таблица 1
- 11 Сообщения об ошибках
- 12 Включение котла; Выключение котла; Включение и выключение котла
- 14 Противоморозная защита; Защитные функции котла; Отключение котла от сети; Перебой в подаче электроэнергии
- 15 Выбег насоса; Техническое обслуживание и уход; Защита запасного бака
- 16 Гарантия и гарантийные условия; Дополнение воды
- 19 Размеры для подключения котла; Připojovací rozměry kotle; Используемое избыточное давление до системы
- 20 Рабочая схема котла
- 21 Зоны; Руководство по установке
- 23 Комплектностъ поставки
- 24 Распределение труб; Чистота системы отопления; Подготовка к установке котла
- 25 Установка котла; Навеска котла
- 26 Расширительный бачок горячей воды
- 27 Подключение газа; Предохранительный клапан
- 28 Слив воды отопления; Слив горячей воды
- 29 Способ C; Подвод воздуха и отвод продуктов сгорания для котлов типа КTZ; Диффузор продуктов сгорания
- 30 Диаметр дымохода
- 31 Особые случаи
- 33 Меры безопасности; Электрическое подключение котла
- 34 Электрическое подключение принадлежностей; Перестройка на другой тип топлива