Котел Immergas Victrix Tera 28 1 - инструкция пользователя по применению, эксплуатации и установке на русском языке. Мы надеемся, она поможет вам решить возникшие у вас вопросы при эксплуатации техники.
Если остались вопросы, задайте их в комментариях после инструкции.
"Загружаем инструкцию", означает, что нужно подождать пока файл загрузится и можно будет его читать онлайн. Некоторые инструкции очень большие и время их появления зависит от вашей скорости интернета.

17
C
83
C
43
1
4
7
9
5
5
6
7
8
3
2
S
A
C
53
*
- C
83
*
per completare la configurazione C
53
prevedere anche un terminale di scarico a
tetto. Non è ammessa la configurazione su pareti opposte all'edificio.
27
26
25
МО
НТ
АЖНИК
К
О
РИ
С
ТУВ
А
Ч
Т
ЕХ
Н
ІЧ
Н
Е
О
Б
С
Л
У
ГО
В
У
В
А
Н
Н
Я
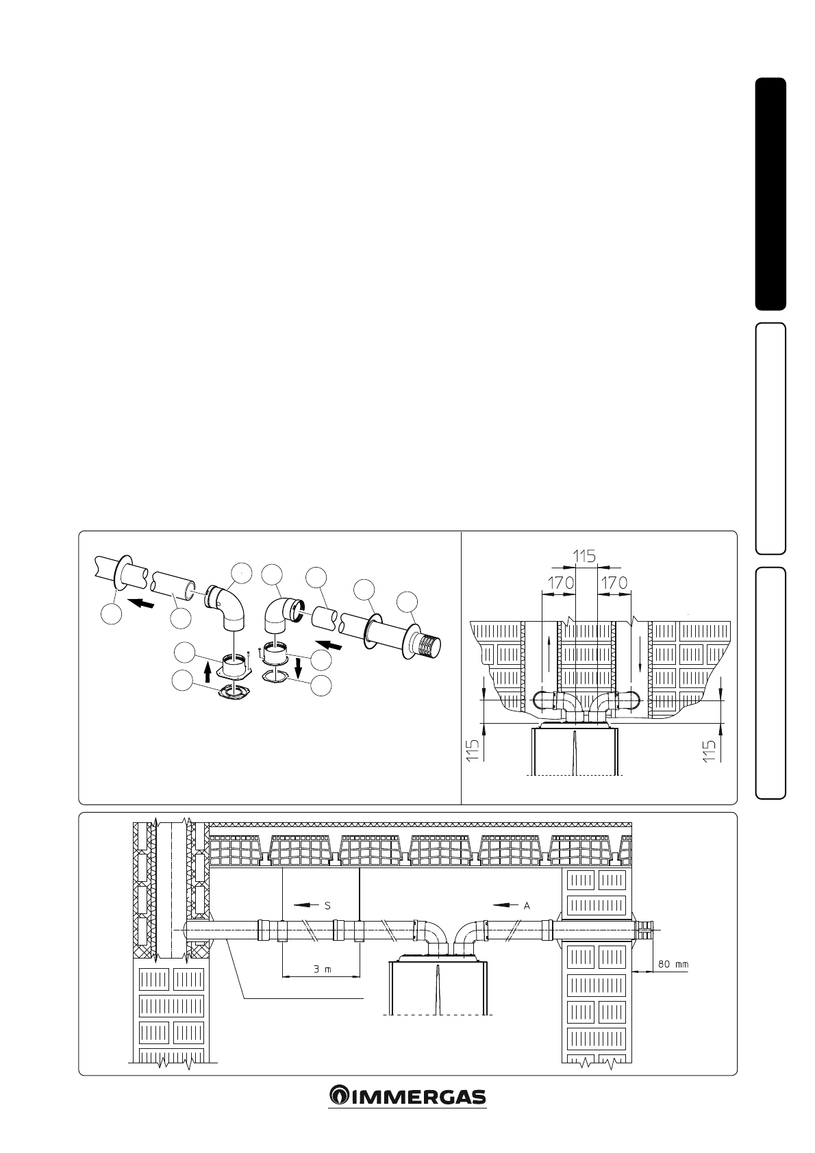
Комплект містить:
1 шт. - Прокладка каналу відведення (1)
1 шт. - Прокладка ущільнювача фланця (2)
1 шт. - Гніздовий повітрозабірний фланець (3)
1 шт. - Гніздовий фланець відведення (4)
для комплектації схеми C
53
також передбачається термінал відведення на даху. Не
допускається розташування на протилежних стінах будівлі.
2 шт. - Коліно 90 ° Ø 80 (5)
1 шт. - Повітрозабірний термінал Ø 80 (6)
2 шт. - Внутрішня кільцева прокладка (7)
1 шт. - Зовнішня кільцева прокладка (8)
1 шт. - Труба відведення Ø 80 (9)
1.17 ВСТАНОВЛЕННЯ КОМПЛЕКТУ
СЕПАРАТОРА
Кон
ф
ігурація типу С з герметичною каме-
рою та примусовою тягою.
Комплект сепаратора
Ø
80/80.
Цей комплект
забезпечує забір повітря ззовні приміщення і
відведення димових газів через в димар, димохід
або повітропровід шляхом розділення димових
труб та повітрозабірника. Через канал (S), який
обов'язково виготовляється з полімерного мате-
ріалу, призначеного для кислотних конденсатів,
виводяться продукти згоряння. Трубопроводом
(A), який також виготовляється з полімерного
матеріалу, здійснюється забір повітря, необхід-
ного для горіння. Трубопровід забору повітря
(A) може бути встановлений на правому або
лівому боці від центрального витяжного каналу
(S). Обидва канали можуть бути орієнтовані в
будь-якому напрямку.
•
Монтаж комплекту (
Мал. 25
): встановіть фла-
нець (4) на центральний отвір котла, поставив-
ши прокладку (1) круглими виступами донизу,
у бік фланцю котла, і затягніть гвинтами з шес-
тигранною голівкою та плоским наконечником,
що надаються в комплекті. Вийміть плоский
фланець, що знаходиться в боковому отворі
відносно до центрального (відповідно до вимог)
і замініть його на фланець (3)
;
вставте проміжні
прокладки (2), які вже є в котлі, і затягніть
саморізами з наконечником, що надаються в
комплекті. Вставте коліна (5) штировим кінцем
(гладким) в гніздовий кінець фланців (3 та 4).
Вставити до упору термінал забору повітря (6)
штировим кінцем (гладким) у гніздовий кінець
коліна (5), попередньо встановивши відповідні
внутрішні та зовнішні кільцеві прокладки.
Вставте трубу відведення (9) штировим кінцем
(гладким) у гніздовий кінець коліна (5) і закру-
тіть до упору, переконавшись, що відповідна
кільцеву прокладку вже була вставлена все-
редину.Таким чином отримаємо ущільнення і
з”єднання елементів комплекту.
•
Максимальні габаритні розміри (
Мал. 26
). На
малюнку показані мінімальні габаритні розміри
набору сепаратора терміналу
Ø
80/80 у деяких
граничних умовах.
•
Подовжувачі для комплект у сепаратора
Ø
80/80. Максимальна прямолінійна довжина (без
колін) по вертикалі, придатна для труб забору
повітря та відведення диму
Ø
80, становить
41 метр, незалежно від того, для чого вони
використовуються (забір чи виведення). Мак-
симальна прямолінійна довжина (з коліном для
забору та виведення) по горизонталі, придатна
для труб забору повітря та відведення диму
Ø
80, становить 36 метр, незалежно від того, для
чого вони використовуються (забір чи виведен-
ня). Зверніть увагу, що монтаж
C
43
повинен
бути здійснений для природної димової тяги.
Примітка:
щоб покращити відведення можли-
вого конденсату, що утворюється в трубопроводі
виведення, слід передбачити нахил труб у бік
котла з мінімальнім кутом нахилу 1,5
%
(
Мал. 27
).
Мінімальний нахил 1,5
%
Характеристики
Остались вопросы?Не нашли свой ответ в руководстве или возникли другие проблемы? Задайте свой вопрос в форме ниже с подробным описанием вашей ситуации, чтобы другие люди и специалисты смогли дать на него ответ. Если вы знаете как решить проблему другого человека, пожалуйста, подскажите ему :)