Котел Buderus Logamax U052-28K - инструкция пользователя по применению, эксплуатации и установке на русском языке. Мы надеемся, она поможет вам решить возникшие у вас вопросы при эксплуатации техники.
Если остались вопросы, задайте их в комментариях после инструкции.
"Загружаем инструкцию", означает, что нужно подождать пока файл загрузится и можно будет его читать онлайн. Некоторые инструкции очень большие и время их появления зависит от вашей скорости интернета.

6
Оставляем за собой право на изменения!
Инструкция по монтажу и техническому обслуживанию
•
Настeнный газовый котел Logamax U052
•
Издание
07/2006
Сведения о приборе
2
2.9
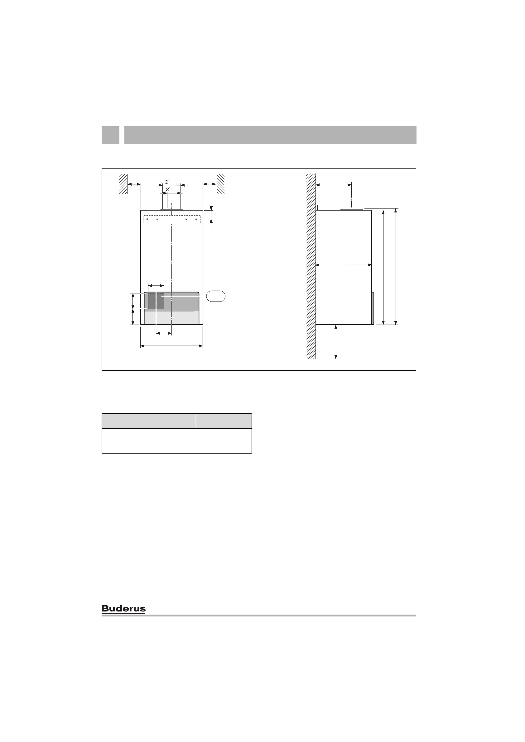
Габаритные размеры и минимальные расстояния
Рис 2
338
Расположение стенного проема для электрического
кабеля
min.
100
A
360
735
230
100
60
745
min.
100
6 720 612 229-02.2O
≥
220
100
100
100
100
338
62
Прибор
A [мм]
Logamax U052-24/24K
400
Logamax U052-28/28K
440
Таб. 3
Характеристики
Остались вопросы?Не нашли свой ответ в руководстве или возникли другие проблемы? Задайте свой вопрос в форме ниже с подробным описанием вашей ситуации, чтобы другие люди и специалисты смогли дать на него ответ. Если вы знаете как решить проблему другого человека, пожалуйста, подскажите ему :)

