Котел Beretta CITY 50 R S I Green - инструкция пользователя по применению, эксплуатации и установке на русском языке. Мы надеемся, она поможет вам решить возникшие у вас вопросы при эксплуатации техники.
Если остались вопросы, задайте их в комментариях после инструкции.
"Загружаем инструкцию", означает, что нужно подождать пока файл загрузится и можно будет его читать онлайн. Некоторые инструкции очень большие и время их появления зависит от вашей скорости интернета.

5
2.2
Компоненты
котла
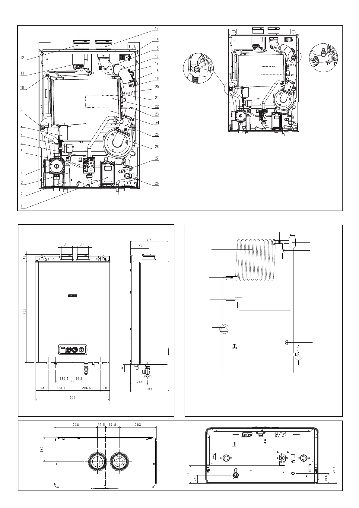
Рис
. 2.1
2.3
Габаритные
и
присоединительные
размеры
Рис
. 2.2
2.4
Гидравлическая
схема
Смотри
главу
3.6,
в
которой
описан
слив
конденсата
9
Датчик
NTC
на
обратном
трубопроводе
19
Датчик
NTC
на
прямом
трубопроводе
A.
Подача
системы
отопления
B.
Обратная
линия
отопления
C.
Клапан
слива
D.
Циркуляционный
насос
E.
Гидравлический
прессостат
F.
Датчик
NTC
на
обратке
G.
Датчик
NTC
на
подаче
H.
Первичный
теплообменник
I.
Автовоздушник
L.
Сепаратор
М
.
Ручной
воздушный
клапан
N.
Гидравлический
прессостат
O.
Предохранительный
клапан
Рис
. 2.3
1
Клеммная
коробка
2
Клапан
для
слива
из
системы
3
Конденсатоотводчик
4
Циркуляционный
насос
5
Газовый
клапан
6
Газовая
форсунка
7
Гидравлический
прессостат
8
Сборник
конденсата
9
Датчик
NTC
на
обратном
трубопроводе
10
Датчик
дымовых
газов
11
Заглушка
на
штуцере
анализа
дымовых
газов
12
Патрубок
дымовых
газов
13
Вход
воздуха
для
горения
14
Трансформатор
розжига
15
Заглушка
на
штуцере
воздуха
16
Воздуховод
всасывания
воздуха
17
Верхний
воздушный
клапан
18
Предельный
термостат
19
Датчик
NTC
на
прямом
трубопроводе
20
Электрод
обнаружения
пламени
21
Электрод
розжига
22
Горелка
23
Датчик
уровня
конденсата
24
Первичный
теплообменник
25
Смеситель
26
Вентилятор
27
Гидравлический
прессостат
28
Предохранительный
клапан
D
F
G
H
I
L
M
C
A
B
E
N
O
Рис
. 2.4