Котел Beretta CITY 50 R S I Green - инструкция пользователя по применению, эксплуатации и установке на русском языке. Мы надеемся, она поможет вам решить возникшие у вас вопросы при эксплуатации техники.
Если остались вопросы, задайте их в комментариях после инструкции.
"Загружаем инструкцию", означает, что нужно подождать пока файл загрузится и можно будет его читать онлайн. Некоторые инструкции очень большие и время их появления зависит от вашей скорости интернета.

18
1
Ко
те
л
2
Р
асширит
ельный
ба
к
3
Филь
тр
сист
емы
4
Запорный
клапан
сист
емы
5
Д
опо
лнит
ельный
цирк
уляционный
нас
ос
(230
В
перем
.
то
к
/ 50
Гц
/
Р
< 120
Вт
)
6
Обра
тный
клапан
7
Пре
до
хранит
ельный
термост
ат
с
конт
ак
то
м
для
низк
ог
о
напр
яжения
и
слабог
о
то
ка
1
6
2
3
7
4
5
4
5
6
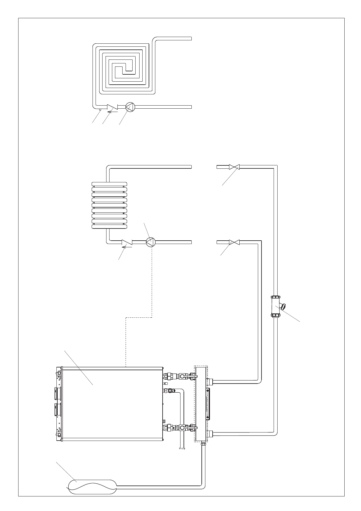
ЗАМЕЧАНИЯ В
зависимости
от
типа
сист
емы
,
выб
ерит
е
диапа
зо
н
регу
лиров
ания
темпера
ту
ры
от
опления
ко
л
а
,
ка
к
описано
в
глав
е
“
Конфигу
рация
котл
а
”
Принципиальная
гидрав
личе
ская
сх
ема
систе
мы
с
высок
о
и
низк
о
те
мперат
урным
конт
урами
о
топл
ения
Рис
. 3.1
1
выс
ок
от
емпера
ту
рный
конт
ур
во
змо
жные
варианты
конт
уров
от
опления
низк
от
емпера
ту
рный
конт
ур