Котел Beretta CITY 50 R S I Green - инструкция пользователя по применению, эксплуатации и установке на русском языке. Мы надеемся, она поможет вам решить возникшие у вас вопросы при эксплуатации техники.
Если остались вопросы, задайте их в комментариях после инструкции.
"Загружаем инструкцию", означает, что нужно подождать пока файл загрузится и можно будет его читать онлайн. Некоторые инструкции очень большие и время их появления зависит от вашей скорости интернета.

19
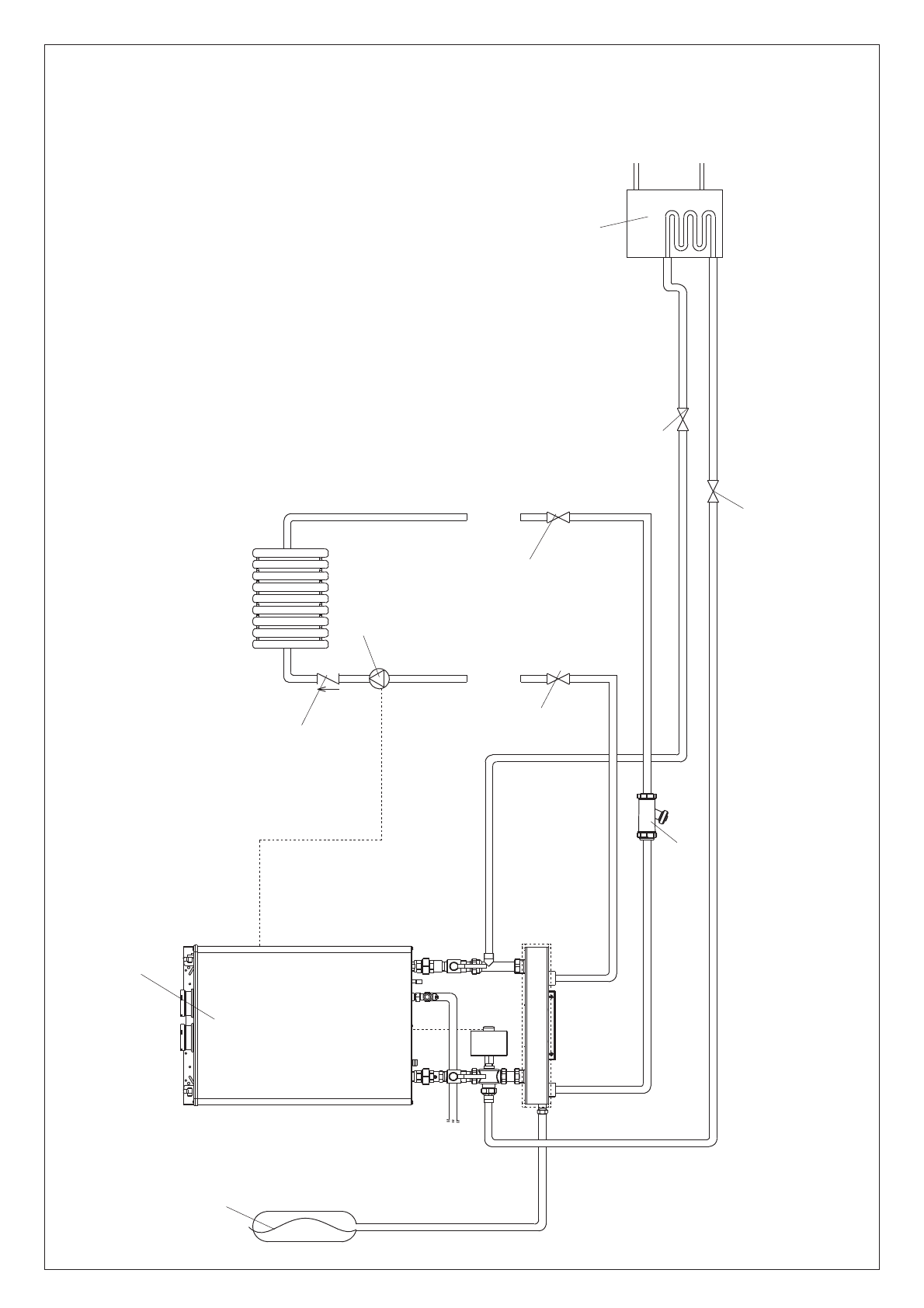
1
Ко
те
л
2
Р
асширит
ельный
ба
к
3
Филь
тр
сист
емы
4
Запорный
клапан
сист
емы
5
Д
опо
лнит
ельный
цирк
уляционный
нас
ос
(230
В
перем
.
то
к
/ 50
Гц
/
Р
< 120
Вт
)
6
Обра
тный
клапан
7
Бойлер
4
5
6
1
3
2
4
4
4
выс
ок
от
емпера
ту
рный
конт
ур
7
AFS
AC
S
Принципиальная
гидрав
личе
ская
сх
ема
систе
мы
с
ко
н
тур
ом
о
топл
ения
и
бойл
еро
м
-
акку
м
улят
оро
м
ГВ
С
ЗАМЕЧАНИЯ В
зависимости
от
типа
устройств
а
управ
ления
темпера
ту
рой
,
ус
танов
ленног
о
на
бойлере
(
термост
ат
либо
да
тчик
),
ск
онфигу
рир
уйт
е
ко
тёл
,
ка
к
описано
в
глав
е
“
Конфигу
рация
котл
а
”
Рис
. 3.12