Котел Beretta CITY 50 R S I Green - инструкция пользователя по применению, эксплуатации и установке на русском языке. Мы надеемся, она поможет вам решить возникшие у вас вопросы при эксплуатации техники.
Если остались вопросы, задайте их в комментариях после инструкции.
"Загружаем инструкцию", означает, что нужно подождать пока файл загрузится и можно будет его читать онлайн. Некоторые инструкции очень большие и время их появления зависит от вашей скорости интернета.

20
Рис
.
3.15
Дымоотвод
Ø 80
мм
C93
B
A
А
выход
сзади
–
В
макс
. 50
см
B23P
B53P
Рис
.
3.14
3.11
Удаление
продуктов
сгорания
и
забор
воздуха
В
помещениях
,
где
установлены
котлы
с
закрытой
камерой
сгорания
следует
предусматривать
общеобменную
вентиляцию
по
расчету
,
но
не
менее
одного
обмена
в
1
ч
.
В
случае
забора
воздуха
для
горения
из
помещения
,
где
установлен
котел
,
приточная
вентиляция
должна
обеспечивать
дополнительное
количество
воздуха
необходимое
для
работы
котла
на
максимальной
мощности
.
Котел
должен
быть
соединен
с
коаксиальными
или
раздельными
дымоотводами
и
воздуховодами
,
которые
должны
быть
выведены
наружу
через
крышу
или
наружную
стену
(
рис
. 3.13).
Эффективная
и
безопасная
работа
котла
гарантируется
только
в
случае
использования
оригинальных
дымоотводов
и
воздуховодов
,
предназначенных
для
конденсационных
котлов
.
На
дымоотводе
котла
не
требуется
установка
выносного
конденсатоотводчика
,
т
.
к
.
котёл
имеет
встроенный
конденсатоотводчик
.
Дымоотводы
котла
рекомендуется
монтировать
с
небольшим
уклоном
в
сторону
котла
,
чтобы
исключить
возможность
скопления
конденсата
в
них
.
ВНИМАНИЕ
:
при
установке
насоса
для
конденсата
,
убедитесь
в
том
,
что
его
номинальная
производительность
соответствует
характеристикам
системы
.
УСТАНОВКА
С
ЗАБОРОМ
ВОЗДУХА
ИЗ
ПОМЕЩЕНИЯ
(
ТИП
В
2
ЗР
/
В
53
Р
)
Дымоотвод
Ø80
мм
Для
реализации
данной
конфигурации
необходимо
использовать
специальный
патрубок
,
поставляемый
в
качестве
дополнительного
аксессуара
.
При
монтаже
придерживайтесь
инструкций
,
которые
прилагаются
к
аксессуару
.
В
этой
конфигурации
воздух
для
горения
берётся
из
помещения
,
в
котором
установлен
котёл
.
Это
должно
быть
техническое
помещение
,
удовлетворяющее
соответствующим
условиям
и
оборудованное
системой
вентиляции
.
Неизолированные
дымоотводы
для
удаления
дымовых
газов
являются
потенциальным
источником
опасности
.
Дымоотвод
должен
иметь
наклон
1%
в
сторону
котла
.
1,0
30 M
1,5
CITY 50 R.S.I. Green
Максимальная
длина
дымоотвода
Ø 80
мм
Потеря
напора
(
м
)
отвод
45°
отвод
90°
УСТАНОВКИ
С
ЗАБОРОМ
ВОЗДУХА
ИЗ
ВНЕ
(
ТИП
С
)
Котёл
должен
быть
надёжно
соединён
с
дымоотводом
и
воздуховодом
,
которые
могут
быть
раздельными
или
коаксиального
типа
(
труба
в
трубе
).
Стандартно
котел
поставляется
с
раздельными
патрубками
Ø 80
мм
для
присоединения
воздуховода
и
дымоотвода
.
Коаксиальные
воздуховоды
/
дымоотводы
(Ø 60-100)
Для
присоединения
коаксиальных
воздухозабора
-
дымоотвода
необходимо
использовать
специальный
переходник
,
поставляемый
в
качестве
дополнительного
аксессуара
.
Коаксиальные
воздуховоды
/
дымоотводы
можно
направить
в
том
направлении
,
которое
будет
наиболее
удобным
для
монтажа
,
но
необходимо
обратить
особое
внимание
на
уличную
температуру
и
их
общую
длину
.
Дымоход
должен
быть
наклонен
н
1%
в
сторону
котла
.
Неизолированные
дымоотводы
являются
потенциальным
источником
опасности
.
Котёл
автоматически
регулирует
количество
воздуха
в
зависимости
от
типа
монтажа
и
от
длины
дымоотвода
.
Ни
в
коем
случае
не
закрывайте
полностью
или
частично
дымоход
и
воздухозабор
.
При
монтаже
придерживайтесь
инструкций
,
поставляемых
вместе
с
данным
аксессуаром
.
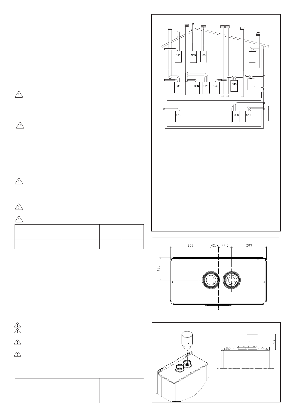
Возможные
конфигурации
дымохода
В
23
Р
-
В
53
Р
Забор
воздуха
из
помещения
,
а
выход
дымовых
газов
–
наружу
.
С
13
Коаксиальный
выход
в
стене
.
Трубы
могут
выходить
из
котла
раздельно
,
но
выходы
должны
быть
коаксиальными
или
должны
находиться
достаточно
близко
,
чтобы
они
испытывали
одинаковые
ветровые
условия
(
не
более
50
см
).
С
23
Коаксиальный
выход
в
коллективный
воздуховод
/
дымоход
(
всасывание
и
удаление
дымовых
газов
осуществляются
в
один
и
тот
же
воздуховод
/
дымоход
).
С
33
Коаксиальный
выход
на
крышу
.
Выходы
как
в
С
13
С
43
Забор
воздуха
и
удаление
дымовых
газов
осуществляются
через
раздельные
коллективный
воздуховод
и
коллективный
дымоход
,
но
находящиеся
в
одинаковых
ветровых
условиях
.
С
53
Воздухозабор
и
дымоотвод
разделены
и
выходят
через
стену
или
на
крышу
,
но
в
любом
случае
в
зонах
с
различным
давлением
.
Удаление
дымовых
газов
и
забор
воздуха
никогда
не
должны
находиться
на
противоположных
стенах
.
С
83
Удаление
дымовых
газов
через
отдельный
или
коллективный
дымоход
,
а
забор
воздуха
индивидуальный
,
проходит
через
стену
.
С
93
Выход
дымовых
газов
на
крышку
(
как
в
С
33),
а
забор
воздуха
из
существующего
индивидуального
дымохода
Рис
.
3.13
1,3
1,85
1,6
CITY 50 R.S.I. Green
Горизонтальный
Максимальная
прямолинейная
длина
коаксиального
воздуховода
/
дымоотвода
Ø60-100
мм
, (
м
)
Потеря
напора
(
м
)
отвод
45°
отвод
90°