Котел Beretta CITY 50 R S I Green - инструкция пользователя по применению, эксплуатации и установке на русском языке. Мы надеемся, она поможет вам решить возникшие у вас вопросы при эксплуатации техники.
Если остались вопросы, задайте их в комментариях после инструкции.
"Загружаем инструкцию", означает, что нужно подождать пока файл загрузится и можно будет его читать онлайн. Некоторые инструкции очень большие и время их появления зависит от вашей скорости интернета.

10
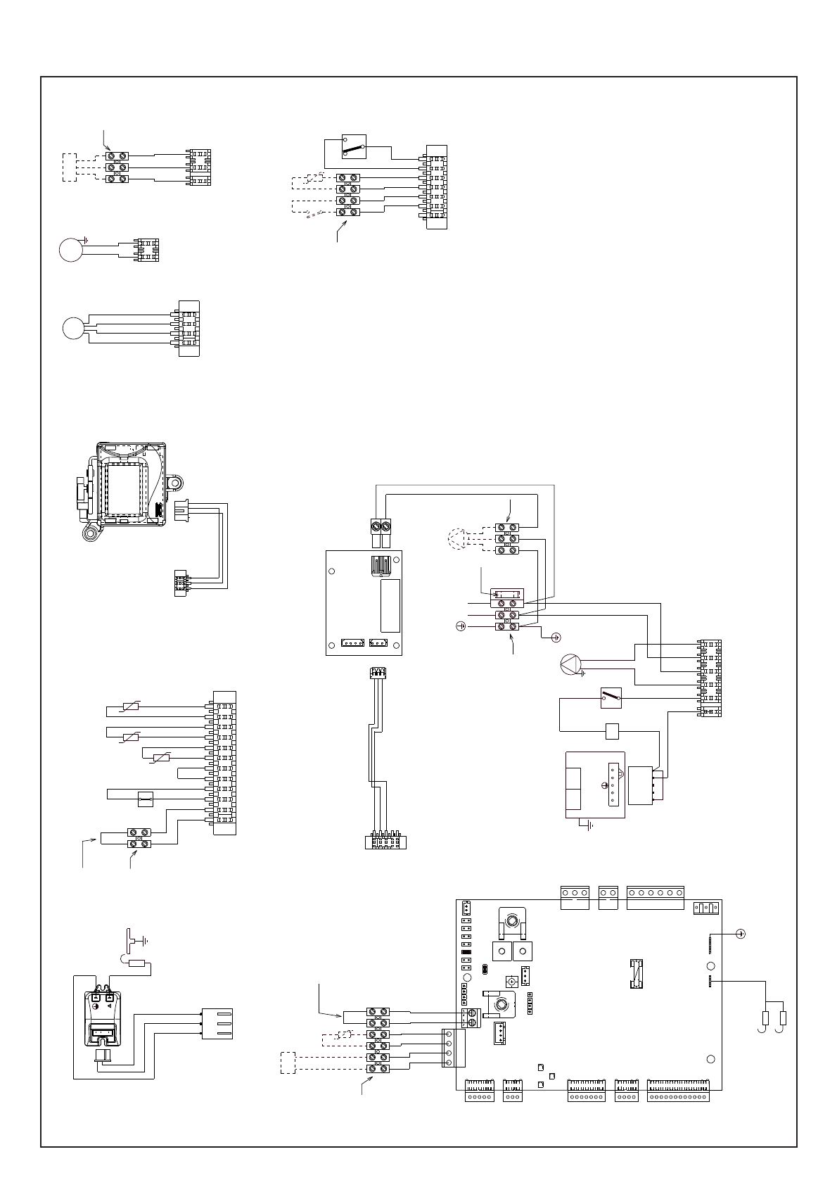
Рис
. 2.7
2.10
Электрическая
схема
ЗАМЕЧАНИЕ
:
РЕКОМЕНДУЕТСЯ
СОБЛЮДАТЬ
ПОЛЯРНОСТЬ
L-N
коричневый
CN3
синий
V Hv
1
2
7
1
CN9
P.A.
2
3
1
ɛɟɥ
ɵɣ
ɛɟɥ
ɵɣ
ɮɢɨɥɟ
ɬɨɜɵɣ
ɮɢɨɥɟ
ɬɨɜɵɣ
M4
T. BOLL.
O POS
ɤɪɚɫɧɵɣ
ɤɪɚɫɧɵɣ
−t°
S.BOLL.
AKL
JP1
JP2
JP3
JP4
JP5
JP6
JP7
JP8
P4
P3
P2
P1
CN13
CN14
F1
3.15A T
CN12
CN5
CN6
CN1
1
1
6
1
2
1
3
CN2
CN3
CN4
L1
L2
L3
1
12
CN11
1
4
CN10
1
7
CN9
FA1
FA2
1
5
CN7
1
3
CN8
CN15
SW1
1
4
ɱɟɪɧɵɣ
ɱɟɪɧɵɣ
ɨɪɚɧɠɟɜɵɣ
ɨɪɚɧɠɟɜɵɣ
ɪɨɡɨɜɵɣ
ɪɨɡɨɜɵɣ
T.A.
(24 Vdc)
−t°
S.E.
OT+
черный
M6
S.C.
E.R.
ɨɪɚɧɠɟɜɵɣ
TSC2
E.A.
коричневый
ɠɟɥɬɵɣ
/
ɡɟɥɟɧɵɣ
N
F
CN1
3
1
2
ɤɪɚɫɧɵɣ
(+)
синий (HS)
ɪɨɡɨɜɵɣ
(PWM)
ɫɟɪɵɣ
(−)
CN10
V Lv
1
4
1
12
CN11
ɛɟɥɵɣ
ɛɟɥɵɣ
S.M.
−t°
−t°
S.R.
ɤɪɚɫɧɵɣ
r
ɤɪɚɫɧɵɣ
−t°
S.F.
ɫɟɪɵɣ
ɫɟɪɵɣ
ɱɟɪɧɵɣ
T.L.A
коричневый
ɛɟɥɵɣ
ɛɟɥɵɣ
T.
B.T. −
A.G.
M2
bianco
6
1
CN2
2
1
3
5
4
12
4
3
OPE
OPE
P
ON
COM
P.D.
G
3.15 AF
N
L
230 V
M3
F
ITRF05
CN1
CN2
1
1
CN4
1
CN4
ɮɢɨ
ɥɟ
ɬɨɜɵ
(VIOLET) (−)
1
3
ɮɢɨ
ɥɟ
ɬɨɜɵɣ
(VIOLET) (−)
ɛ
ɟ
ɥɵɣ
(WHITE) (sign.)
ɤɪɚɫɧɵɣ
(RED) (alim.)
CN2
ɠɟ
ɥɬɵɣɡ
ɟɥɟɧɵɣ
1
5
CN7
M3a
P2
ɱɟɪɧɵɣ
(D.H.W.)
коричневый (C.H.)
синий (N)
3
1
CN4
3V
M3b
4
1
1
3
ɨɪɚɧɠɟɜɵɣ
ɤɪɚɫɧɵɣ
ɱɟɪɧɵɣ
ɤɪɚɫɧɵɣ
ɱɟɪɧɵɣ
ɨɪɚɧɠɟɜɵɣ
CN8
J1
J1
VIS MEDIUM
ɫɢɧɢɣ
ɫɢɧɢɣ
ɫɢɧɢɣ
ɫɢɧɢɣ
ɫɢɧɢɣ
ɫɢɧɢɣ
ɫɢɧɢɣ
ɫɢɧɢɣ
ɤɨɪɢɱɧɟɜɵɣ
ɤɨɪɢɱɧɟɜɵɣ
ɤɨɪɢɱɧɟɜɵɣ
ɤɨɪɢɱɧɟɜɵɣ
ɫɢɧɢɣ
ɤɨɪɢɱɧɟɜɵɣ
ɤɨɪɢɱɧɟɜɵɣ
ɤɨɪɢɱɧɟɜɵɣ
ɤɨɪɢɱɧɟɜɵɣ
ɤɨɪɢɱɧɟɜɵɣ
ɪɨ
ɡɨɜɵɣ
Ƚɚ
ɡɨɜɵɣɤ
ɥɚɩɚɧ
ɛ
ɟ
ɥɵɣ
(WHITE) (sign.)
ɤɪɚɫɧɵɣ
(RED) (alim.)