Кондиционеры Cooper&Hunter CH-IDH100PNK - инструкция пользователя по применению, эксплуатации и установке на русском языке. Мы надеемся, она поможет вам решить возникшие у вас вопросы при эксплуатации техники.
Если остались вопросы, задайте их в комментариях после инструкции.
"Загружаем инструкцию", означает, что нужно подождать пока файл загрузится и можно будет его читать онлайн. Некоторые инструкции очень большие и время их появления зависит от вашей скорости интернета.

DC Inverter Duct Type Unit
18
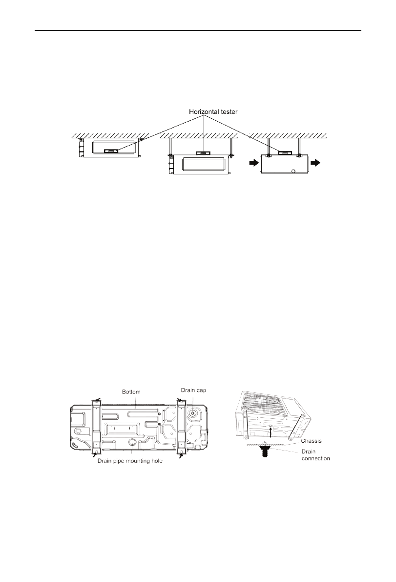
3.2.1.2 Leveling
After installing the indoor unit, level detection of the unit shall be conducted.
Place the unit horizontally and leave the left and right side with a downward slope
of at least 1/100 in drainage direction, as show
n
below.
3.2.2 Outdoor Unit Installation
(1)
If the outdoor unit is installed on a solid ground such as concrete, use M10
screw bolts and nuts to secure the unit and make sure the unit stands
erect and level.
(2)
Do not install it on top of the building.
(3)
If it vibrates and causes noise, please add rubber cushion between the
outdoor unit and the installation base.
(4)
When the outdoor unit is in heating or defrosting, it needs to drain water.
When installing the drain pipe, plug the accompanied drainage connector
to the drainage hole on the chassis of the outdoor unit. Then connect a
drain hose to the drainage connector (If drainage connector is used, the
outdoor unit should be at least 10cm from the installation ground). See the
following figures.
Характеристики
Остались вопросы?Не нашли свой ответ в руководстве или возникли другие проблемы? Задайте свой вопрос в форме ниже с подробным описанием вашей ситуации, чтобы другие люди и специалисты смогли дать на него ответ. Если вы знаете как решить проблему другого человека, пожалуйста, подскажите ему :)