Кондиционеры Daikin EDLQ-CV3 - инструкция пользователя по применению, эксплуатации и установке на русском языке. Мы надеемся, она поможет вам решить возникшие у вас вопросы при эксплуатации техники.
Если остались вопросы, задайте их в комментариях после инструкции.
"Загружаем инструкцию", означает, что нужно подождать пока файл загрузится и можно будет его читать онлайн. Некоторые инструкции очень большие и время их появления зависит от вашей скорости интернета.

8 Технические данные
Руководство по монтажу
25
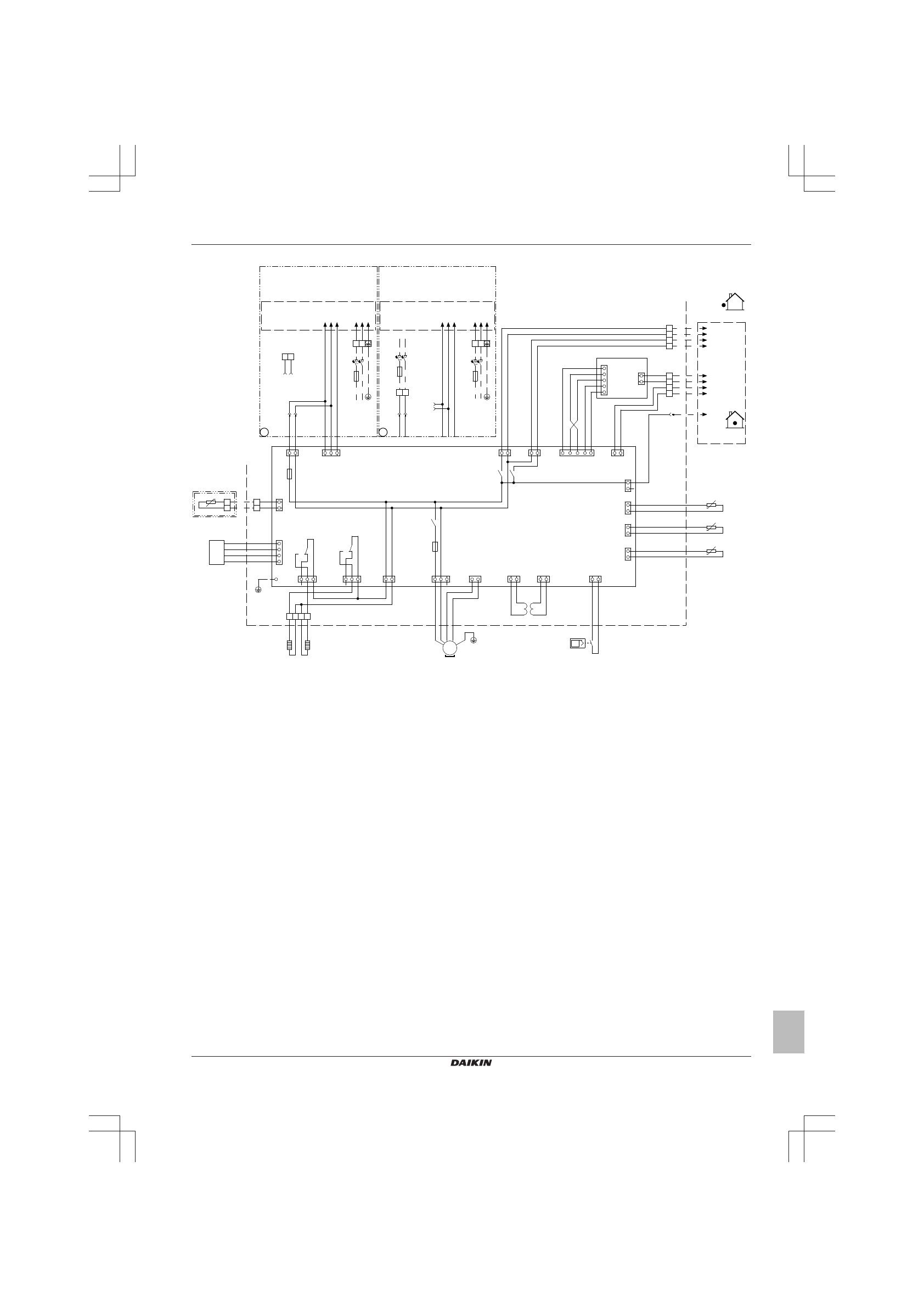
EBLQ+EDLQ05+07CAV3
Низкотемпературный моноблок Daikin Altherma
4P403578-1C – 2016.02
Наружный агрегат: гидромодуль
X3M
X2M/1 X2M/2 X2M/3
X1M/L X1M/N X1M/PE
X1M/PE
X1M/L X1M/N
X2M/1 X2M/2 X2M/3
X4M
Q3DI
X6YB
X6YA
X6Y
N
L
L N
Q4DI
5 6
L N
X6Y
X6YB
X3M
X6YA
L N
1 3 5
1
3
X1A
X19A
X4M
Q3DI
L N
FU1
X22A
4
3
2
1
1
2
R6T
X5M
-t°
5
6
1
2
B1L
X4A
2
1
5
1
3
1 2
1 3
1
3 5
1
1 3
3 5
2
1
X25A
X16A
X31A
X20A
X2A
X28A
X26A
X45A
E7H
E6H
X7M
1 2 3 4
KCR
K5R
FU2
KVR
2
2
1
1
1
2
1
2
X5A
X8A
X7A
X21A
K4R
K6R
X10A
X14A
X15A
X18A
1 2 3 4 5
3 1
1
3
1
2
A1P
TR1
M1P
S1L
N
L
GND PWM
PE
MS
3~
-t°
-t°
-t°
R3T
R4T
R1T
X10A
X1A
X5M
X3M
X5Y
A2P
4
3
4
3
2
1
2
1
X2M/23
X2M/22
X2M/21
X2M/20
X8M/9
X8M/8
X8M/7
X8M/6
X8M/10
1
2
2
1
3
4
5
E
1
1
5 6
Только для электропитания по льготному
тарифу (компрессор)
Использовать нормальный источник
электропитания для распределительной
коробки гидросистемы
Только для электропитания в нормальном
режиме работы (стандартно).
Распределительная коробка гидросистемы
питается от компрессорного модуля
Распределительная коробка компрессора
Распределительная коробка компрессора
1N~, 50 Гц
230 В~
Обычный источник
электропитания
1N~, 50 Гц
230 В~
Предпочтительное
электропитание
1N~, 50 Гц
230 В~
Обычный источник
электропитания
Распределител
ьная коробка
Распределительная коробка
гидросистемы
Внешний наружный
датчик температуры
окружающего
воздуха (опция)
4D094176-1C_Cтр. 7