Холодильник Smeg SBS8004AO - инструкция пользователя по применению, эксплуатации и установке на русском языке. Мы надеемся, она поможет вам решить возникшие у вас вопросы при эксплуатации техники.
Если остались вопросы, задайте их в комментариях после инструкции.
"Загружаем инструкцию", означает, что нужно подождать пока файл загрузится и можно будет его читать онлайн. Некоторые инструкции очень большие и время их появления зависит от вашей скорости интернета.

5 / 32 DK
Køleskab / Brugervejledning
2
Køleskab
C
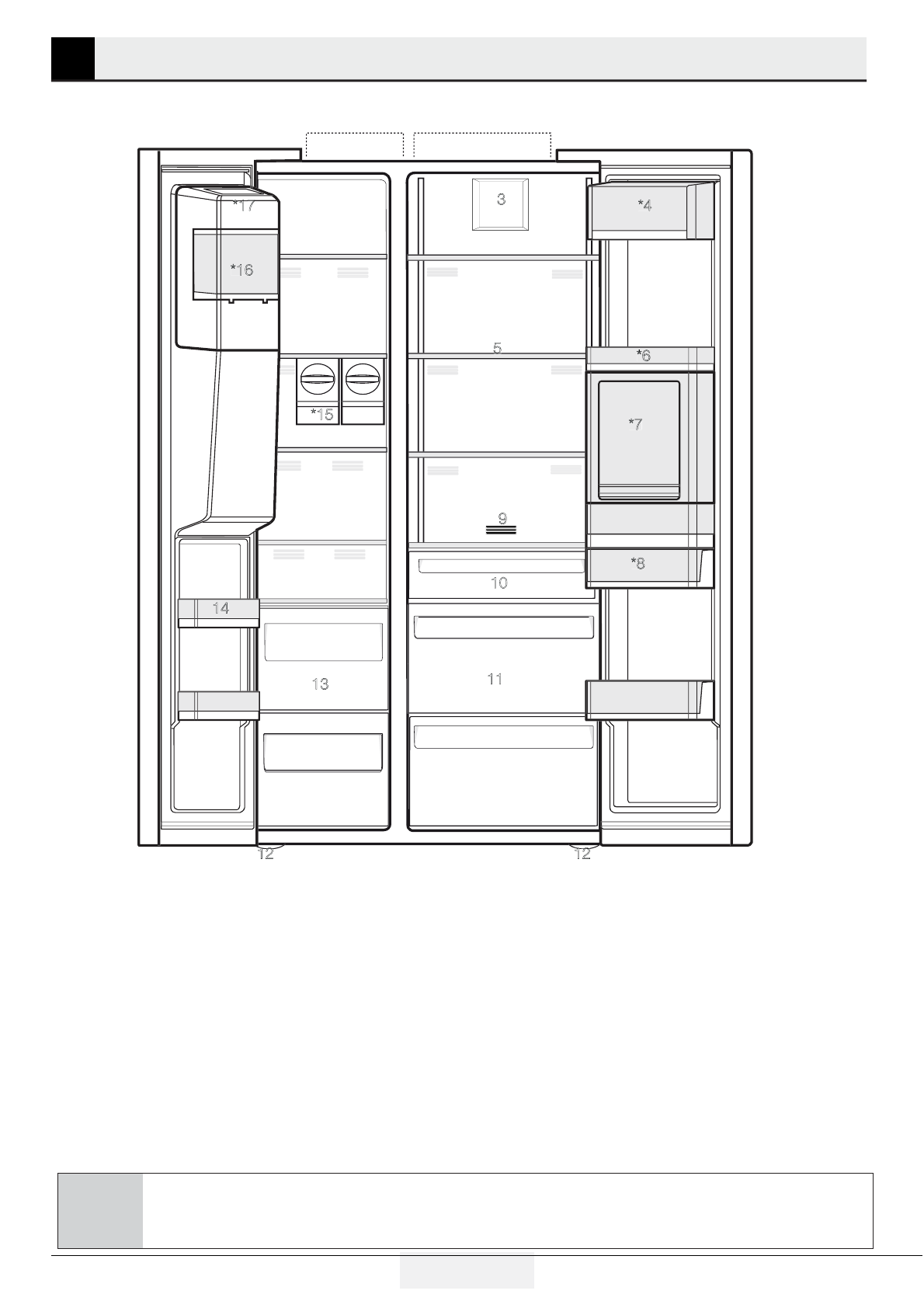
*Tilvalg: Tallene i denne brugervejledning er skematiske og matcher muligvis ikke præcist dit produkt.
Hvis dit produkt ikke omfatter de relevante dele, gælder oplysningerne for andre modeller.
1-
Fryser
2-
Køleskab
3-
Blæser
4-
Smør-/osteboks
5-
Glashylder
6-
Dørhylder til køleskab
7-
Tilbehørsdele til minibar
8-
Vandbeholder
9-
Lugtfilter
10-
Nulgraders rum
11-
Grøntsagsskuffer
12-
Justerbare ben
13-
Opbevaringsskuffer til frosne fødevarer
14-
Hylder til fryseskabsdøren
15-
Icematics
16-
Isopbevaringsboks
17-
Dekorativt låg til ismaskine
*Tilvalg
2
1
3
*4
5555555
*6
*7
11
10
13
14
9
*15
*16
77
*17
*1777
11
****
22
122
1122
11
22
122
1122
11
*8
Характеристики
Остались вопросы?Не нашли свой ответ в руководстве или возникли другие проблемы? Задайте свой вопрос в форме ниже с подробным описанием вашей ситуации, чтобы другие люди и специалисты смогли дать на него ответ. Если вы знаете как решить проблему другого человека, пожалуйста, подскажите ему :)