Холодильник Smeg SBS8004AO - инструкция пользователя по применению, эксплуатации и установке на русском языке. Мы надеемся, она поможет вам решить возникшие у вас вопросы при эксплуатации техники.
Если остались вопросы, задайте их в комментариях после инструкции.
"Загружаем инструкцию", означает, что нужно подождать пока файл загрузится и можно будет его читать онлайн. Некоторые инструкции очень большие и время их появления зависит от вашей скорости интернета.

5 / 32 ES
Refrigerador / Guía del usuario
2
Refrigerador
C
*Opcional: Las imágenes en esta guía del usuario son esquemáticas y es posible que no sean
exactamente iguales que su aparato. Si el aparato no contiene las partes pertinentes, entonces la
información pertenece a otros modelos.
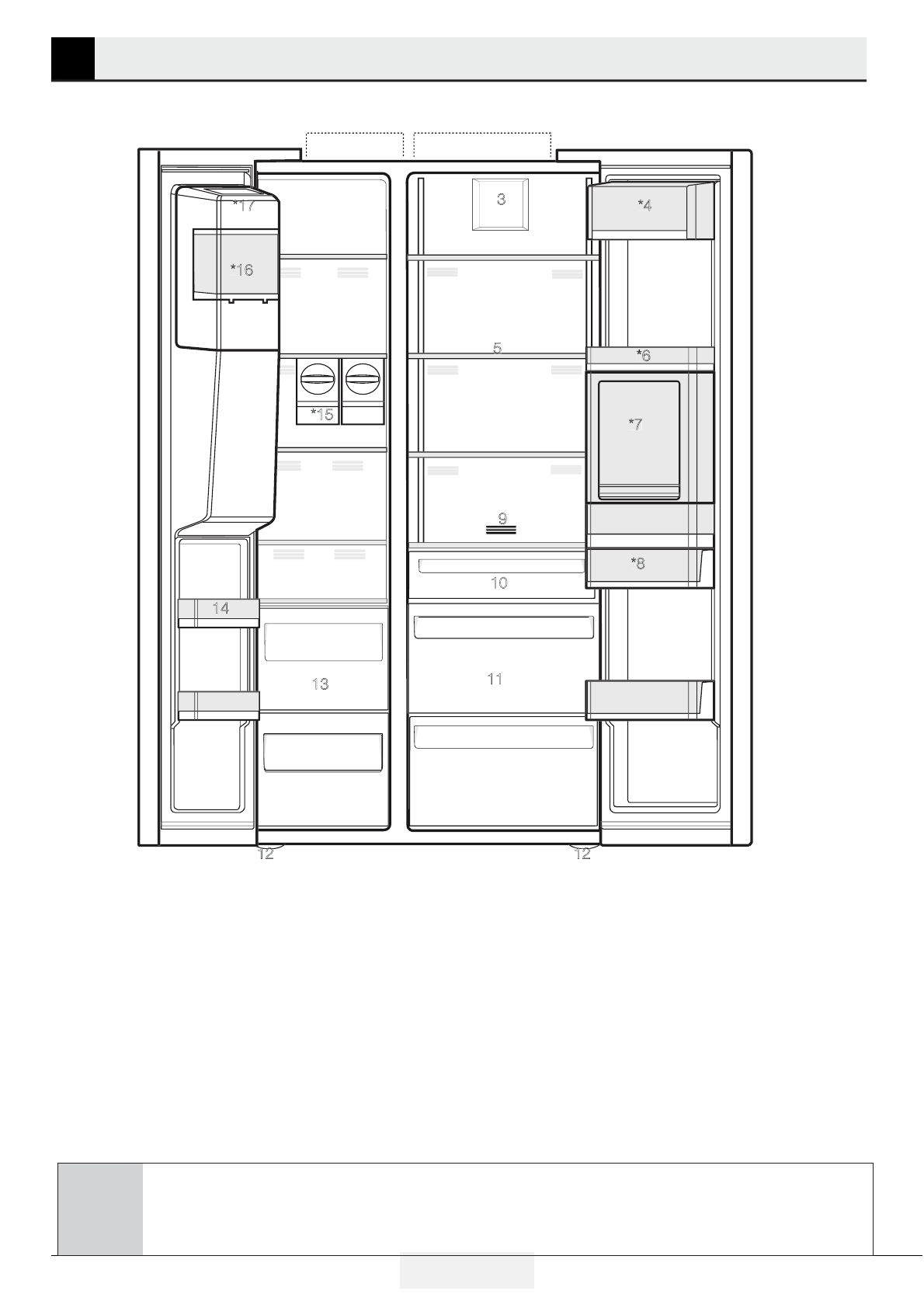
1-
Congelador
2-
Refrigerador
3-
Ventilador
4-
Compartimento de mantequilla-queso
5-
Estantes de vidrio
6-
Puertas los estantes del refrigerador
7-
Minibar
8-
Depósito de agua
9-
Filtro de olores
10-
Compartimento a cero grados
11-
Bandejas de vegetales
12-
Soportes ajustables
13-
Compartimentos de almacenamiento para
alimentos congelados
14-
Puertas de los estantes del congelador
15-
Icematics
16-
Depósito de hielo
17-
Tapa decorativa de la hielera
*Opcional
2
1
3
*4
5555555
*6
*7
11
10
13
14
9
*15
*16
77
*17
*1777
11
****
22
122
1122
11
22
122
1122
11
*8
Характеристики
Остались вопросы?Не нашли свой ответ в руководстве или возникли другие проблемы? Задайте свой вопрос в форме ниже с подробным описанием вашей ситуации, чтобы другие люди и специалисты смогли дать на него ответ. Если вы знаете как решить проблему другого человека, пожалуйста, подскажите ему :)