Холодильник Smeg SBS8004AO - инструкция пользователя по применению, эксплуатации и установке на русском языке. Мы надеемся, она поможет вам решить возникшие у вас вопросы при эксплуатации техники.
Если остались вопросы, задайте их в комментариях после инструкции.
"Загружаем инструкцию", означает, что нужно подождать пока файл загрузится и можно будет его читать онлайн. Некоторые инструкции очень большие и время их появления зависит от вашей скорости интернета.

5 / 32 FR
Réfrigérateur / Manuel d’utilisation
2
Réfrigérateur
C
*En option : Les illustrations présentées dans ce manuel d’utilisation sont schématiques et peuvent ne
pas correspondre exactement à votre produit. Si votre appareil ne dispose pas des parties citées, alors
l’information s’applique à d’autres modèles.
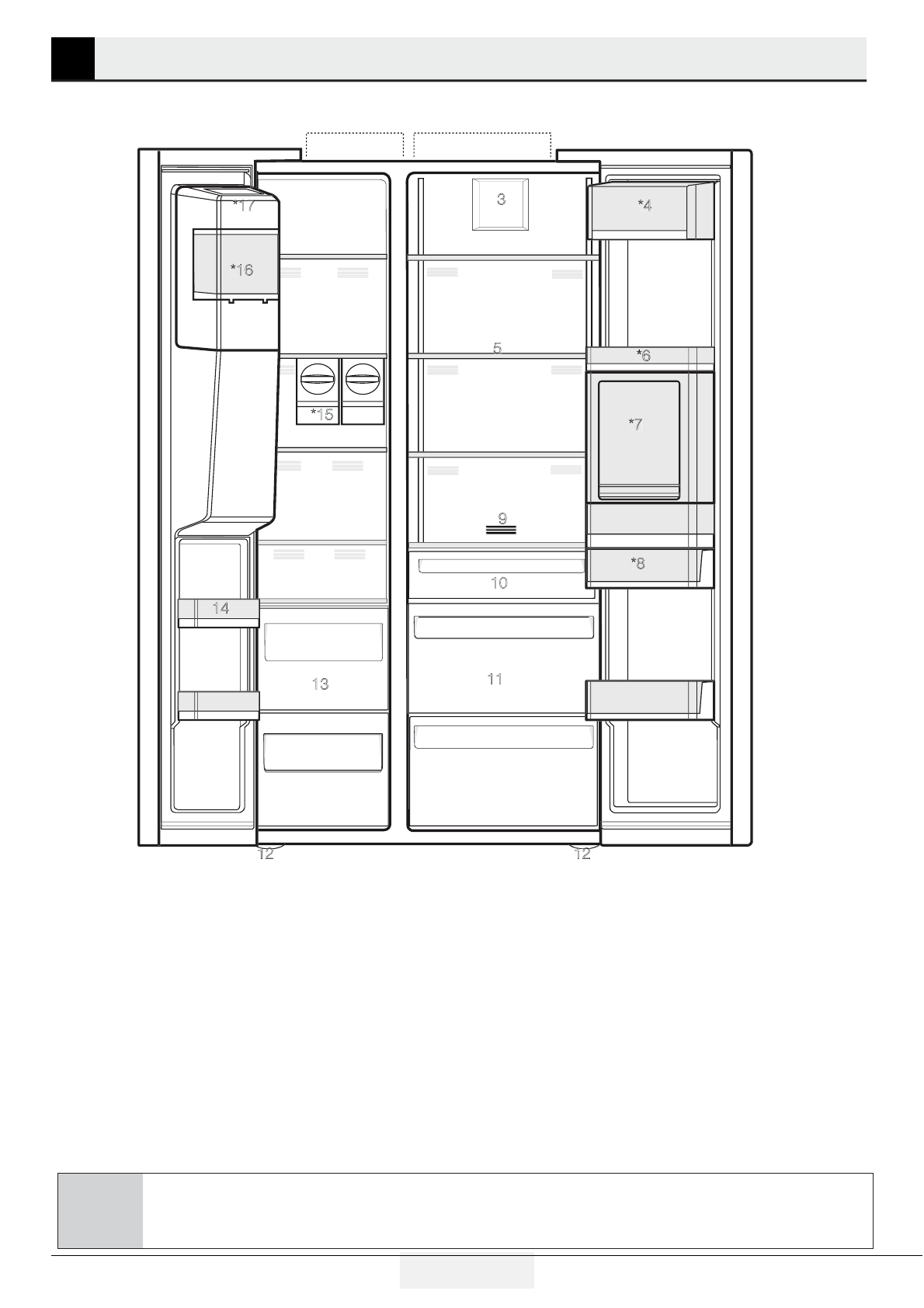
1-
Compartiment congélateur
2-
Compartiment réfrigérateur
3-
Ventilateur
4-
Compartiment amuse-gueule
5-
Clayettes en verre
6-
Balconnets de la porte du compartiment
réfrigérateur
7-
Accessoires du minibar
8-
Réservoir d'eau
9-
Filtre à odeurs
10-
Compartiment zéro degré
11-
Bac à légumes
12-
Pieds réglables
13-
Compartiments de conservation des aliments
congelés
14-
Balconnets de la porte du compartiment
congélateur
15-
Machine à glaçons
16-
Bac à glaçons
17-
Couvercle décoratif de la machine à glaçons
*En option
2
1
3
*4
5555555
*6
*7
11
10
13
14
9
*15
*16
77
*17
*1777
11
****
22
122
1122
11
22
122
1122
11
*8
Характеристики
Остались вопросы?Не нашли свой ответ в руководстве или возникли другие проблемы? Задайте свой вопрос в форме ниже с подробным описанием вашей ситуации, чтобы другие люди и специалисты смогли дать на него ответ. Если вы знаете как решить проблему другого человека, пожалуйста, подскажите ему :)