Холодильник Liebherr BP 2850 - инструкция пользователя по применению, эксплуатации и установке на русском языке. Мы надеемся, она поможет вам решить возникшие у вас вопросы при эксплуатации техники.
Если остались вопросы, задайте их в комментариях после инструкции.
"Загружаем инструкцию", означает, что нужно подождать пока файл загрузится и можно будет его читать онлайн. Некоторые инструкции очень большие и время их появления зависит от вашей скорости интернета.

der Medizinprodukterichtlinie 2007/47/EG zu
Grunde liegenden Stoffe und Produkte
-
Einsatz in explosionsgefährdeten Bereichen
-
Einsatz auf beweglichen Untergründen wie
Schiffen, Schienenverkehr oder Flugzeugen
-
Lagerung von lebenden Tieren
Eine missbräuchliche Verwendung des Gerätes
kann zu Schädigungen an der eingelagerten
Ware oder deren Verderb führen.
Klimaklassen
Das Gerät ist je nach Klimaklasse für den
Betrieb bei begrenzten Umgebungstempera-
turen ausgelegt. Die für Ihr Gerät zutreffende
Klimaklasse ist auf dem Typenschild aufge-
druckt.
Hinweis
u
Um einen einwandfreien Betrieb zu gewähr-
leisten, angegebene Umgebungstempera-
turen einhalten.
Klimaklasse
für Umgebungstemperaturen von
SN
10 °C bis 32 °C
N
16 °C bis 32 °C
ST
16 °C bis 38 °C
T
16 °C bis 43 °C
1.3 Konformität
Der Kältemittelkreislauf ist auf Dichtheit geprüft. Das Gerät
entspricht den einschlägigen Sicherheitsbestimmungen sowie
den Richtlinien 2014/35/EU, 2014/30/EU, 2009/125/EG,
2011/65/EU und 2010/30/EU.
Das BioFresh-Fach erfüllt die Anforderungen eines Kaltlagerfa-
ches nach DIN EN 62552.
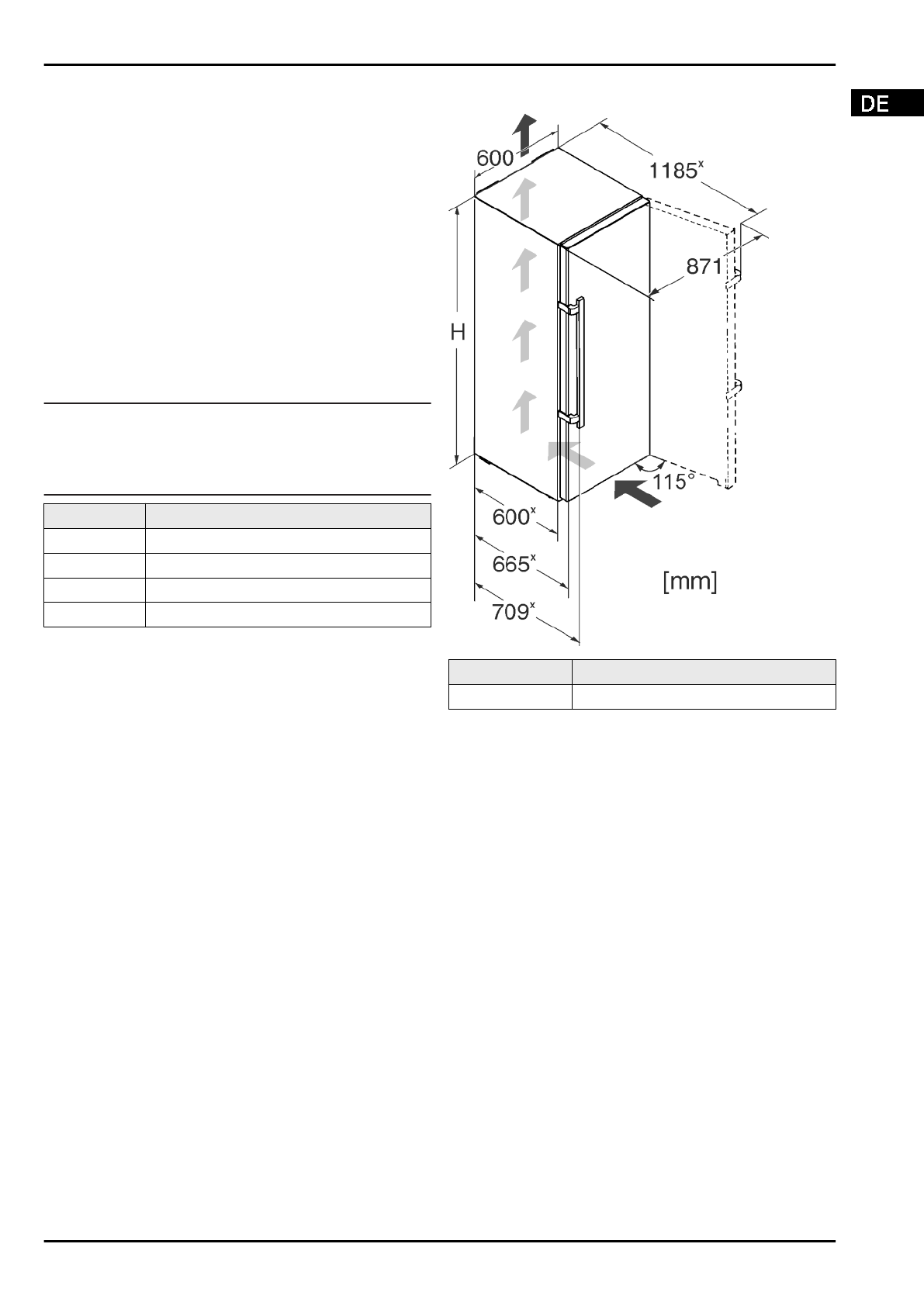
1.4 Aufstellmaße
Fig. 2
Modell
Gerätehöhe H (mm)
B 28..
1250
x
Bei Verwendung von Wandabstandshaltern vergrößert sich
das Maß um 15 mm (siehe 4.2) .
Die Maße bei geöffneter Tür gelten für einen Öffnungswinkel
von 115 °. Abstandsmaße variieren je nach Öffnungswinkel.
1.5 Energie sparen
-
Immer auf gute Be- und Entlüftung achten. Lüftungsöff-
nungen bzw. -gitter nicht abdecken.
-
Ventilatorluftschlitze immer frei halten.
-
Gerät nicht im Bereich direkter Sonnenbestrahlung, neben
Herd, Heizung und dergleichen aufstellen.
-
Der Energieverbrauch ist abhängig von den Aufstellbedin-
gungen z.B. der Umgebungstemperatur (siehe 1.2) . Bei
Abweichung der Umgebungstemperatur von der Normtem-
peratur 25 °C kann sich der Energieverbrauch ändern.
-
Gerät möglichst kurz öffnen.
-
Je niedriger die Temperatur eingestellt wird, desto höher ist
der Energieverbrauch.
-
Lebensmittel nur solange wie nötig herausnehmen, damit
sie sich nicht zu sehr erwärmen.
-
Warme Speisen einlegen: erst auf Zimmertemperatur
abkühlen lassen.
Gerät auf einen Blick
* Je nach Modell und Ausstattung
3
Характеристики
Остались вопросы?Не нашли свой ответ в руководстве или возникли другие проблемы? Задайте свой вопрос в форме ниже с подробным описанием вашей ситуации, чтобы другие люди и специалисты смогли дать на него ответ. Если вы знаете как решить проблему другого человека, пожалуйста, подскажите ему :)













