Генераторы AKSA AAP2200i - инструкция пользователя по применению, эксплуатации и установке на русском языке. Мы надеемся, она поможет вам решить возникшие у вас вопросы при эксплуатации техники.
Если остались вопросы, задайте их в комментариях после инструкции.
"Загружаем инструкцию", означает, что нужно подождать пока файл загрузится и можно будет его читать онлайн. Некоторые инструкции очень большие и время их появления зависит от вашей скорости интернета.

25
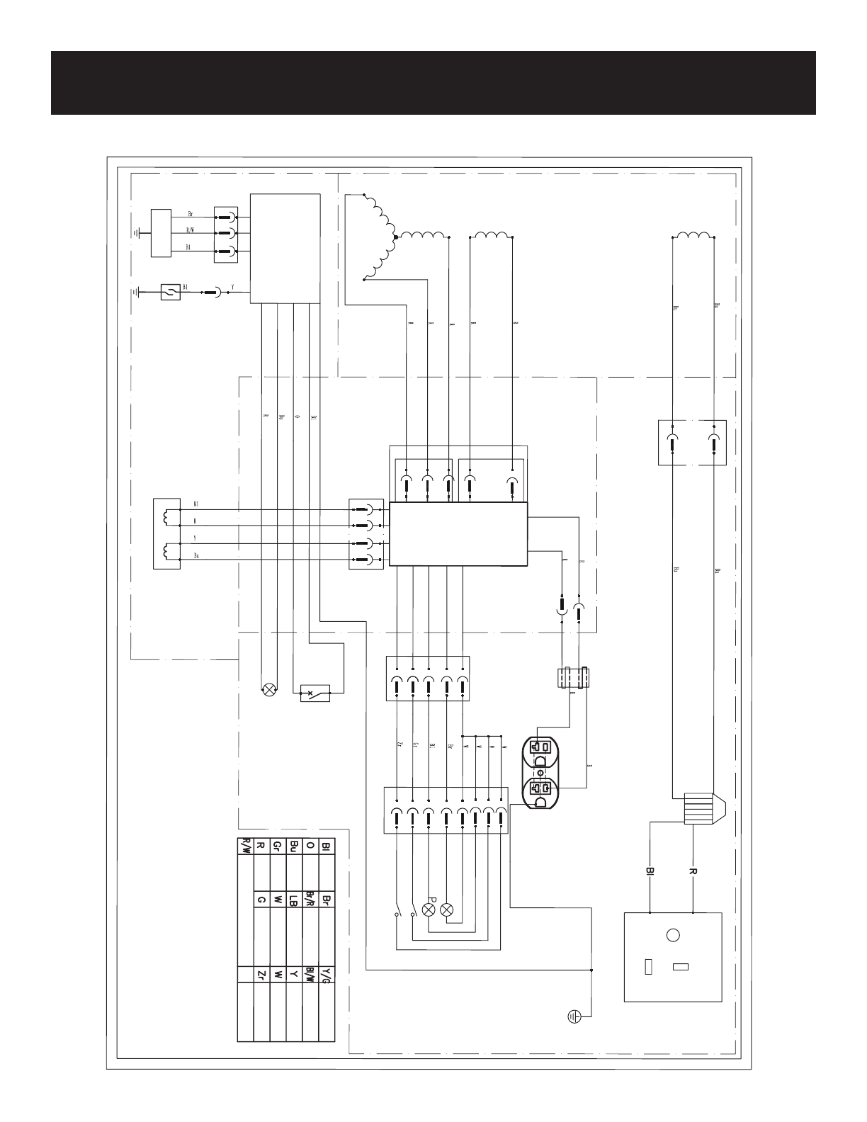
WIRING DIAGRAM
50Hz, 230V Without Parallel Receptacle
+
-
!
DC Winding
Generator
Control Panel
Electricity
Control
Winding
Main
Winding
Ignitor
Ignitor Coil
Oil Sentor
Engine
Stepping Alternator
Invertor
Device
Switch
Oil Alarm
Error
Run
DC 120V 8.3A
Self - protect
DC
Outlet
Grounding
EMI Magnet Ring
Black
Orange
Blue
Grey
Red
Red/White
Brown
Brown/Red
Light Blue
White
Green
Yellow/Green
Black/White
Yellow
White
Purple
50Hz/230V without
Parallel Receptacle
Характеристики
Остались вопросы?Не нашли свой ответ в руководстве или возникли другие проблемы? Задайте свой вопрос в форме ниже с подробным описанием вашей ситуации, чтобы другие люди и специалисты смогли дать на него ответ. Если вы знаете как решить проблему другого человека, пожалуйста, подскажите ему :)




