Генераторы AKSA AAP2200i - инструкция пользователя по применению, эксплуатации и установке на русском языке. Мы надеемся, она поможет вам решить возникшие у вас вопросы при эксплуатации техники.
Если остались вопросы, задайте их в комментариях после инструкции.
"Загружаем инструкцию", означает, что нужно подождать пока файл загрузится и можно будет его читать онлайн. Некоторые инструкции очень большие и время их появления зависит от вашей скорости интернета.

25
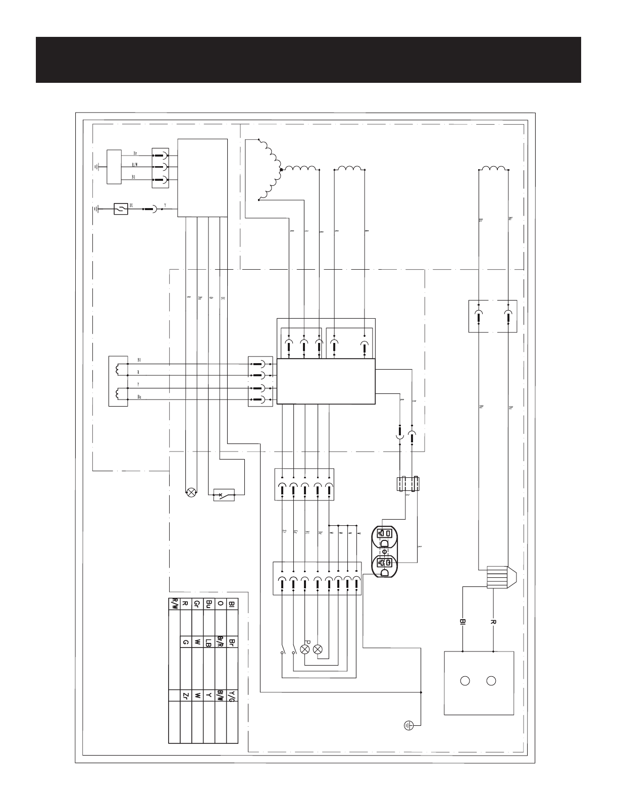
ŞEMALAR
50Hz, 230V Paralel Prizsiz
+
-
!
A3
.8
V0
32
C
D
DC S
ar
gısı
Jener
atör
Elektr
ik
Kon
tr
ol
Sar
gısı
An
a
Sa
rg
ı
Ateşleyici
Yağ S
ensörü
M
ot
or
In
ver
tor
Cihazı
EMI M
an
yetik Halk
a
Kademeli A
lter
na
tör
Anah
tar
Çalışma
Siy
ah
Kah
ver
eng
i
Sar
ı/Y
eşil
Siy
ah/B
ey
az
Sar
ı
Bey
az
M
or
Açık M
avi
Bey
az
Yeşil
Kah
ver
engi/Kırmızı
Turuncu
M
av
i
Gr
i
Kır
mızı
Kır
mızı/B
ey
az
Ha
ta
Kon
tr
ol P
aneli
Topr
ak
lama
Yağ A
lar
mı
AteşleyiciB
obin
Характеристики
Остались вопросы?Не нашли свой ответ в руководстве или возникли другие проблемы? Задайте свой вопрос в форме ниже с подробным описанием вашей ситуации, чтобы другие люди и специалисты смогли дать на него ответ. Если вы знаете как решить проблему другого человека, пожалуйста, подскажите ему :)



