Страница 2 - ECONCEPT TECH 25 A; Декларация
ECONCEPT TECH 25 A 92 RU B Декларация соответствия Изготовитель : FERROLI S.p.A., адрес : Via Ritonda 78/a 37047 San Bonifacio VR, заявляет , что настоящее изделие соответствует следующим директивам CEE: • Директива по газовым приборам 90/396 • Директива по К . П . Д . 92/42 • Директива по низкому н...
Страница 4 - Инструкции; Предисловие; Панель; Обозначения; reset
ECONCEPT TECH 25 A 94 RU cod. 3540I311 - 05/2008 (Rev. 00) 1. Инструкции по эксплуатации 1.1 Предисловие Уважаемый покупатель , Благодарим Вас за то , что Вы выбрали настенный котел ECONCEPT TECH 25 AFERROLI , имеющий самую современную конструкцию , выполненный по передовым технологиям и отличающийс...
Страница 6 - Включение; Выключение
ECONCEPT TECH 25 A 96 RU cod. 3540I311 - 05/2008 (Rev. 00) 1.3 Включение и выключение Включение котла Включите электропитание аппарата . рис . 4 - Включение котла • В течение следующих 120 секунд на дисплее будет высвечиваться символ FH, обозначающий цикл спуска воздуха из системы отопления . • В те...
Страница 7 - Регулировки
ECONCEPT TECH 25 A 97 RU cod. 3540I311 - 05/2008 (Rev. 00) B При отключении котла от системы электропитания и / или газовой магистрали функция антизамерзания отключается . Во время длительного не использования котла в зимний период , во избежание ущерба от возможного замерзания рекомендуется слить в...
Страница 9 - Таблица
ECONCEPT TECH 25 A 99 RU cod. 3540I311 - 05/2008 (Rev. 00) При повторном нажатии клавиши ( поз . 6 - рис . 1) в течение 5 секунд осуществляется выход из меню " Плавающая температура ". Если температура в помещении оказывается ниже желаемой , рекомендуется выбрать характеристику более высоког...
Страница 10 - Регулирование
ECONCEPT TECH 25 A 100 RU cod. 3540I311 - 05/2008 (Rev. 00) Регулирование давления воды в системе отопления Давление подпитки при холодной системе , контролируемое по показанию водомера котла , должно составлять примерно 1,0 бар . При падении давления в системе ниже минимального предела , электронны...
Страница 11 - Установка; Предупреждения
ECONCEPT TECH 25 A 101 RU cod. 3540I311 - 05/2008 (Rev. 00) 2. Установка 2.1 Указания общего характера УСТАНОВККА КОТЛА ДОЛЖНА ОСУЩЕСТВЛЯТЬСЯ ИСКЛЮЧИТЕЛЬНО СИЛАМИ КВАЛИФИЦИРОВАННОГО И ОПЫТНОГО ПЕРСОНАЛА , ИМЕЮЩЕГО ПРОВЕРЕННУЮ КВАЛИФИКАЦИЮ , КОТОРЫЙ ДОЛЖЕН ОБЯЗАТЕЛЬНО СОБЛЮДАТЬ ВСЕ ИНСТРУКЦИИ , СОДЕР...
Страница 13 - Соединение; Присоединение
ECONCEPT TECH 25 A 103 RU cod. 3540I311 - 05/2008 (Rev. 00) Соединение с бойлером для ГВС Электронная плата агрегата предназначена также для управления внешним бойлером для производства воды ГВС . Соединения труб системы отопления и ГВС должны быть выполнены в соответствии со схемой рис . 17. Электр...
Страница 14 - Подключение
ECONCEPT TECH 25 A 104 RU cod. 3540I311 - 05/2008 (Rev. 00) 2.5 Подключение электропитания Подключение к сети электроснабжения B Электрическая безопасность аппарата обеспечивается только в том случае , еси он правильно подключен к эффективной системе заземления , устроенной в соответствии с действую...
Страница 15 - Доступ; Дымоходы
ECONCEPT TECH 25 A 105 RU cod. 3540I311 - 05/2008 (Rev. 00) Доступ к блоку зажимов Чтобы получить доступ к блоку зажимов следуйте указаниям , приведенным на рис . 19. Расположение клемм и их назначение показаны также на электрической схеме в рис . 34. рис . 19 - Доступ к блоку зажимов 2.6 Дымоходы Д...
Страница 19 - Слив
ECONCEPT TECH 25 A 109 RU cod. 3540I311 - 05/2008 (Rev. 00) 2.7 Слив конденсата Котел оборудован сифоном для слива конденсата . Установите ревизию A и , приложив некоторое усилие , присоедините гибкий шланг B так , чтобы он надвинулся на 3 см . Затем закрепите его хомутом . Налить в сифон около 0,5 ...
Страница 20 - Эксплуатация
ECONCEPT TECH 25 A 110 RU cod. 3540I311 - 05/2008 (Rev. 00) 3. Эксплуатация и техническое обслуживание Все нижеописанные операции по регулировке , переоборудованию , вводу в эксплуатацию и техобслуживанию подлежат выполнению исключительно силами специалистов с высокой квалификацией ( удовлетворяющим...
Страница 22 - Ввод; Уход
ECONCEPT TECH 25 A 112 RU cod. 3540I311 - 05/2008 (Rev. 00) 3.2 Ввод в эксплуатацию B Контрольные операции , которые следует выполнять перед первым розжигом , а также после проведения технического обслуживания , во время которого котел был отсоединен от сетей питания или были произведены работы на п...
Страница 23 - Снятие
ECONCEPT TECH 25 A 113 RU cod. 3540I311 - 05/2008 (Rev. 00) Снятие кожуха Демонтаж кожуха выполняется следующим образом ( рис . 29): 1. Отвинтите винты (1) 2. Поверните кожух (2) и снимите его . 3. Приподнимите и снимите кожух (3) рис . 29 - Демонтаж кожуха Анализ дымовых газов Анализ продуктов сгор...
Страница 24 - Неисправности; Диагностика
ECONCEPT TECH 25 A 114 RU cod. 3540I311 - 05/2008 (Rev. 00) 3.4 Неисправности и способ устранения Диагностика В случае возникновения каких - либо неисправностей или сбоев начинает мигать подсветка дисплея , а на нем высвечивается код соответствующей неисправности . Некоторые неисправности ( обознача...
Страница 26 - Характеристики; Габаритные
ECONCEPT TECH 25 A 116 RU cod. 3540I311 - 05/2008 (Rev. 00) 4. Характеристики и технические данные 4.1 Габаритные размеры и присоединения рис . 31 - Габаритные размеры и присоединения 1 = Выходной штуцер системы отопления 3 = Подвод газа 5 = Обратный трубопровод системы отопления 6 = Сливное отверст...
Страница 27 - Общий
ECONCEPT TECH 25 A 117 RU cod. 3540I311 - 05/2008 (Rev. 00) 4.2 Общий вид и основные узлы рис . 32 - Общий вид 5 Герметичная камера 7 Подвод газа 10 Выходной штуцер контура системы отопления 11 Обратный трубопровод системы отопления 14 Предохранительный клапан 16 Вентилятор 19 Камера сгорания 22 Осн...
Страница 28 - Схема
ECONCEPT TECH 25 A 118 RU cod. 3540I311 - 05/2008 (Rev. 00) 4.3 Схема системы отопления и ГВС рис . 33 - Схема системы отопления и ГВС 7 Подвод газа 10 Выходной штуцер контура системы отопления 11 Обратный трубопровод системы отопления 14 Предохранительный клапан 16 Вентилятор 32 Циркуляционный насо...
Страница 30 - Диаграммы; Потеря
ECONCEPT TECH 25 A 120 RU cod. 3540I311 - 05/2008 (Rev. 00) 4.5 Диаграммы Потеря напора / Напор циркуляционных насосов A Потери напора в котле 1 - 2 - 3 Частота вращения циркуляционного насоса 0 1 2 3 4 5 6 7 0 500 1.000 1.500 2.000 Q [l/h] H [m H 2 O] A 3 2 1
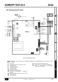
Страница 31 - Электрическая
ECONCEPT TECH 25 A 121 RU cod. 3540I311 - 05/2008 (Rev. 00) 4.6 Электрическая схема рис . 34 - Электрическая схема A Внимание : Перед подключением > комнатного термостата или устройства ДУ снимите перемычку на доске зажимов . 16 Вентилятор 32 Циркуляционный насос системы отопления 44 Газовый клап...