Ferroli ATLAS D K100 - Инструкция по эксплуатации

Ferroli ATLAS D K100

Котел Ferroli ATLAS D K100 - инструкция пользователя по применению, эксплуатации и установке на русском языке. Мы надеемся, она поможет вам решить возникшие у вас вопросы при эксплуатации техники.

Если остались дополнительные вопросы — свяжитесь с нами через контактную форму.

1 Страница 1
2 Страница 2
3 Страница 3
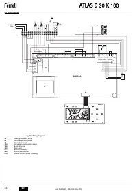
4 Страница 4
5 Страница 5
6 Страница 6
7 Страница 7
8 Страница 8
9 Страница 9
10 Страница 10
11 Страница 11
12 Страница 12
13 Страница 13
14 Страница 14
15 Страница 15
16 Страница 16
17 Страница 17
18 Страница 18
19 Страница 19
20 Страница 20
21 Страница 21
22 Страница 22
Страница: / 22
Загрузка инструкции

cod. 3

540

S361 — 08/20

09

(Rev. 00

)

ATLAS D 30 K 100

ISTRUZIONE PER L’USO L'INSTALLAZIONE E LA MANUTENZIONE
INSTRUCCIONES DE USO, INSTALACIÓN Y MANTENIMIENTO
KULLANMA, KURULUM VE BAK

ø

M TALIMATLAR

ø

INSTRUCTIONS FOR USE, INSTALLATION AND MAINTENANCE
INSTRUCTIONS D'UTILISATION, D'INSTALLATION ET D'ENTRETIEN

ȅǻǾīǴǼȈ ȋȇdzȈǾȈ

,

ǼīȀǹȉDZȈȉǹȈǾȈ Ȁǹǿ ȈȊȃȉdzȇǾȈǾȈ

AANWIJZINGEN VOOR GEBRUIK, INSTALLATIE EN ONDERHOUD

ɊɍɄɈȼɈȾɋɌȼɈ ɉɈ ɗɄɋɉɅɍȺɌȺɐɂɂ

,

ɆɈɇɌȺɀɍ ɂ ɌȿɏɈȻɋɅɍɀɂȼȺɇɂɘ

6

"Загрузка инструкции" означает, что нужно подождать пока файл загрузится и можно будет его читать онлайн. Некоторые инструкции очень большие и время их появления зависит от вашей скорости интернета.

Характеристики

Другие модели - Котлы Ferroli

Все котлы Ferroli