Страница 2 - Декларация
27 ENGLISH Р УССКИЙ ESKY SLO VENSKY MA GYAR 1. Указания по эксплуатации ......................................................................... 28 2. Установка ................................................................................................... 33 3. Эксплуатация и техническое обслу...
Страница 3 - УССКИЙ; Указания; Предисловие
28 ENGLISH Р УССКИЙ ESKY SLO VENSKY MA GY AR 1. Указания по эксплуатации 1.1 Предисловие Уважаемый покупатель ! Благодарим Вас за то , что Вы выбрали DOMIcompact C 24, настенный котел производства фирмы FERROLI, имеющий самую современную конструкцию , выполненный по передовым технологиям и отличающи...
Страница 4 - Панель
29 ENGLISH Р УССКИЙ ESKY SLO VENSKY MA GYAR 1.2 Панель управления На панели управления размещены многофункциональная кнопка , две ручки и 3 светодиода . 1 Ручка регулировки температуры в системе отопления и переключения режимов “ Лето ”/” Зима ”/ Выключение 2 Ручка регулировки температуры в системе ...
Страница 5 - Включение
30 ENGLISH Р УССКИЙ ESKY SLO VENSKY MA GY AR 1.3 Включение и выключение Включение • Откройте газовый вентиль , установленный перед котлом . • Спустите воздух из трубы , находящейся перед газовым клапаном . • Включите рубильник , подающий напряжение или введите вилку в соответствующую розетку , устан...
Страница 7 - Техническое; Регулировка
32 ENGLISH Р УССКИЙ ESKY SLO VENSKY MA GY AR 1.5 Техническое обслуживание В соответствии с указом Президента республики № 412 1993 г . пользователь обязан не реже , чем один раз в год производить техобслуживание котла и не реже , чем один раз в два года - проверку режима сгорания , поручая их выполн...
Страница 8 - УСТАНОВКА; Общие
33 ENGLISH Р УССКИЙ ESKY SLO VENSKY MA GYAR 2. УСТАНОВКА 2.1 Общие указания Настоящий агрегат допускается использовать только по тому назначению , для которого он спроектирован и изготовлен . Настоящий агрегат предназначен для нагревания воды до температуры ниже температуры кипения при атмосферном д...
Страница 9 - Подвеска
34 ENGLISH Р УССКИЙ ESKY SLO VENSKY MA GY AR Подвеска на стену Котел поставляется с кронштейном для подвески на стену . По специальному заказу может быть поставлен металлический шаблон , служащий исключительно для наметки на стене точек подвески и подключения котла , который в дальнейшем может быть ...
Страница 10 - Гидравлические
35 ENGLISH Р УССКИЙ ESKY SLO VENSKY MA GYAR 1 2 3 4 5 2.3 Гидравлические соединения Расчет требуемой тепловой мощности котла производится предварительно , исходя из потребности здания в тепле , рассчитываемой по действующим нормам . Для обеспечения хорошего функционирования и продолжительного срока ...
Страница 12 - Газовые
37 ENGLISH Р УССКИЙ ESKY SLO VENSKY MA GYAR Система защиты от замерзания , жидкие антифризы , добавки и ингибиторы . Котел оборудован устройством защиты от замерзания , который автоматически включает котел в режим отопления при падении температуры воды , подаваемой в систему отопления , ниже 6 °C. К...
Страница 13 - Термостат; Подключение
38 ENGLISH Р УССКИЙ ESKY SLO VENSKY MA GY AR Термостат помещения ВНИМАНИЕ : ТЕРМОСТАТ ПОМЕЩЕНИЯ ДОЛЖЕН ИМЕТЬ СУХИЕ КОНТАКТЫ . ПОДКЛЮЧЕНИЕ НАПРЯЖЕНИЯ 230 В К КЛЕММАМ ТЕРМОСТАТА ПОМЕЩЕНИЯ ВЫЗЫВАЕТ НЕПОПРАВИМОЕ ПОВРЕЖДЕНИЕ ЭЛЕКТРОННОЙ ПЛАТЫ . При подключении термостата с ежедневной или еженедельной про...
Страница 14 - ЭКСПЛУАТАЦИЯ; Регулировки
39 ENGLISH Р УССКИЙ ESKY SLO VENSKY MA GYAR 3. ЭКСПЛУАТАЦИЯ И ТЕХНИЧЕСКОЕ ОБСЛУЖИВАНИЕ 3.1 Регулировки Все операции регулировки и переоборудования должны выполняться исключительно специалистами с высокой квалификацией , таких как сотрудники нашего Управления по сбыту и обслуживающего Вашу территорию...
Страница 16 - Ввод
41 ENGLISH Р УССКИЙ ESKY SLO VENSKY MA GYAR Регулировка максимальной мощности отопления Для регулировки мощности отопления установите котел в режим TEST ( см . пар . 3.1). Поверните ручку регулировки температуры в системе отопления ( поз . 1 - рис . 1) по часовой стрелке для увеличения мощности , ил...
Страница 19 - Чистка
44 ENGLISH Р УССКИЙ ESKY SLO VENSKY MA GY AR Чистка котла и горелки Корпус котла и горелку нельзя чистить с помощью химических средств или стальных щеток . После проведения всех операций проверьте выполнение всех этапов розжига , а также работу термостатов , газового клапана и циркуляционного насоса...
Страница 20 - Устранение; Диагностика
45 ENGLISH Р УССКИЙ ESKY SLO VENSKY MA GYAR 3.4 Устранение неисправностей Диагностика Котел оснащен передовой системой автодиагностики . В случае возникновения неисправности в котле зажигаются три светодиода , показывая код неисправности . Некоторые неисправности приводят к постоянной блокировке кот...
Страница 21 - ХАРАКТЕРИСТИКИ; Габаритные
46 ENGLISH Р УССКИЙ ESKY SLO VENSKY MA GY AR 1 2 3 4 5 4. ХАРАКТЕРИСТИКИ И ТЕХНИЧЕСКИЕ ДАННЫЕ 4.1 Габаритные размеры и подсоединения котла рис . 10 1 Подача воды в систему отопления диам . 3/4” 2 Выход воды для ГВС диам . 1/2” 3 Подача газа 1/2” 4 Вход холодной воды для ГВС диам . 1/2” 5 Обратная ли...
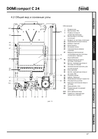
Страница 22 - Общий
47 ENGLISH Р УССКИЙ ESKY SLO VENSKY MA GYAR 4.2 Общий вид и основные узлы рис . 11 126 78 34 27 26 20 21 47 56 19 36 32 74 10 14 8 7 44 11 9 38 114 42 49 81 Обозначения 7 Подвод газа 8 Выход воды ГВС 9 Подвод холодной хозяйственной воды 10 Выход воды в систему отопления 11 Возврат из системы отоплен...
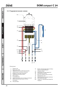
Страница 23 - Гидравлическая
48 ENGLISH Р УССКИЙ ESKY SLO VENSKY MA GY AR 4.3 Гидравлическая схема рис . 12 Обозначения 7 Подвод газа 8 Выход воды ГВС 9 Подвод холодной хозяйственной воды 10 Подача воды в систему отопления 11 Возврат из системы отопления 14 Предохранительный клапан 20 Блок горелок 27 Теплообменник 32 Циркуляцио...
Страница 24 - Таблица
49 ENGLISH Р УССКИЙ ESKY SLO VENSKY MA GYAR 4.4 Таблица технических данных P P Теплопроизводительность ( Низшая теплота сгорания - Hi) кВт 25,8 11,5 Полезная тепловая мощность 80 °C - 60 °C кВт 23,8 9,7 Тепловая мощность системы горячего водоснабжения кВт 23,8 9,7 P P Основные форсунки для метана (G...
Страница 25 - Диаграммы
50 ENGLISH Р УССКИЙ ESKY SLO VENSKY MA GY AR 4.5 Диаграммы Диаграммы давление - мощность Потери напора циркуляционных насосов рис . 13 рис . 14 0 1 2 3 4 5 6 7 0 500 1.000 1.500 2.000 Q [l/h] H [m H 2 O] A 3 2 1 = Частота вращения циркуляционного насоса 3 2 1 A = Потери напора в котле мб ар kW G31 С...
Страница 26 - Электрическая
51 ENGLISH Р УССКИЙ ESKY SLO VENSKY MA GYAR 34 49 MF08F TRASFORMA TORE 42 114 72 44 32 230V 50Hz X5 X3 X7 X6 X4 1 2 1 2 3 1 2 3 4 1234567 123456789 10 11 FUSIBILE FUSIBILE X1 N L 81 47 38 F 3.15A F 3.15A 139 126 4.6 Электрическая схема рис . 15 Пере д по дк лю чением термост ат а темпера ту ры в пом...