Ferroli Domicompact C30 - инструкции и руководства
Котел Ferroli Domicompact C30 - инструкции пользователя по применению, эксплуатации и установке на русском языке читайте онлайн в формате pdf
Инструкции:
Инструкция по эксплуатации Ferroli Domicompact C30
1
2
3
4
5
6
7
8
9
10
11
12
13
14
15
16
17
18
19
20
21
22
23
24
25
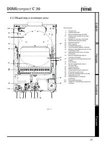
26
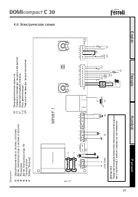
27
28
Ferroli Котлы Инструкции
-
Ferroli Atlas 32
Инструкция по эксплуатации
-
Ferroli Atlas 32 95
Инструкция по эксплуатации
-
Ferroli Atlas 47
Инструкция по эксплуатации
-
Ferroli Atlas 62
Инструкция по эксплуатации
-
Ferroli Atlas 78
Инструкция по эксплуатации
-
Ferroli Atlas 95
Инструкция по эксплуатации
-
Ferroli Atlas D
Инструкция по эксплуатации
-
Ferroli Atlas D 30 KI 100
Инструкция по эксплуатации
-
Ferroli Atlas D 30 KI 130
Инструкция по эксплуатации
-
Ferroli Atlas D 30F KI UNIT
Инструкция по эксплуатации
-
Ferroli Atlas D 42 KI 100
Инструкция по эксплуатации
-
Ferroli Atlas D 42 KI 130
Инструкция по эксплуатации
-
Ferroli ATLAS D K100
Инструкция по эксплуатации
-
Ferroli Atlas D KI 100 UNIT
Инструкция по эксплуатации
-
Ferroli Atlas D UNIT
Инструкция по эксплуатации
-
Ferroli Divatop C24
Инструкция по эксплуатации
-
Ferroli Divatop C32
Инструкция по эксплуатации
-
Ferroli Domicompact B F24
Инструкция по эксплуатации
-
Ferroli Domicompact C24
Инструкция по эксплуатации
-
Ferroli Domicompact F30
Инструкция по эксплуатации