Страница 2 - Директива о газе; УКАЗАТЕЛЬ; Оборудование может использоваться детьми не младше 8 лет, людьми
7225066.01 (1-08/15) 2 По льз ов атель; У становщик (ru) Уважаемый пользователь, Мы убеждены, что приобретенное Вами изделие будет соответствовать всем Вашим требованиям. Наши изделия разработаны таким образом, чтобы обеспечить хорошую работу, простоту и легкость эксплуатации. Сохраните это руководс...
Страница 3 - ОПИСАНИЕ СИМВОЛОВ; использовать Ваше изделие.; МЕРЫ БЕЗОПАСНОСТИ; БАКСИ
3 Польз ователь; У становщик (ru) 7225066.01 (1-08/15) ОПИСАНИЕ СИМВОЛОВ ПРЕДУПРЕЖДЕНИЕ Риск повреждения или неисправности при работе оборудования. Соблюдать повышенную осторожность и выполнять предупреждения о возможном риске для людей. ОПАСНОСТЬ ОЖОГОВ Подождать пока оборудование остынет, перед те...
Страница 4 - ОБЩИЕ ПРЕДУПРЕЖДЕНИЯ; Контур отопления; РЕКОМЕНДАЦИИ ПО ЭКОНОМИИ ЭНЕРГИИ; Управление системой отопления
7225066.01 (1-08/15) 4 По льз ов атель; У становщик (ru) ОБЩИЕ ПРЕДУПРЕЖДЕНИЯ Котел предназначен для нагрева воды не выше температуры кипения при атмосферном давлении. Он подключается к системе отопления и к системе приготовления горячей воды в соответствии с его характеристиками и мощностью. Котел ...
Страница 5 - здел ПО; ВВОД КОТЛА В ЭКСПЛУАТАЦИЮ; РЕГУЛИРОВКА ТЕМПЕРАТУРЫ ПОДАЧИ ОТОПЛЕНИЯ И ГОРЯЧЕЙ ВОДЫ
5 Р а здел ПО ЛЬЗ ОВА ТЕЛЬ (ru) 7225066.01 (1-08/15) 1. ВВОД КОТЛА В ЭКСПЛУАТАЦИЮ Действовать, как указано далее, для правильного включения котла: • Убедитесь, что имеется требуемое давление в системе (глава 6); • Подать электропитание к котлу. • Откройте газовый клапан (желтый, расположенный под ко...
Страница 6 - ВЫКЛЮЧЕНИЕ НА ДЛИТЕЛЬНЫЙ ПЕРИОД. ЗАЩИТА ОТ ЗАМЕРЗАНИЯ; ПЕРЕВОД КОТЛА НА ДРУГОЙ ТИП ГАЗА; Описание неисправности
7225066.01 (1-08/15) 6 Р а здел ПО ЛЬ З ОВ А ТЕЛЬ (ru) 2. ВЫКЛЮЧЕНИЕ НА ДЛИТЕЛЬНЫЙ ПЕРИОД. ЗАЩИТА ОТ ЗАМЕРЗАНИЯ Желательно избегать того, чтобы система отопления была полностью пустой, поскольку смена воды могут вызвать ненужный вредный осадок и накипь внутри котла и нагревающихся частях. Если в зим...
Страница 7 - МЕНЮ ИНФОРМАЦИИ О КОТЛЕ; Описание; НАПОЛНЕНИЕ СИСТЕМЫ; ИНСТРУКЦИИ ПО ПЛАНОВОМУ ТЕХОБСЛУЖИВАНИЮ
7 Р а здел ПО ЛЬЗ ОВА ТЕЛЬ (ru) 7225066.01 (1-08/15) 5. МЕНЮ ИНФОРМАЦИИ О КОТЛЕ Нажмите кнопку , чтобы увидеть информацию, отраженную в следующей таблице. Для выхода нажмите на кнопку . Описание Описание 00 Внутренний код вторичной неполадки 12 Наработка горелки в часах 01 Температура подачи отоплен...
Страница 8 - здел УС; ПРЕДУПРЕЖДЕНИЯ ПЕРЕД МОНТАЖОМ; “SECTION” E; “SECTION”
7225066.01 (1-08/15) 8 Р а здел УС Т АНОВЩИК (ru) ПРЕДУПРЕЖДЕНИЯ ПЕРЕД МОНТАЖОМ Следующие технические примечания и инструкции предназначены для монтажников, чтобы дать им возможность идеально провести установку. Инструкции по включению и эксплуатации котла находятся в части, предназначенной для поль...
Страница 9 - МОНТАЖ ДЫМОХОДА И ВОЗДУХОВОДА; ПРЕДУПРЕЖДЕНИЯ; ТАБЛИЦА 1A; КОАКСИАЛЬНЫЕ ДЫМОХОДЫ; 0° отвод сокращает возможную полную длину трубы на 1 метр.; РАЗДЕЛЬНЫЕ ДЫМОХОДЫ; 0° отвод сокращает возможную полную длину трубы на 0,5 метра.
9 Р а здел УС Т АНОВЩИК (ru) 7225066.01 (1-08/15) 10. МОНТАЖ ДЫМОХОДА И ВОЗДУХОВОДА Установка котла может быть легкой и простой, благодаря поставляемым аксессуарам, описанным ниже. Изначально котел предназначен для подключения к вертикальному или горизонтальному коаксиальному дымоходу. Котел можно т...
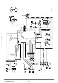
Страница 10 - КАСКАДНЫЙ ТИП СОЕДИНЕНИЯ ДЫМОХОДОВ; ТАБЛИЦА 1B; ЭЛЕКТРИЧЕСКИЕ СОЕДИНЕНИЯ; “SECTION” B; КЛЕММНАЯ КОЛОДКА M1; Фаза; КЛЕММНИК M2
7225066.01 (1-08/15) 10 Р а здел УС Т АНОВЩИК (ru) 10.3 КАСКАДНЫЙ ТИП СОЕДИНЕНИЯ ДЫМОХОДОВ Этот тип соединений позволяет отводить продукты сгорания от нескольких котлов, подключенных “в каскад” через общий газовый коллектор. Коллектор должен использоваться только для подключения котлов к дымоходу. В...
Страница 11 - КЛЕММНАЯ КОЛОДКА M3; ПОДКЛЮЧЕНИЕ КОМНАТНОГО ТЕРМОСТАТА
11 Р а здел УС Т АНОВЩИК (ru) 7225066.01 (1-08/15) КЛЕММНАЯ КОЛОДКА M3 Клеммы 1 - 3: Неиспользуемые . Клеммы 4 - 5: Подключение насоса бойлера горячей воды. Клеммы 6 - 7: подключение насоса системы отопления (снаружи внизу гидравлического разделителя). Если котел подключен к системе тёплых полов, мо...
Страница 13 - ВНЕШНИЕ МОДУЛИ УПРАВЛЕНИЯ СИСТЕМОЙ
13 Р а здел УС Т АНОВЩИК (ru) 7225066.01 (1-08/15) МНОГОЗОНАЛЬНЫЕ СИСТЕМЫ С РЕГУЛИРОВКОЙ С ПОМОЩЬЮ ПУЛЬТА ДИСТАНЦИОННОГО УПРАВЛЕНИЯ Электрические соединения и регулировка, необходимая для управления системой, разделенной на зоны, являются различными в зависимости от элементов, подключенных к котлу. ...
Страница 14 - ФУНКЦИЯ УДАЛЕНИЯ ВОЗДУХА ИЗ СИСТЕМЫ ОТОПЛЕНИЯ; ФУНКЦИЯ КАЛИБРОВКИ ГАЗОВОГО КЛАПАНА; On; ФУНКЦ ОЧИСТКИ ДЫМОХОДА; НЕИСПРАВНОСТИ, КОТОРЫЕ НЕ МОГУТ БЫТЬ УСТРАНЕНЫ; НЕИСПРАВНОСТИ; НАСТРОЙКА ПАРАМЕТРОВ; On
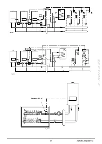
7225066.01 (1-08/15) 14 Р а здел УС Т АНОВЩИК (ru) 11.2.7 СОЛНЕЧНАЯ СИСТЕМА (“SECTION” F) С помощью внешнего модуля AGU 2.550 , входящего в комплект поставки, вы можете управлять солнечной системой. Для подключения системы, ознакомьтесь с инструкциями, прилагаемым к устройству. ГИДРАВЛИЧЕСКИЕ СХЕМЫ ...
Страница 16 - КАЛИБРОВКА ГАЗОВОГО КЛАПАНА; ) Настройка МАКСИМАЛЬНОЙ мощности; ) Настройка МИНИМАЛЬНОЙ мощности
7225066.01 (1-08/15) 16 Р а здел УС Т АНОВЩИК (ru) P51 6097 Тип датчика на коллекторе (1= NTC, 2= Pt 1000) - 2 1 2 P52 6110 Постоянная времени здания (зависит от степени теплоизоляции здания) часов 15 0 50 P53 6220 Версия программного обеспечения - --- 0 99 P54 6600 Адрес устройства LPB (связь через...
Страница 17 - ТАБЛИЦА 2; УСТРОЙСТВА ДЛЯ РЕГУЛИРОВАНИЯ И БЕЗОПАСНОСТИ
17 Р а здел УС Т АНОВЩИК (ru) 7225066.01 (1-08/15) ТАБЛИЦА 2 ПАРАМЕТРЫ - кол-во оборотов/мин (об./мин) УСТРОЙСТВО ВЕНТУРИ Ø (мм) ГАЗОВЫЕ ФОРСУНКИ Ø (мм) CO 2 мин (%) CO 2 макс (%) CO макс (ppm) P60 ** P30 – P61 ** P59 ** Модель котла Мин. мощность Макс. мощность Мощность включения G20 G31 G20 G31 G2...
Страница 18 - Устройство защиты от замерзания; ЕЖЕГОДНОЕ ТЕХНИЧЕСКОЕ ОБСЛУЖИВАНИЕ
7225066.01 (1-08/15) 18 Р а здел УС Т АНОВЩИК (ru) • Устройство защиты от замерзания Электронная система управления котла имеет функцию защиты «от замерзания» в контуре отопления и ГВС, которая при температуре воды на подаче ниже 5°С включает горелку до достижения на подаче температуры, равной 30°С....
Страница 19 - ЧИСТКА СИФОНА СЛИВА КОНДЕНСАТА; ЧИСТКА ТЕПЛООБМЕННИКА СО СТОРОНЫ ОТХОДЯЩИХ ГАЗОВ
19 Р а здел УС Т АНОВЩИК (ru) 7225066.01 (1-08/15) 18.1 ЧИСТКА СИФОНА СЛИВА КОНДЕНСАТА Для слива воды из сифона и его очистки не рекомендуется использовать крышку, расположенную на дне. Выньте сифон из котла и промойте его струей воды. Заполните сифон чистой водой и установите его на место, обеспечи...
Страница 20 - ПРОВЕРКА ГОРЕЛКИ; РАСПОЛОЖЕНИЕ ЭЛЕКТРОДОВ; ПАРАМЕТРЫ ПРОДУКТОВ СГОРАНИЯ
7225066.01 (1-08/15) 20 Р а здел УС Т АНОВЩИК (ru) 18.3 ПРОВЕРКА ГОРЕЛКИ Горелка не нуждается в чистке. • Проверьте горелку на наличие повреждений. При необходимости замените ее. • Проверьте положение датчика пламени. • Проверьте, что расстояние электрода розжига соответствует допускам, указанным на...
Страница 21 - ТЕХНИЧЕСКИЕ ХАРАКТЕРИСТИКИ; II
21 Р а здел УС Т АНОВЩИК (ru) 7225066.01 (1-08/15) 19. ТЕХНИЧЕСКИЕ ХАРАКТЕРИСТИКИ Модель: LUNA DUO-TEC MP 1.35 1.50 1.60 1.70 Категория II 2H3P Тип газа - G20 - G31 Макс. потребляемая тепловая мощность кВт 34,8 46,3 56,6 66,9 Мин. потребляемая тепловая мощность кВт 5,1 5,1 6,3 7,4 Макс. полезная теп...
Страница 32 - ИЗМЕНЕННЫЕ ПАРАМЕТРЫ; ЗНАЧЕНИЕ
7225066.01 (1-08/15) ИЗМЕНЕННЫЕ ПАРАМЕТРЫ № ЗНАЧЕНИЕ ПРИМЕЧАНИЕ 36061 Bassano del Grappa (VI) - ITALIAVia Trozzetti, 20Servizio clienti: tel. 0424-517800 – Telefax 0424-38089 www.baxi.it