Страница 3 - СОДЕРЖАНИЕ
66 7221797.03 - ru РУКОВОДСТВО ДЛЯ ПОЛЬЗОВАТЕЛЯ 1. Подготовка к установке…………………………………………………………………………………. 67 2. Подготовка к первому пуску…………………………………………………………………………….. 67 3. Пуск котла………………………………………………………………………………………………….. 68 4. Регулирование комнатной температуры и температуры горячей санитарной...
Страница 4 - ПОДГОТОВКА К УСТАНОВКЕ
67 7221797.03 - ru РУКОВОДСТВО ДЛЯ ПОЛЬЗОВАТЕЛЯ Котел предназначен для нагрева воды не выше температуры кипения при атмосферном давлении. Он подключается к системе отопления и к системе приготовления горячей воды в соответствии с его характеристиками и мощностью. Котел должен устанавливаться квалифи...
Страница 5 - Внимание
68 7221797.03 - ru РУКОВОДСТВО ДЛЯ ПОЛЬЗОВАТЕЛЯ Гарантийные обязательства, выполняются организацией, осуществившей первый пуск котла. Данная организация должна иметь установленные законом лицензии. Начало гарантийного срока наступает с момента первого пуска. Для осуществления первого пуска и последу...
Страница 6 - ОПИСАНИЕ КНОПКИ (Лето – Зима – Только Отопление – Выключено)
69 7221797.03 - ru РУКОВОДСТВО ДЛЯ ПОЛЬЗОВАТЕЛЯ 4. РЕГУЛИРОВАНИЕ КОМНАТНОЙ ТЕМПЕРАТУРЫ И ТЕМПЕРАТУРЫ ГОРЯЧЕЙ САНИТАРНОЙ ВОДЫ Нажимая данную кнопку, можно установить следующие режимы работы котла: • ЛЕТО • ЗИМА • ТОЛЬКО ОТОПЛЕНИЕ • ВЫКЛЮЧЕНО При работе котла в режиме ЛЕТО на дисплее появляется символ...
Страница 7 - ВЫКЛЮЧЕНИЕ КОТЛА; ВНИМАНИЕ; ЗАПОЛНЕНИЕ СИСТЕМЫ
70 7221797.03 - ru РУКОВОДСТВО ДЛЯ ПОЛЬЗОВАТЕЛЯ Для выключения котла необходимо отключить электропитание прибора. Когда переключатель режимов находится в положении «ВЫКЛЮЧЕНО» (см. параграф 5) котел не работает (на дисплее появляется надпись OFF), но электрический контур котла остается под напряжени...
Страница 8 - СИСТЕМА БЕЗОПАСНОСТИ: ИНДИКАТОРЫ И СРАБАТЫВАНИЕ; Неисправность
71 7221797.03 - ru РУКОВОДСТВО ДЛЯ ПОЛЬЗОВАТЕЛЯ 10. СИСТЕМА БЕЗОПАСНОСТИ: ИНДИКАТОРЫ И СРАБАТЫВАНИЕ Рекомендуется избегать частых сливов воды из системы отопления, т.к. частая замена воды приводит к ненужным и вредным отложениям накипи внутри котла и теплообменников. Если котел не используется в зим...
Страница 9 - ДОПОПЛНИТЕЛЬНЫЙ НАСОС; ПРОВЕРКИ ПЕРЕД УСТАНОВКОЙ КОТЛА
72 7221797.03 - ru РУКОВОДСТВО ДЛЯ ТЕХНИЧЕСКОГО ПЕРСОНАЛА Котел предназначен для нагрева воды не выше температуры кипения при атмосферном давлении. Он подключается к системе отопления и к системе приготовления горячей воды в соответствии с его характеристиками и мощностью. До установки котла необход...
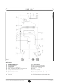
Страница 11 - ГАБАРИТНЫЕ РАЗМЕРЫ КОТЛА
74 7221797.03 - ru РУКОВОДСТВО ДЛЯ ТЕХНИЧЕСКОГО ПЕРСОНАЛА 15. ГАБАРИТНЫЕ РАЗМЕРЫ КОТЛА G”3/4 подача воды в систему отопления G”3/4 возврат воды из системы отопления G”1/2 выход горячей бытовой воды G”1/2 вход холодной воды от системы водоснабжения G”3/4 подача газа Рис.5 24 - 1.24 - 1.14 24 F - 1.24...
Страница 12 - УСТАНОВКА ДЫМОХОДА И ВОЗДУХОВОДА; Модель котла
75 7221797.03 - ru РУКОВОДСТВО ДЛЯ ТЕХНИЧЕСКОГО ПЕРСОНАЛА 16. УСТАНОВКА ДЫМОХОДА И ВОЗДУХОВОДА модели 24 F – 1.24 F - 1.14 F Ниже описываются поставляемые в качестве аксессуаров трубы и крепления для котлов с закрытой камерой сгорания и принудительной вытяжкой. Котел специально спроектирован для при...
Страница 13 - ВАРИАНТЫ ГОРИЗОНТАЛЬНОЙ УСТАНОВКИ НАКОНЕЧНИКА ДЫМОХОДА
76 7221797.03 - ru РУКОВОДСТВО ДЛЯ ТЕХНИЧЕСКОГО ПЕРСОНАЛА 16.1 ВАРИАНТЫ ГОРИЗОНТАЛЬНОЙ УСТАНОВКИ НАКОНЕЧНИКА ДЫМОХОДА 16.2 ВАРИАНТЫ УСТАНОВКИ ПРИ ПРИСОЕДИНЕНИИ К ОБЩЕМУ ДЫМОХОДУ (LAS - СИСТЕМА) 16.3 ВАРИАНТЫ ВЕРТИКАЛЬНОЙ УСТАНОВКИ НАКОНЕЧНИКА ДЫМОХОДА Такая установка может быть выполнена как на плос...
Страница 16 - ПОДКЛЮЧЕНИЕ К ЭЛЕКТРОПИТАНИЮ
79 7221797.03 - ru РУКОВОДСТВО ДЛЯ ТЕХНИЧЕСКОГО ПЕРСОНАЛА Обратите внимание! При установке дымохода убедитесь, что труба хорошо изолирована (напр., стекловолокном) в месте прохода трубы сквозь стену здания. Подробные инструкции об установке труб смотри в руководствах, прилагаемых к комплектам. 17. П...
Страница 17 - ПОДСОЕДИНЕНИЕ КОМНАТНОГО ТЕРМОСТАТА
80 7221797.03 - ru РУКОВОДСТВО ДЛЯ ТЕХНИЧЕСКОГО ПЕРСОНАЛА Чтобы закрыть крышку панели, надавите на пластиковые защёлки при помощи отвёртки, как показано на рисунке. CG_2260 / 1006_1501 18. ПОДСОЕДИНЕНИЕ КОМНАТНОГО ТЕРМОСТАТА • открыть доступ к клеммам подключения электропитания (рис.9), в соответств...
Страница 18 - ПОРЯДОК ПЕРЕВОДА КОТЛА НА ДРУГОЙ ТИП ГАЗА И НАСТРОЙКИ ДАВЛЕНИЯ; ПРОВЕРКА ВХОДНОГО ДИНАМИЧЕСКОГО ДАВЛЕНИЯ ГАЗА; ПЕРЕВОД КОТЛА НА ДРУГОЙ ТИП ГАЗА; КЛАПАН SIT - SIGMA 845
81 7221797.03 - ru РУКОВОДСТВО ДЛЯ ТЕХНИЧЕСКОГО ПЕРСОНАЛА 19. ПОРЯДОК ПЕРЕВОДА КОТЛА НА ДРУГОЙ ТИП ГАЗА И НАСТРОЙКИ ДАВЛЕНИЯ • Открутить винт на штуцере (Pb, рис. 10) и присоединить к штуцеру (Pb) манометр. • Открыть газовый кран и установить переключатель режимов (Рис.2) в положение Зима и подождат...
Страница 19 - ВЫВОД ИНФОРМАЦИИ НА ДИСПЛЕЙ КОТЛА
82 7221797.03 - ru РУКОВОДСТВО ДЛЯ ТЕХНИЧЕСКОГО ПЕРСОНАЛА 20. ВЫВОД ИНФОРМАЦИИ НА ДИСПЛЕЙ КОТЛА Для вывода информации о работе котла на дисплей, расположенный на передней панели котла, нажимать не менее 5 сек кнопку «i». ВНИМАНИЕ: когда активна функция «INFO» на дисплее (рис.11) появляется н а д п и...
Страница 20 - УСТАНОВКА ПАРАМЕТРОВ
83 7221797.03 - ru РУКОВОДСТВО ДЛЯ ТЕХНИЧЕСКОГО ПЕРСОНАЛА 21. УСТАНОВКА ПАРАМЕТРОВ Для установки параметров котла нажимать одновременно не менее 6 сек кнопку ( – ) и кнопку ( – ). Когда функция активна, на дисплее появится надпись “F01” которое сменяется значением выбранного параметра. Изменение пар...
Страница 21 - УСТРОЙСТВА РЕГУЛИРОВАНИЯ И ПРЕДОХРАНИТЕЛЬНЫЕ УСТРОЙСТВА
84 7221797.03 - ru РУКОВОДСТВО ДЛЯ ТЕХНИЧЕСКОГО ПЕРСОНАЛА Котел спроектирован в полном соответствии с европейскими нормами и содержит следующие устройства: • Датчик тяги (пневмореле) (в моделях 24 F - 1.24 F - 1.14 F) Данное устройство обеспечивает включение основной горелки при условии исправной ра...
Страница 22 - КОНТРОЛЬ ОТХОДЯЩИХ ГАЗОВ; На
85 7221797.03 - ru РУКОВОДСТВО ДЛЯ ТЕХНИЧЕСКОГО ПЕРСОНАЛА 23. РАСПОЛОЖЕНИЕ ЭЛЕКТРОДА ЗАЖИГАНИЯ И ЭЛЕКТРОДА-ДАТЧИКА ПЛАМЕНИ Рис.12 9912070100 При необходимости контроля отходящих газов котлы с принудительной тягой имеют две точки замера, расположенных на коаксиальной входной муфте. Одна из них находи...
Страница 23 - ПРИСОЕДИНЕНИЕ ДАТЧИКА УЛИЧНОЙ ТЕМПЕРАТУРЫ
86 7221797.03 - ru РУКОВОДСТВО ДЛЯ ТЕХНИЧЕСКОГО ПЕРСОНАЛА 26. ПРИСОЕДИНЕНИЕ ДАТЧИКА УЛИЧНОЙ ТЕМПЕРАТУРЫ 27. ПРИСОЕДИНЕНИЕ ВНЕШНЕГО БОЙЛЕРА (для моделей 1.24 F – 1.24 – 1.14 F – 1.14) Датчик NTC контура ГВС и мотор трехходового клапана не входят в комплект поставки аппарата и поставляются отдельно. П...
Страница 24 - ЕЖЕГОДНОЕ ТЕХНИЧЕСКОЕ ОБСЛУЖИВАНИЕ
87 7221797.03 - ru РУКОВОДСТВО ДЛЯ ТЕХНИЧЕСКОГО ПЕРСОНАЛА Для правильной и надежной работы котла необходимо ежегодно проверять: • внешний вид и непроницаемость прокладок газового контура и камеры сгорания; • состояние и правильное положение электрода зажигания и электрода-датчика пламени; • состояни...
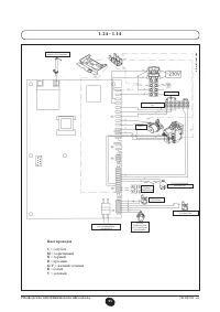
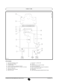
Страница 25 - ФУНКЦИОНАЛЬНЫЕ СХЕМЫ
88 7221797.03 - ru РУКОВОДСТВО ДЛЯ ТЕХНИЧЕСКОГО ПЕРСОНАЛА 32. ФУНКЦИОНАЛЬНЫЕ СХЕМЫ 24 F Обозначения: устройство Вентури точка положительного давления точка отрицательного давления пневмореле – датчик тяги горелка расширительный бак насос с автоматическим воздухоотводчиком кран слива воды из котла ма...
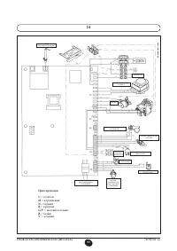
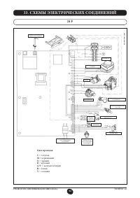
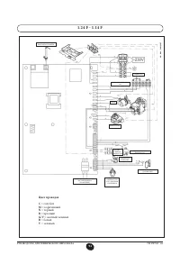
Страница 29 - СХЕМЫ ЭЛЕКТРИЧЕСКИХ СОЕДИНЕНИЙ; Цвет проводов
92 7221797.03 - ru РУКОВОДСТВО ДЛЯ ТЕХНИЧЕСКОГО ПЕРСОНАЛА 33. СХЕМЫ ЭЛЕКТРИЧЕСКИХ СОЕДИНЕНИЙ 24 F Цвет проводов C = голубой М = коричневый N = черный R = красный G/V = желтый/зеленый B = белый V = зеленый ЭЛЕКТРОД ЗАЖИГАНИЯ/ КОНТРОЛЯ ПЛАМЕНИ ТЕРМОСТАТ ТРЕХХОДОВЫЙ КЛАПАН НАСОС ВЕНТИЛЯТОР ДАТЧИК ПРИОР...
Страница 33 - ТЕХНИЧЕСКИЕ ДАННЫЕ
34. ТЕХНИЧЕСКИЕ ДАННЫЕ Модель ECOFOUR 24 F 1.24 F 1.14 F 24 1.24 1.14 Категория II 2H3P II 2H3P II 2H3P II 2H3P II 2H3P II 2H3P Максимальная потребляемая тепловая мощность кВт 25,8 25,8 15,1 26,3 26,3 15,4 Минимальная потребляемая тепловая мощность кВт 10,6 10,6 7,1 10,6 10,6 7,1 Максимальная полезн...