Baxi CSE46124354 - Инструкция по эксплуатации

Baxi CSE46124354

Котел Baxi CSE46124354 - инструкция пользователя по применению, эксплуатации и установке на русском языке. Мы надеемся, она поможет вам решить возникшие у вас вопросы при эксплуатации техники.

Если остались дополнительные вопросы — свяжитесь с нами через контактную форму.

1 Страница 1
2 Страница 2
3 Страница 3
4 Страница 4
5 Страница 5
6 Страница 6
7 Страница 7
8 Страница 8
9 Страница 9
10 Страница 10
11 Страница 11
12 Страница 12
13 Страница 13
14 Страница 14
15 Страница 15
16 Страница 16
17 Страница 17
18 Страница 18
19 Страница 19
20 Страница 20
21 Страница 21
22 Страница 22
23 Страница 23
24 Страница 24
25 Страница 25
26 Страница 26
27 Страница 27
28 Страница 28
29 Страница 29
30 Страница 30
31 Страница 31
32 Страница 32
33 Страница 33
Страница: / 33

Содержание:

  • Страница 3 – СОДЕРЖАНИЕ
  • Страница 4 – ПОДГОТОВКА К УСТАНОВКЕ
  • Страница 5 – Внимание
  • Страница 6 – ОПИСАНИЕ КНОПКИ (Лето – Зима – Только Отопление – Выключено)
  • Страница 7 – ВЫКЛЮЧЕНИЕ КОТЛА; ВНИМАНИЕ; ЗАПОЛНЕНИЕ СИСТЕМЫ
  • Страница 8 – СИСТЕМА БЕЗОПАСНОСТИ: ИНДИКАТОРЫ И СРАБАТЫВАНИЕ; Неисправность
  • Страница 9 – ДОПОПЛНИТЕЛЬНЫЙ НАСОС; ПРОВЕРКИ ПЕРЕД УСТАНОВКОЙ КОТЛА
  • Страница 11 – ГАБАРИТНЫЕ РАЗМЕРЫ КОТЛА
  • Страница 12 – УСТАНОВКА ДЫМОХОДА И ВОЗДУХОВОДА; Модель котла
  • Страница 13 – ВАРИАНТЫ ГОРИЗОНТАЛЬНОЙ УСТАНОВКИ НАКОНЕЧНИКА ДЫМОХОДА
  • Страница 16 – ПОДКЛЮЧЕНИЕ К ЭЛЕКТРОПИТАНИЮ
  • Страница 17 – ПОДСОЕДИНЕНИЕ КОМНАТНОГО ТЕРМОСТАТА
  • Страница 18 – ПОРЯДОК ПЕРЕВОДА КОТЛА НА ДРУГОЙ ТИП ГАЗА И НАСТРОЙКИ ДАВЛЕНИЯ; ПРОВЕРКА ВХОДНОГО ДИНАМИЧЕСКОГО ДАВЛЕНИЯ ГАЗА; ПЕРЕВОД КОТЛА НА ДРУГОЙ ТИП ГАЗА; КЛАПАН SIT - SIGMA 845
  • Страница 19 – ВЫВОД ИНФОРМАЦИИ НА ДИСПЛЕЙ КОТЛА
  • Страница 20 – УСТАНОВКА ПАРАМЕТРОВ
  • Страница 21 – УСТРОЙСТВА РЕГУЛИРОВАНИЯ И ПРЕДОХРАНИТЕЛЬНЫЕ УСТРОЙСТВА
  • Страница 22 – КОНТРОЛЬ ОТХОДЯЩИХ ГАЗОВ; На
  • Страница 23 – ПРИСОЕДИНЕНИЕ ДАТЧИКА УЛИЧНОЙ ТЕМПЕРАТУРЫ
  • Страница 24 – ЕЖЕГОДНОЕ ТЕХНИЧЕСКОЕ ОБСЛУЖИВАНИЕ
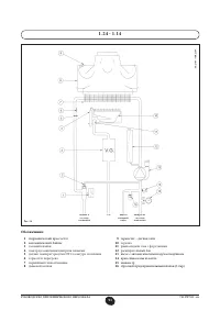
  • Страница 25 – ФУНКЦИОНАЛЬНЫЕ СХЕМЫ
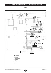
  • Страница 29 – СХЕМЫ ЭЛЕКТРИЧЕСКИХ СОЕДИНЕНИЙ; Цвет проводов
  • Страница 33 – ТЕХНИЧЕСКИЕ ДАННЫЕ
Загрузка инструкции

High performance gas-fired wall-mounted boilers

Operating and installation instructions

en

Caldera mural de gas de alto rendimiento

Manual para el usuario y el instalador

es

Высокопроизводительные настенные газовые котлы

Руководство по установке и эксплуатации (паспорт изделия)

ru

089-14

"Загрузка инструкции" означает, что нужно подождать пока файл загрузится и можно будет его читать онлайн. Некоторые инструкции очень большие и время их появления зависит от вашей скорости интернета.

Краткое содержание

Страница 3 - СОДЕРЖАНИЕ

66 7221797.03 - ru РУКОВОДСТВО ДЛЯ ПОЛЬЗОВАТЕЛЯ 1. Подготовка к установке…………………………………………………………………………………. 67 2. Подготовка к первому пуску…………………………………………………………………………….. 67 3. Пуск котла………………………………………………………………………………………………….. 68 4. Регулирование комнатной температуры и температуры горячей санитарной...

Страница 4 - ПОДГОТОВКА К УСТАНОВКЕ

67 7221797.03 - ru РУКОВОДСТВО ДЛЯ ПОЛЬЗОВАТЕЛЯ Котел предназначен для нагрева воды не выше температуры кипения при атмосферном давлении. Он подключается к системе отопления и к системе приготовления горячей воды в соответствии с его характеристиками и мощностью. Котел должен устанавливаться квалифи...

Страница 5 - Внимание

68 7221797.03 - ru РУКОВОДСТВО ДЛЯ ПОЛЬЗОВАТЕЛЯ Гарантийные обязательства, выполняются организацией, осуществившей первый пуск котла. Данная организация должна иметь установленные законом лицензии. Начало гарантийного срока наступает с момента первого пуска. Для осуществления первого пуска и последу...

Характеристики

Другие модели - Котлы Baxi

Все котлы Baxi