Страница 2 - - Директива о газе
44 7221787.03 - ru РУКОВОДСТВО ДЛЯ ПОЛЬЗОВАТЕЛЯ Компания Бакси ( BAXI S.p.A. ) является одним из европейских лидеров производства отопительных котлов и высокотехнологичных систем отопления. Компания имеет сертификаты международной системы качества и организации производства CSQ в области защиты окру...
Страница 3 - СОДЕРЖАНИЕ
45 7221787.03 - ru РУКОВОДСТВО ДЛЯ ПОЛЬЗОВАТЕЛЯ 1. Подготовка к установке 46 2. Подготовка к первому пуску 46 3. Пуск котла 47 4. Специальные функции 52 5. Заполнение системы 54 6. Выключение котла 54 7. Перевод котла на другой тип газа 54 8. Выключение на длительный период. Защита от замерзания 55 ...
Страница 4 - Контур отопления; ПОДГОТОВКА К УСТАНОВКЕ
46 7221787.03 - ru РУКОВОДСТВО ДЛЯ ПОЛЬЗОВАТЕЛЯ Котел предназначен для нагрева воды не выше температуры кипения при атмосферном давлении. Он подключается к системе отопления и к системе приготовления горячей воды в соответствии с его характеристиками и мощностью.Котел должен устанавливаться квалифиц...
Страница 6 - ЗНАЧЕНИЕ СИМВОЛА; ЛЕТО; ОПИСАНИЕ КНОПКИ (ЛЕТО – ЗИМА – ТОЛЬКО ОТОПЛЕНИЕ – ВЫКЛЮЧЕНО); АВТОМАТИЧЕСКИЙ РЕЖИМ (на дисплее символ )
48 7221787.03 - ru РУКОВОДСТВО ДЛЯ ПОЛЬЗОВАТЕЛЯ 3.1 ЗНАЧЕНИЕ СИМВОЛА Во время работы котла в зависимости от степени модуляции пламени на дисплее панели управления могут быть показаны 4 различных уровня мощности котла (см. рис.2) 0605_1802 Рис.2 Нажимая эту кнопку, можно установить следующие режимы р...
Страница 7 - ПОЧАСОВАЯ ПРОГРАММА РАБОТЫ КОТЛА НА СИСТЕМУ ОТОПЛЕНИЯ
49 7221787.03 - ru РУКОВОДСТВО ДЛЯ ПОЛЬЗОВАТЕЛЯ 3.4 РЕГУЛИРОВАНИЕ КОМНАТНОЙ ТЕМПЕРАТУРЫ И ТЕМПЕРАТУРЫ ГОРЯЧЕЙ САНИТАРНОЙ ВОДЫ Регулирование температуры в помещении ( ) и температуры горячей санитарной воды ( ) осуществляется с помощью кнопок +/- (см. рис.1). Наличие пламени на горелке показано на ди...
Страница 9 - Сводная таблица программируемых групп дней; установленные; с понедельника до пятницы; DAY 6 7; суббота и воскресенье; ПОЧАСОВАЯ ПРОГРАММА РАБОТЫ КОТЛА НА СИСТЕМУ ГВС
51 7221787.03 - ru РУКОВОДСТВО ДЛЯ ПОЛЬЗОВАТЕЛЯ Сводная таблица программируемых групп дней Значения, установленные на заводе Группа “MO-FR” DAY 1 2 3 4 5 с понедельника до пятницы как в таблице параграфа 3.6.1. Группа “SA-SU” DAY 6 7 суббота и воскресенье 07:00 – 23:00 Группа “MO-SA” DAY 1 2 3 4 5 6...
Страница 10 - СПЕЦИАЛЬНЫЕ ФУНКЦИИ
52 7221787.03 - ru РУКОВОДСТВО ДЛЯ ПОЛЬЗОВАТЕЛЯ 4. СПЕЦИАЛЬНЫЕ ФУНКЦИИ 4.1 ФУНКЦИЯ ЭКОНОМ - КОМФОРТ Данная функция позволяет установить два различных значения температуры в помещении: Economy / Comfort . Рекомендуем установить для режима ECONOMY более низкое значение температуры, чем для режима COMF...
Страница 12 - «MANUALE»; ЗАПОЛНЕНИЕ СИСТЕМЫ
54 7221787.03 - ru РУКОВОДСТВО ДЛЯ ПОЛЬЗОВАТЕЛЯ ВНИМАНИЕ: после установки этой функции убедитесь, что не была случайно нажата какая-либо другая кнопка. Действительно, нажав некоторые из кнопок панели управления, можно ошибочно активировать функцию ручного режима управления (на дисплее мигает символ ...
Страница 13 - ВЫКЛЮЧЕНИЕ НА ДЛИТЕЛЬНЫЙ ПЕРИОД. ЗАЩИТА ОТ ЗАМЕРЗАНИЯ; ОК
55 7221787.03 - ru РУКОВОДСТВО ДЛЯ ПОЛЬЗОВАТЕЛЯ Рекомендуется избегать частых сливов воды из системы отопления, т.к. частая замена воды приводит к ненужным и вредным отложениям накипи внутри котла и теплообменников.Если котел не используется в зимний период и существует опасность замерзания, Вы може...
Страница 14 - УКАЗАНИЯ ПО УХОДУ
56 7221787.03 - ru РУКОВОДСТВО ДЛЯ ПОЛЬЗОВАТЕЛЯ Для поддержания эффективной и безопасной работы Вашего котла в конце каждого сезона его должен проверить квалифицированный специалист. Качественное обслуживание обеспечивает долгий срок службы и экономичную работу системы. Внешнее покрытие котла нельзя...
Страница 15 - Система отопления; Важно; ПРОВЕРКИ ПЕРЕД УСТАНОВКОЙ КОТЛА
57 7221787.03 - ru РУКОВОДСТВО ДЛЯ ТЕХНИЧЕСКОГО ПЕРСОНАЛА Котел предназначен для нагрева воды не выше температуры кипения при атмосферном давлении. Он подключается к системе отопления и к системе приготовления горячей воды в соответствии с его характеристиками и мощностью.До установки котла необходи...
Страница 16 - ГАБАРИТНЫЕ РАЗМЕРЫ КОТЛА
58 7221787.03 - ru РУКОВОДСТВО ДЛЯ ТЕХНИЧЕСКОГО ПЕРСОНАЛА 13. УСТАНОВКА КОТЛА Выберите местоположение котла, затем прикрепите имеющийся шаблон к стене.Подведите трубы к входным отверстиям воды и газа, размеченным в нижней части шаблона. Мы советуем установить на вход в центральную систему отопления ...
Страница 17 - УСТАНОВКА ДЫМОХОДА И ВОЗДУХОВОДА; Предупреждение: Для гарантии наибольшей безопасности
59 7221787.03 - ru РУКОВОДСТВО ДЛЯ ТЕХНИЧЕСКОГО ПЕРСОНАЛА 15. УСТАНОВКА ДЫМОХОДА И ВОЗДУХОВОДА для моделей 240Fi - 310 Fi Ниже описываются поставляемые в качестве аксессуаров трубы и крепления для котлов с закрытой камерой сгорания и принудительной вытяжкой.Котел специально спроектирован для присоед...
Страница 18 - ВАРИАНТЫ ГОРИЗОНТАЛЬНОЙ УСТАНОВКИ НАКОНЕЧНИКА ДЫМОХОДА
60 7221787.03 - ru РУКОВОДСТВО ДЛЯ ТЕХНИЧЕСКОГО ПЕРСОНАЛА 15.1 ВАРИАНТЫ ГОРИЗОНТАЛЬНОЙ УСТАНОВКИ НАКОНЕЧНИКА ДЫМОХОДА 15.2 ВАРИАНТЫ УСТАНОВКИ ПРИ ПРИСОЕДИНЕНИИ К ОБЩЕМУ ДЫМОХОДУ (LAS - СИСТЕМА) 15.3 ВАРИАНТЫ ВЕРТИКАЛЬНОЙ УСТАНОВКИ НАКОНЕЧНИКА ДЫМОХОДА Такая установка может быть выполнена как на плос...
Страница 19 - Регулировка проема в трубе забора; Метан
61 7221787.03 - ru РУКОВОДСТВО ДЛЯ ТЕХНИЧЕСКОГО ПЕРСОНАЛА … СИСТЕМА ПРИТОКА ВОЗДУХА И ОТВОДА ПРОДУКТОВ СГОРАНИЯ ПО ДВУМ ОТДЕЛЬНЫМ ТРУБАМ. Этот тип установки позволяет отводить продукты сгорания, как через стену, так и в коллективный дымоход.Приток воздуха для сгорания может осуществляться также с др...
Страница 21 - ПОДКЛЮЧЕНИЕ К ЭЛЕКТРОПИТАНИЮ
63 7221787.03 - ru РУКОВОДСТВО ДЛЯ ТЕХНИЧЕСКОГО ПЕРСОНАЛА 16. ПОДКЛЮЧЕНИЕ К ЭЛЕКТРОПИТАНИЮ 15.6 ВАРИАНТЫ ДЫМООТВОДЯЩЕЙ СИСТЕМЫ ПО РАЗДЕЛЬНЫМ ТРУБАМ С ВЕРТИКАЛЬНЫМИ НАКОНЕЧНИКАМИ Обратите внимание! При установке дымохода убедитесь, что труба хорошо изолирована (напр., стекловолокном) в месте прохода ...
Страница 22 - УСТАНОВКА ВЫНОСНОЙ ПАНЕЛИ УПРАВЛЕНИЯ; УСТАНОВКА ПАРАМЕТРОВ; «MODUL»; ПОДСОЕДИНЕНИЕ КОМНАТНОГО ТЕРМОСТАТА; ВАЖНО
64 7221787.03 - ru РУКОВОДСТВО ДЛЯ ТЕХНИЧЕСКОГО ПЕРСОНАЛА 17. УСТАНОВКА ВЫНОСНОЙ ПАНЕЛИ УПРАВЛЕНИЯ 5. Осторожно вставить панель управления внутрь специального углубления на приборном щитке передней панели котла; 6. Закрыть корпус котла, завинтить два винта, которые его фиксируют (рис.11). Внимание: ...
Страница 23 - ФУНКЦИОНИРОВАНИЕ КНОПКИ; УСТАНОВКА ВЫНОСНОЙ ПАНЕЛИ УПРАВЛЕНИЯ НА СТЕНЕ; ПОРЯДОК ПЕРЕВОДА КОТЛА НА ДРУГОЙ ТИП ГАЗА И НАСТРОЙКИ ДАВЛЕНИЯ
65 7221787.03 - ru РУКОВОДСТВО ДЛЯ ТЕХНИЧЕСКОГО ПЕРСОНАЛА ФУНКЦИОНИРОВАНИЕ КНОПКИ ПРИ ПОДСОЕДИНЕННОМ КОМНАТНОМ ТЕРМОСТАТЕ В данном случае кнопка не действует так, как было описано в параграфе 3.4 (функция ECONOMY-COMFORT). Котел работает на систему отопления только когда идет одновременный запрос от...
Страница 24 - КЛАПАН SIT - SIGMA 845
66 7221787.03 - ru РУКОВОДСТВО ДЛЯ ТЕХНИЧЕСКОГО ПЕРСОНАЛА С) Операции по настройке давления газа (рис. 13) • На котлах с закрытой камерой сгорания необходимо снять переднюю панель, отвинтив соответствующие крестовые винты (для того, чтобы избежать погрешности в измерениях, связанной с герметичной ка...
Страница 25 - ПОРЯДОК ВЫВОДА ИНФОРМАЦИИ И ПРЕДВАРИТЕЛЬНЫЕ УСТАНОВКИ
67 7221787.03 - ru РУКОВОДСТВО ДЛЯ ТЕХНИЧЕСКОГО ПЕРСОНАЛА 19. ВЫВОД ПАРАМЕТРОВ ЭЛЕКТРОННОЙ ПЛАТЫ НА ДИСПЛЕЙ КОТЛА (ФУНКЦИЯ «ИНФО»). 19.1 ПОРЯДОК ВЫВОДА ИНФОРМАЦИИ И ПРЕДВАРИТЕЛЬНЫЕ УСТАНОВКИ Для входа в функцию «вывод информации и предварительные установки» необходимо не менее 3 сек нажимать кнопку ...
Страница 26 - ДОПОЛНИТЕЛЬНАЯ ИНФОРМАЦИЯ; Лето – Зима – Лето+Сool – только отопление –
68 7221787.03 - ru РУКОВОДСТВО ДЛЯ ТЕХНИЧЕСКОГО ПЕРСОНАЛА УСТАНАВЛИВАЕМЫЕ ПАРАМЕТРЫ • “K REG” Коэффициент регулирования (0,5…6,5) температуры на подаче в систему отопления (значение, установленное на заводе = 3, см. параграф 25 - график 3). Значение устанавливается с помощью кнопок +/- Высокое значе...
Страница 27 - УСТАНОВКА ПАРАМЕТРОВ; IP; Описание параметров
69 7221787.03 - ru РУКОВОДСТВО ДЛЯ ТЕХНИЧЕСКОГО ПЕРСОНАЛА ВНИМАНИЕ! Нельзя менять значения параметров «информация производителя». 20. УСТАНОВКА ПАРАМЕТРОВ Для установки параметров котла действовать следующим образом: • нажимать не менее 3 сек кнопку IP ; • нажать и держать нажатой кнопку и затем наж...
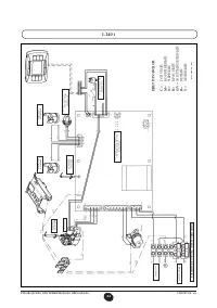
Страница 28 - УСТРОЙСТВА РЕГУЛИРОВАНИЯ И ПРЕДОХРАНИТЕЛЬНЫЕ УСТРОЙСТВА
70 7221787.03 - ru РУКОВОДСТВО ДЛЯ ТЕХНИЧЕСКОГО ПЕРСОНАЛА Котел спроектирован в полном соответствии с европейскими нормами и содержит следующие устройства: • Датчик тяги (пневмореле) (в моделях 240 Fi – 310 Fi – 1.240 Fi – 1.310 Fi) Данное устройство (позиция 17 - Рис.20) обеспечивает выключение осн...
Страница 29 - КОНТРОЛЬ ОТХОДЯЩИХ ГАЗОВ
71 7221787.03 - ru РУКОВОДСТВО ДЛЯ ТЕХНИЧЕСКОГО ПЕРСОНАЛА 22. РАСПОЛОЖЕНИЕ ЭЛЕКТРОДА ЗАЖИГАНИЯ И ЭЛЕКТРОДА-ДАТЧИКА ПЛАМЕНИ Рис.15 9912070100 При необходимости контроля отходящих газов котлы с принудительной тягой имеют две точки замера. Одна из них находится на вытяжном дымоходе и позволяет контроли...
Страница 30 - ПРИСОЕДИНЕНИЕ ДАТЧИКА УЛИЧНОЙ ТЕМПЕРАТУРЫ; K REG; ТМ; КЛЕММНАЯ КОЛОДКА М2
72 7221787.03 - ru РУКОВОДСТВО ДЛЯ ТЕХНИЧЕСКОГО ПЕРСОНАЛА 25. ПРИСОЕДИНЕНИЕ ДАТЧИКА УЛИЧНОЙ ТЕМПЕРАТУРЫ The boiler is prearranged for connection of an external probe (supplied as accessory).For the connection, refer to the figure below (terminals 3-4) and the instructions supplied with the probe. Пр...
Страница 31 - ПОДСОЕДИНЕНИЕ ДАТЧИКА БОЙЛЕРА; Кривые K REG
73 7221787.03 - ru РУКОВОДСТВО ДЛЯ ТЕХНИЧЕСКОГО ПЕРСОНАЛА (для моделей 1.240 i - 1.240 Fi - 1.310 Fi) Внимание: Датчик приоритета контура ГВС и мотор трехходового клапана не входят в комплект поставки котла и заказываются отдельно. ПОДСОЕДИНЕНИЕ ДАТЧИКА БОЙЛЕРА К данным котлам может быть присоединен...
Страница 32 - проверьте, чтобы параметр
74 7221787.03 - ru РУКОВОДСТВО ДЛЯ ТЕХНИЧЕСКОГО ПЕРСОНАЛА ЭЛЕКТРИЧЕСКОЕ ПРИСОЕДИНЕНИЕ МОТОРА ТРЕХХОДОВОГО КЛАПАНА (модели 1.240 i - 1.240 Fi - 1.310 Fi) Мотор трехходового клапана и необходимая электропроводка поставляются отдельными комплектами.Подсоедините мотор трехходового клапана как показано н...
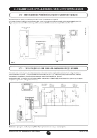
Страница 33 - ЭЛЕКТРИЧЕСКОЕ ПРИСОЕДИНЕНИЕ ЗОНАЛЬНОГО ОБОРУДОВАНИЯ; «ТА»; - ПРИСОЕДИНЕНИЕ ЗОНАЛЬНОГО ОБОРУДОВАНИЯ
75 7221787.03 - ru РУКОВОДСТВО ДЛЯ ТЕХНИЧЕСКОГО ПЕРСОНАЛА 27. ЭЛЕКТРИЧЕСКОЕ ПРИСОЕДИНЕНИЕ ЗОНАЛЬНОГО ОБОРУДОВАНИЯ Электрические контакты зон, не контролируемых выносной панелью управления, должны быть запараллелены и подсоединены к клеммам 1-2 «ТА» клеммной колодки М1 (см. рис.18.1). Зона, контролир...
Страница 34 - ОЧИСТКА ОТ ИЗВЕСТКОВОГО НАЛЕТА В СИСТЕМЕ ГВС; через сливной кран; ДЕМОНТАЖ ВТОРИЧНОГО ТЕПЛООБМЕННИКА; ЕЖЕГОДНОЕ ТЕХНИЧЕСКОЕ ОБСЛУЖИВАНИЕ; Предупреждение
76 7221787.03 - ru РУКОВОДСТВО ДЛЯ ТЕХНИЧЕСКОГО ПЕРСОНАЛА (Это неприменимо к моделям 1.240 i - 1.240 Fi e 1.310 Fi) Очистка системы ГВС может быть осуществлена без демонтажа вторичного теплообменника, если заранее был установлен специальный кран (поставляется отдельно) на выходе горячей санитарной в...
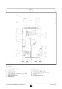
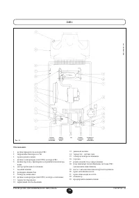
Страница 35 - ФУНКЦИОНАЛЬНЫЕ СХЕМЫ
77 7221787.03 - ru РУКОВОДСТВО ДЛЯ ТЕХНИЧЕСКОГО ПЕРСОНАЛА 32. ФУНКЦИОНАЛЬНЫЕ СХЕМЫ Обозначения: 1 датчик приоритета контура ГВС 2 гидравлический прессостат 3 трехходовой клапан 4 датчик температуры (тип NTC) контура ГВС 5 датчик протока с фильтром и ограничителем напора воды 6 мотор трехходового кла...
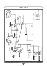
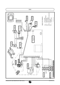
Страница 39 - СХЕМЫ ЭЛЕКТРИЧЕСКИХ СОЕДИНЕНИЙ; ЦВЕТ ПР
81 7221787.03 - ru РУКОВОДСТВО ДЛЯ ТЕХНИЧЕСКОГО ПЕРСОНАЛА 33. СХЕМЫ ЭЛЕКТРИЧЕСКИХ СОЕДИНЕНИЙ 240 Fi - 310 Fi Венти лятор КА БЕ ЛЬ ПИТ А НИЯ ТЕР МО С Т А Т ПЕРЕГРЕВ А Э ЛЕКТР О Д ЗАЖИГ А НИЯ ТРЕХХ О Д ОВЫЙ КЛА ПА Н ДА ТЧИК ТЕМПЕР А ТУРЫ (NT C) СИ С ТЕМЫ ОТОПЛЕНИЯ ПНЕВМОРЕ ЛЕ – ДА ТЧИК Т ЯГИ ТЕР МО С ...