Страница 3 - СОДЕРЖАНИЕ
3 7658828.02 - ru РУКОВОДСТВО ДЛЯ ПОЛЬЗОВАТЕЛЯ 1. Подготовка к установке…………………………………………………………………………………. 4 2. Подготовка к первому пуску…………………………………………………………………………….. 4 3. Пуск котла………………………………………………………………………………………………….. 5 4. Регулирование температуры теплоносителя и температуры горячей санитарной...
Страница 4 - ПОДГОТОВКА К УСТАНОВКЕ
4 7658828.02 - ru РУКОВОДСТВО ДЛЯ ПОЛЬЗОВАТЕЛЯ Котел предназначен для нагрева воды не выше температуры кипения при атмосферном давлении. Он подключается к системе отопления и к системе приготовления горячей воды в соответствии с его характеристиками и мощностью. Котел должен устанавливаться квалифиц...
Страница 5 - Внимание
5 7658828.02 - ru РУКОВОДСТВО ДЛЯ ПОЛЬЗОВАТЕЛЯ Гарантийные обязательства, выполняются организацией, осуществившей первый пуск котла. Данная организация должна иметь установленные законом разрешения. Начало гарантийного срока наступает с даты первого пуска. Для осуществления первого пуска и последующ...
Страница 6 - ОПИСАНИЕ КНОПКИ (Лето – Зима – Только Отопление – Выключено)
6 7658828.02 - ru РУКОВОДСТВО ДЛЯ ПОЛЬЗОВАТЕЛЯ 4. РЕГУЛИРОВАНИЕ ТЕМПЕРАТУРЫ ТЕПЛОНОСИТЕЛЯ И ТЕМПЕРАТУРЫ ГОРЯЧЕЙ САНИТАРНОЙ ВОДЫ Нажимая данную кнопку, можно установить следующие режимы работы котла: • ЛЕТО • ЗИМА • ТОЛЬКО ОТОПЛЕНИЕ • ВЫКЛЮЧЕНО При работе котла в режиме ЛЕТО на дисплее отображается с...
Страница 7 - ВЫКЛЮЧЕНИЕ КОТЛА; ВНИМАНИЕ; ЗАПОЛНЕНИЕ СИСТЕМЫ
7 7658828.02 - ru РУКОВОДСТВО ДЛЯ ПОЛЬЗОВАТЕЛЯ Для выключения котла необходимо отключить электропитание прибора. Когда переключатель режимов находится в положении «ВЫКЛЮЧЕНО» (см. параграф 5) котел не работает (на дисплее отображается надпись OFF), но электрический контур котла остается под напряжен...
Страница 8 - СИСТЕМА БЕЗОПАСНОСТИ: ИНДИКАТОРЫ И СРАБАТЫВАНИЕ
8 7658828.02 - ru РУКОВОДСТВО ДЛЯ ПОЛЬЗОВАТЕЛЯ 10. СИСТЕМА БЕЗОПАСНОСТИ: ИНДИКАТОРЫ И СРАБАТЫВАНИЕ Рекомендуется избегать частых сливов жидкости из системы отопления и частых заполнений (подпитки) системы отопления, т.к. частая замены жидкости приводит к ненужным вредным отложениям внутри гидравличе...
Страница 9 - ДОПОПЛНИТЕЛЬНЫЙ НАСОС; ПРОВЕРКИ ПЕРЕД УСТАНОВКОЙ КОТЛА
9 7658828.02 - ru РУКОВОДСТВО ДЛЯ ТЕХНИЧЕСКОГО ПЕРСОНАЛА Котел предназначен для нагрева воды не выше температуры кипения при атмосферном давлении. Он подключается к системе отопления и к системе приготовления горячей воды в соответствии с его характеристиками и мощностью. До установки котла необходи...
Страница 11 - ГАБАРИТНЫЕ РАЗМЕРЫ КОТЛА
11 7658828.02 - ru РУКОВОДСТВО ДЛЯ ТЕХНИЧЕСКОГО ПЕРСОНАЛА 15. ГАБАРИТНЫЕ РАЗМЕРЫ КОТЛА Рис.5 24 10 F - 18 F - 24 F - 1.24 F CG_2009 / 0912_1005 CG_2009 / 0912_1004 Наружная резьба G”3/4 подача воды в систему отопления Наружная резьба G”3/4 возврат воды из системы отопления Наружная резьба G”1/2 выхо...
Страница 12 - УСТАНОВКА ДЫМОХОДА И ВОЗДУХОВОДА
12 7658828.02 - ru РУКОВОДСТВО ДЛЯ ТЕХНИЧЕСКОГО ПЕРСОНАЛА 16. УСТАНОВКА ДЫМОХОДА И ВОЗДУХОВОДА модели 24 F – 1.24 F – 10 F - 18 F Ниже описываются поставляемые в качестве аксессуаров трубы и крепления для котлов с закрытой камерой сгорания и принудительной вытяжкой. Котел специально спроектирован дл...
Страница 13 - ВАРИАНТЫ ГОРИЗОНТАЛЬНОЙ УСТАНОВКИ НАКОНЕЧНИКА ДЫМОХОДА
13 7658828.02 - ru РУКОВОДСТВО ДЛЯ ТЕХНИЧЕСКОГО ПЕРСОНАЛА 16.1 ВАРИАНТЫ ГОРИЗОНТАЛЬНОЙ УСТАНОВКИ НАКОНЕЧНИКА ДЫМОХОДА 16.2 ВАРИАНТЫ УСТАНОВКИ ПРИ ПРИСОЕДИНЕНИИ К ОБЩЕМУ ДЫМОХОДУ (LAS - СИСТЕМА) 16.3 ВАРИАНТЫ ВЕРТИКАЛЬНОЙ УСТАНОВКИ НАКОНЕЧНИКА ДЫМОХОДА Такая установка может быть выполнена как на плос...
Страница 14 - ВАЖНО
14 7658828.02 - ru РУКОВОДСТВО ДЛЯ ТЕХНИЧЕСКОГО ПЕРСОНАЛА … СИСТЕМА ПРИТОКА ВОЗДУХА И ОТВОДА ПРОДУКТОВ СГОРАНИЯ ПО ДВУМ ОТДЕЛЬНЫМ ТРУБАМ Этот тип установки позволяет отводить продукты сгорания, как через стену, так и в коллективный дымоход. Приток воздуха для сгорания может осуществляться также с др...
Страница 16 - ПОДКЛЮЧЕНИЕ К ЭЛЕКТРОПИТАНИЮ
16 7658828.02 - ru РУКОВОДСТВО ДЛЯ ТЕХНИЧЕСКОГО ПЕРСОНАЛА Обратите внимание! При установке дымохода убедитесь, что труба хорошо изолирована (напр., стекловолокном) в месте прохода трубы сквозь стену здания, согласно действующим законам, правилам и нормативам. Подробные инструкции об установке труб с...
Страница 17 - КЛАПАН HONEYWELL - VK 4105 M; ПОРЯДОК ПЕРЕВОДА КОТЛА НА ДРУГОЙ ТИП ГАЗА
17 7658828.02 - ru РУКОВОДСТВО ДЛЯ ТЕХНИЧЕСКОГО ПЕРСОНАЛА КЛАПАН HONEYWELL - VK 4105 M Рис. 10 1604_0803 19. ПОРЯДОК ПЕРЕВОДА КОТЛА НА ДРУГОЙ ТИП ГАЗА Данный котел может работать как на метане (G20), так и на сжиженном газе (G31). Перевод котла на другой тип газа должен выполняться только специалист...
Страница 19 - ВЫВОД ИНФОРМАЦИИ НА ДИСПЛЕЙ КОТЛА
19 7658828.02 - ru РУКОВОДСТВО ДЛЯ ТЕХНИЧЕСКОГО ПЕРСОНАЛА 20. ВЫВОД ИНФОРМАЦИИ НА ДИСПЛЕЙ КОТЛА Для вывода информации о работе котла на дисплей, удерживать не менее 5 сек кнопку «i». • нажимать кнопки ( +/- ) чтобы вывести на дисплей значения следующих параметров: A00: действующее значение (ºС) темп...
Страница 20 - УСТАНОВКА ПАРАМЕТРОВ
20 7658828.02 - ru РУКОВОДСТВО ДЛЯ ТЕХНИЧЕСКОГО ПЕРСОНАЛА 21. УСТАНОВКА ПАРАМЕТРОВ Для установки параметров котла нажимать одновременно не менее 6 сек кнопку ( – ) и кнопку ( – ). Когда функция активна, на дисплее появится надпись “F01” которое сменяется значением выбранного параметра. Изменение пар...
Страница 21 - УСТРОЙСТВА РЕГУЛИРОВАНИЯ И ПРЕДОХРАНИТЕЛЬНЫЕ УСТРОЙСТВА
21 7658828.02 - ru РУКОВОДСТВО ДЛЯ ТЕХНИЧЕСКОГО ПЕРСОНАЛА Котел спроектирован в полном соответствии с европейскими нормами и содержит следующие устройства: • Датчик контроля тяги (пневмореле) (в моделях 24 F - 1.24 F - 18 F - 10 F) Данное устройство обеспечивает включение горелки только при исправно...
Страница 22 - РАСПОЛОЖЕНИЕ ЭЛЕКТРОДА ЗАЖИГАНИЯ – ДАТЧИКА ПЛАМЕНИ
22 7658828.02 - ru РУКОВОДСТВО ДЛЯ ТЕХНИЧЕСКОГО ПЕРСОНАЛА 23. РАСПОЛОЖЕНИЕ ЭЛЕКТРОДА ЗАЖИГАНИЯ – ДАТЧИКА ПЛАМЕНИ Рис.13 9912070100 При необходимости контроля отходящих газов котлы с принудительной тягой имеют две точки замера, расположенных на коаксиальной входной муфте. Одна из них находится на выт...
Страница 23 - ПРИСОЕДИНЕНИЕ ДАТЧИКА УЛИЧНОЙ ТЕМПЕРАТУРЫ; ПРИСОЕДИНЕНИЕ ВНЕШНЕГО БОЙЛЕРА
23 7658828.02 - ru РУКОВОДСТВО ДЛЯ ТЕХНИЧЕСКОГО ПЕРСОНАЛА 26. ПРИСОЕДИНЕНИЕ ДАТЧИКА УЛИЧНОЙ ТЕМПЕРАТУРЫ Из проводов, которые выходят из приборного щитка, два провода КРАСНОГО цвета оснащены изолированными ножевыми контактами Подсоединить датчик уличной температуры к данным проводам. При подсоединенн...
Страница 24 - ДЫМООТВОДЯЩАЯ СИСТЕМА С РАЗДЕЛЬНЫМИ ТРУБАМИ
24 7658828.02 - ru РУКОВОДСТВО ДЛЯ ТЕХНИЧЕСКОГО ПЕРСОНАЛА 28. ДЫМООТВОДЯЩАЯ СИСТЕМА С РАЗДЕЛЬНЫМИ ТРУБАМИ CG_2139 / 0905_2704 В некоторых случаях при установке системы удаления продуктов сгорания по раздельным трубам котёл может начать вибрировать. При этом возможна блокировка воздушного прессостата...
Страница 25 - ЕЖЕГОДНОЕ ТЕХНИЧЕСКОЕ ОБСЛУЖИВАНИЕ
25 7658828.02 - ru РУКОВОДСТВО ДЛЯ ТЕХНИЧЕСКОГО ПЕРСОНАЛА Для правильной и надежной работы котла необходимо ежегодно проверять: • внешний вид и непроницаемость прокладок газового контура и камеры сгорания; • состояние и правильное положение электрода зажигания и электрода-датчика пламени; • состояни...
Страница 26 - ОЧИСТКА ОТ ИЗВЕСТКОВОГО НАЛЕТА В СИСТЕМЕ ГВС
26 7658828.02 - ru РУКОВОДСТВО ДЛЯ ТЕХНИЧЕСКОГО ПЕРСОНАЛА Фильтр на входе холодной воды системы ГВС и фильтр на обратной подаче системы отопления располагаются внутри специальных съемных картриджей. Картридж с фильтром системы отопления располагается на возврате из системы (рис.16 F), картридж с фил...
Страница 27 - ФУНКЦИОНАЛЬНЫЕ СХЕМЫ
27 7658828.02 - ru РУКОВОДСТВО ДЛЯ ТЕХНИЧЕСКОГО ПЕРСОНАЛА 33. ФУНКЦИОНАЛЬНЫЕ СХЕМЫ 10 F - 18 F - 24 F Рис. 17 подача в систему отопления выход горячей воды газ подача холодной воды возврат из системы отопления Обозначения: газовый клапан рампа подачи газа с форсунками датчик температуры контура отоп...
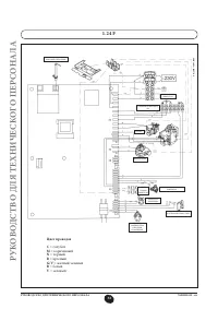
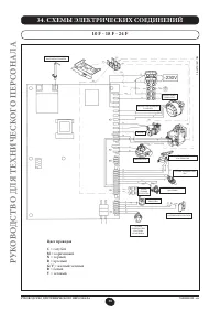
Страница 30 - СХЕМЫ ЭЛЕКТРИЧЕСКИХ СОЕДИНЕНИЙ
30 7658828.02 - ru РУКОВОДСТВО ДЛЯ ТЕХНИЧЕСКОГО ПЕРСОНАЛА 34. СХЕМЫ ЭЛЕКТРИЧЕСКИХ СОЕДИНЕНИЙ 10 F - 18 F - 24 F Цвет проводов C = голубой М = коричневый N = черный R = красный G/V = желтый/зеленый B = белый V = зеленый ЭЛЕКТРОД ЗАЖИГАНИЯ/ КОНТРОЛЯ ПЛАМЕНИ МОТОР ТРЕХХОДОВОГО КЛАПАНА НАСОС ВЕНТИЛЯТОР ...
Страница 33 - ТЕХНИЧЕСКИЕ ДАННЫЕ
33 7658828.02 - ru РУКОВОДСТВО ДЛЯ ТЕХНИЧЕСКОГО ПЕРСОНАЛА 35. ТЕХНИЧЕСКИЕ ДАННЫЕ Модель ECO4s 24 F 1.24 F 18 F 10 F 24 Категория II 2H3P II 2H3P II 2H3P II 2H3P II 2H3P Максимальная потребляемая тепловая мощность (ГВС) кВт 25,8 — 25,8 25,8 26,3 Максимальная потребляемая тепловая мощность (отопление)...