Страница 2 - BAXI
126 HU RO PL CZ RU Оглавление Инструкция для пользователя Операции перед монтажом 127 Предпусковые операции 127 Запуск котла 127 Регулирование комнатной температуры 127 Регулирование температуры хозяйственной воды 128 Установка параметров котла при помощи климатическогорегулятора QАА73 128 Наполнени...
Страница 3 - Рисунок 1
HU 127 RO PL CZ RU Операции перед монтажом Этот котел предназначен для нагрева воды до температуры ниже точкикипения при атмосферном давлении. Котел следует подключить котопительной установке, а также, если требуется для данной модели,к распределительной сети горячей хозяйственной воды, которыедолжн...
Страница 4 - –comfort–; Рисунок 2; Рисунок 3а; Наполнение установки; Важно
128 HU RO PL CZ RU Регулирование температурыхозяйственной воды Г азовый клапан оснащен электронным устройством модуляции пламени в з а в и с и м о с т и о т п ол оже н и я р у ч к и р е г у л я т о ра т е м п е рат у р ыхозяйственной воды (13) и от отбираемого количества воды.Это электронное устройс...
Страница 5 - Рисунок 4
HU 129 RO PL CZ RU Выключение котла Чтобы выключить котел, следует повернуть ручку (1) в положение (0).Таким образом, прекращается подача электропитания на аппарат. Продолжительная остановкаустановки. Защита от замерзания Советуем не опорожнить всю отопительную установку, поскольку частаязамена воды...
Страница 6 - Общие указания; Внимание; Операции перед монтажом; Система хозяйственной воды; Инструкция для установщика; Рисунок 5
130 HU RO PL CZ RU Общие указания Внимание - При переключателе (1) в положении ЗИМА ( ) необходимо подождать нескольких минут после каждого срабатываниярегулятора системы отопления (12). Чтобы немедленно зажечь главнуюгорелку, повернуть переключатель (1) в положение (0), а затем в положение ( ). Это...
Страница 7 - Рисунок 6; Плита крепления котла на стене; Альтернативный способ прикрепления котла к стене
HU 131 RO PL CZ RU Размеры котла Набор принадлежностей В упаковке котла содержатся следующие принадлежности: • плита крепления • газовый кран (16) • водовпускной кран с фильтром (17) • кран линии нагнетания системы отопления (19) • кран обратной линии системы отопления (18) Рисунок 7а 0010270400 Рис...
Страница 12 - sx; CO
136 HU RO PL CZ RU Регулировка воздушного шибера для двойного выпуска Регулировка этого шибера необходима для оптимизации кпд ипараметров сгорания.Вращая шибер забираемого воздуха, который можно расположить либослева, либо справа от выпускного трубопровода, избыточный воздухс о о т в е т с т в е н н...
Страница 13 - Подключение к электросети
HU 137 RO PL CZ RU Подключение часовогопрограммирующего устройства • Снять два крепежных винта панели управления котлом и повернутьее вниз. • Снять два крепежных винта крышки панели управления и повернутьее вверх. • П од к л ю ч и т ь д в и гат е л ь п р о г ра м м и ру ю щ е го ус т р о й с т в а к...
Страница 17 - Наладка электронной платы
HU 141 RO PL CZ RU На электронной плате имеются 3 триммера (см. монтажные схемы настраницах 22÷25), а именно:• триммер СН max:при помощи этого триммера регулируется максимальная мощностьотопления; • триммер Р max:этот триммер должен быть всегда установлен в максимальномположении; • триммер СН slope:...
Страница 18 - Проверка параметров сгорания
142 HU RO PL CZ RU Положение электрода зажигания идетектора пламени Рисунок 14а 0206_0708 LUNA BLUE 240 Fi - 1.240 Fi - 280 Fi Рисунок 14б 0012180600 LUNA BLUE 180 i - 1.180 i - 240 i Проверка параметров сгорания На концентрической муфте котлов с принудительной тягой имеютсядва патрубка, специфическ...
Страница 19 - соответствующий спускной кран; Чистка фильтра холодной воды
HU 143 RO PL CZ RU Рисунок 15 Крепежные винты водо-водяного теплообменника Крепежная гайка датчика потока 9910080400 Демонтаж водо-водяноготеплообменника (LUNA BLUE 180 i - 240 i - 240 Fi - 280 Fi ) Пластинчатый водо-водяной теплообменник из нержавеющей сталилегко демонтируется с помощью обычной отв...
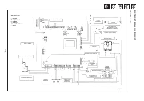
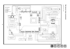
Страница 20 - Функциональная схема
144 HU RO PL CZ RU Функциональная схема LUNA BLUE 180 i - 240 i Легенда14 Манометр 16 Газовый кран 17 Водовпускной кран с фильтром 18 Кран на обратной линии системы отопления 19 Кран на нагнетании системы отопления 20 Датчик потока с фильтром и ограничителем расхода воды 21 Автоматический байпасный ...
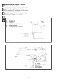
Страница 28 - Присоединение внешнего бойлера
152 HU RO PL CZ RU Присоединение внешнего бойлера для моделей LUNA BLUE 1.180 i - 1.240 Fi Эти котлы оснащены моторным трехходовым клапаном, которыйпозволяет присоединить к ним внешний бойлер.Подсоединить бойлер к водопроводам, как указано на рисунке 20.П од к л ю ч и т ь з о н д Н Т К п р и о р и т...
Страница 29 - Подключение внешнего зонда
HU 153 RO PL CZ RU Подключение внешнего зонда К котлу может быть подключен внешний зонд, который поставляетсяпо запросу.Осуществить подключение согласно нижеприведенному рисунку иприложенной к зонду инструкции.Если котел оснащается климатическим регулятором QАА73, зонддолжен быть подключен к нему сл...
Страница 30 - ВАЖНО
154 HU RO PL CZ RU Кривую нужно выбрать при помощи триммера СН-slope, находящегосяна электронной плате.В графиках 5 и 6 изображены выбираемые кривые в зависимости отдиапазона температур, заданного при помощи соответствующегопереключателя (см. рис. 13). Смещение (offset) вышеприведенных кривых можно ...
Страница 34 - Технические характеристики; Модель котла
158 HU RO PL CZ RU Технические характеристики Модель котла 180 i 1.180 i 240 i 240 Fi 1.240 Fi 280 Fi Номинальная теплопроизводительность кВт 19,4 19,4 26,3 26,3 26,3 31,1 Пониженная теплопроизводительность кВт 10,6 10,6 11,9 11,9 11,9 11,9 Номинальная тепловая мощность кВт 17,5 17,5 24 24 24 28 кка...
Страница 40 - АО “ВАХI”
codice 923.057.2 A BAXI S.p.A ., termékeit folyamatosan fejleszti, fenntartja a jogot arra, hogy a jelen dokumentációban megadott adatokat bármikor előzetes értesítés nélkül megváltoztassa. A jelen dokumentáció infor mációs jellegű, harmadik féllel szemben nem tekinthető szerződésnek. BAXI S.p.A. 36...