Baxi ECO Four 1.14 CSE46114354- - инструкции и руководства

Котел Baxi ECO Four 1.14 CSE46114354- - инструкции пользователя по применению, эксплуатации и установке на русском языке читайте онлайн в формате pdf

1 Page 1
2 Page 2
3 Page 3
4 Page 4
5 Page 5
6 Page 6
7 Page 7
8 Page 8
9 Page 9
10 Page 10
11 Page 11
12 Page 12
13 Page 13
14 Page 14
15 Page 15
16 Page 16
17 Page 17
18 Page 18
19 Page 19
20 Page 20
21 Page 21
22 Page 22
23 Page 23
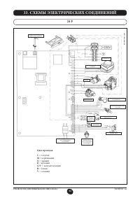
24 Page 24
25 Page 25
26 Page 26
27 Page 27
28 Page 28
29 Page 29
30 Page 30
31 Page 31
32 Page 32
33 Page 33

Краткое содержание

Страница 3 - СОДЕРЖАНИЕ

66 7221797.03 - ru РУКОВОДСТВО ДЛЯ ПОЛЬЗОВАТЕЛЯ 1. Подготовка к установке…………………………………………………………………………………. 67 2. Подготовка к первому пуску…………………………………………………………………………….. 67 3. Пуск котла………………………………………………………………………………………………….. 68 4. Регулирование комнатной температуры и температуры горячей санитарной...

Страница 4 - ПОДГОТОВКА К УСТАНОВКЕ

67 7221797.03 - ru РУКОВОДСТВО ДЛЯ ПОЛЬЗОВАТЕЛЯ Котел предназначен для нагрева воды не выше температуры кипения при атмосферном давлении. Он подключается к системе отопления и к системе приготовления горячей воды в соответствии с его характеристиками и мощностью. Котел должен устанавливаться квалифи...

Страница 5 - Внимание

68 7221797.03 - ru РУКОВОДСТВО ДЛЯ ПОЛЬЗОВАТЕЛЯ Гарантийные обязательства, выполняются организацией, осуществившей первый пуск котла. Данная организация должна иметь установленные законом лицензии. Начало гарантийного срока наступает с момента первого пуска. Для осуществления первого пуска и последу...

Baxi Котлы Инструкции