Страница 2 - BAXI; содеРЖаНИе; Руководство для пользователя
66 926.237.2 - RU Руководство для пользователя Уважаемый покупатель! Мы убеждены, что приобретенное Вами изделие будет соответствовать всем Вашим требованиям. Приобретение одного из изделий BAXI отвечает вашим ожиданиям: хорошая работа, простота и легкость пользования. Сохраните это руководство, и п...
Страница 3 - подготовка к устаНовке
67 926.237.2 - RU Руководство для пользователя Котел предназначен для нагрева воды не выше температуры кипения при атмосферном давлении. Он подключается к системе отопления и к системе приготовления горячей воды в соответствии с его характеристиками и мощностью. Котел должен устанавливаться квалифиц...
Страница 4 - внимание
68 926.237.2 - RU Руководство для пользователя Гарантийные обязательства, выполняются организацией, осуществившей первый пуск котла. Данная организация должна иметь установленные законом лицензии. Начало гарантийного срока наступает с момента первого пуска. Для осуществления первого пуска и последую...
Страница 5 - опИсаНИе кНопкИ (лето – зима – только отопление – выключено)
69 926.237.2 - RU Руководство для пользователя 4. РегулИРоваНИе комНатНой темпеРатуРЫ И темпеРатуРЫ гоРячей саНИтаРНой водЫ Нажимая данную кнопку, можно установить следующие режимы работы котла: • ЛЕТО • ЗИМА • ТОЛЬКО ОТОПЛЕНИЕ • ВЫКЛЮЧЕНО При работе котла в режиме лето на дисплее появляется символ ...
Страница 6 - ВЫКЛЮЧЕНИЕ КОТЛА; вНИмаНИе; заполНеНИе сИстемЫ
70 926.237.2 - RU Руководство для пользователя Для выключения котла необходимо отключить электропитание прибора. Когда переключатель режимов находится в положении «ВЫКЛЮЧЕНО» (см. параграф 5) котел не работает (на дисплее появляется надпись OFF), но электрический контур котла остается под напряжение...
Страница 7 - сИстема безопасНостИ: ИНдИкатоРЫ И сРабатЫваНИе; ВЫКЛЮЧЕНИЕ НА дЛИТЕЛЬНЫй ПЕрИОд. ЗАщИТА ОТ ЗАМЕрЗАНИя; Неисправность; указаНИя по уходу
71 926.237.2 - RU Руководство для пользователя 10. сИстема безопасНостИ: ИНдИкатоРЫ И сРабатЫваНИе Рекомендуется избегать частых сливов воды из системы отопления, т.к. частая замена воды приводит к ненужным и вредным отложениям накипи внутри котла и теплообменников. Если котел не используется в зимн...
Страница 8 - допоплНИтельНЫй Насос; пРовеРкИ пеРед устаНовкой котла
72 926.237.2 - RU Руководство для техНИческого пеРсоНала Котел предназначен для нагрева воды не выше температуры кипения при атмосферном давлении. Он подключается к системе отопления и к системе приготовления горячей воды в соответствии с его характеристиками и мощностью. До установки котла необходи...
Страница 9 - InStAllAzIonE dEllA CAldAIA
73 926.237.2 - RU Руководство для техНИческого пеРсоНала 13. InStAllAzIonE dEllA CAldAIA 971125_0201 Figura 5 1: uscita acqua calda sanitaria G 1/2 2: entrata acqua fredda sanitaria G 1/2 3: ritorno impianto di riscaldamento G 3/4 4: mandata riscaldamento G 3/4 5: entrata gas alla caldaia G 3/4 0204...
Страница 10 - dImEnSIonI CAldAIA
74 926.237.2 - RU Руководство для техНИческого пеРсоНала 14. dImEnSIonI CAldAIA 15. габаРИтНЫе РазмеРЫ котла Рис.5 24 - 1.24 - 1.14 24 F - 1.24 F - 1.14 F CG_2009 / 0903_0201 CG_2009 / 0903_0202
Страница 11 - устаНовка дЫмохода И воздуховода; модель
75 926.237.2 - RU Руководство для техНИческого пеРсоНала 16. устаНовка дЫмохода И воздуховода модели 24 F – 1.24 F - 1.14 F Ниже описываются поставляемые в качестве аксессуаров трубы и крепления для котлов с закрытой камерой сгорания и принудительной вытяжкой. Котел специально спроектирован для прис...
Страница 12 - ваРИаНтЫ гоРИзоНтальНой устаНовкИ НакоНечНИка дЫмохода
76 926.237.2 - RU Руководство для техНИческого пеРсоНала 16.1 ваРИаНтЫ гоРИзоНтальНой устаНовкИ НакоНечНИка дЫмохода 0503_0907/C G1640 16.2 ВАрИАНТЫ усТАНОВКИ ПрИ ПрИсОЕдИНЕНИИ К ОбщЕМу дЫМОхОду (LAS - сИсТЕМА) 16.3 ваРИаНтЫ веРтИкальНой устаНовкИ НакоНечНИка дЫмохода Такая установка может быть выпо...
Страница 15 - ПОдКЛЮЧЕНИЕ К эЛЕКТрОПИТАНИЮ; подсоедИНеНИе комНатНого теРмостата
79 926.237.2 - RU Руководство для техНИческого пеРсоНала обратите внимание! При установке дымохода убедитесь, что труба хорошо изолирована (напр., стекловолокном) в месте прохода трубы сквозь стену здания. Подробные инструкции об установке труб смотри в руководствах, прилагаемых к комплектам. Рис.9 ...
Страница 16 - поРядок пеРевода котла На дРугой тИп газа И НастРойкИ давлеНИя; пРовеРка входНого дИНамИческого давлеНИя газа; пеРевод котла На дРугой тИп газа; КЛАПАН SIT - SIgmA 845
80 926.237.2 - RU Руководство для техНИческого пеРсоНала 19. поРядок пеРевода котла На дРугой тИп газа И НастРойкИ давлеНИя • Открутить винт на штуцере ( Pb , рис. 10) и присоединить к штуцеру ( Pb ) манометр. • Открыть газовый кран и установить переключатель режимов (Рис.2) в положение Зима и подож...
Страница 17 - вЫвод ИНФоРмацИИ На дИсплей котла
81 926.237.2 - RU Руководство для техНИческого пеРсоНала 20. вЫвод ИНФоРмацИИ На дИсплей котла Для вывода информации о работе котла на дисплей, расположенный на передней панели котла, нажимать не менее 5 сек кнопку «i». вНИмаНИе: когда активна функция «InFo» на дисплее (рис.11) появляется н а д п и ...
Страница 18 - устаНовка паРаметРов
82 926.237.2 - RU Руководство для техНИческого пеРсоНала 21. устаНовка паРаметРов Для установки параметров котла нажимать одновременно не менее 6 сек кнопку ( – ) и кнопку ( – ). Когда функция активна, на дисплее появится надпись “ F01 ” которое сменяется значением выбранного параметра. Изменение па...
Страница 19 - устРойства РегулИРоваНИя И пРедохРаНИтельНЫе устРойства
83 926.237.2 - RU Руководство для техНИческого пеРсоНала Котел спроектирован в полном соответствии с европейскими нормами и содержит следующие устройства: • датчик тяги (пневмореле) (в моделях 24 F - 1.24 F - 1.14 F) Данное устройство обеспечивает включение основной горелки при условии исправной раб...
Страница 20 - КОНТрОЛЬ ОТхОдящИх гАЗОВ; На
84 926.237.2 - RU Руководство для техНИческого пеРсоНала 23. рАсПОЛОжЕНИЕ эЛЕКТрОдА ЗАжИгАНИя И эЛЕКТрОдА-дАТЧИКА ПЛАМЕНИ Рис.12 9912070100 При необходимости контроля отходящих газов котлы с принудительной тягой имеют две точки замера, расположенных на коаксиальной входной муфте. Одна из них находит...
Страница 21 - пРИсоедИНеНИе датчИка улИчНой темпеРатуРЫ; пРИсоедИНеНИе вНешНего бойлеРа
85 926.237.2 - RU Руководство для техНИческого пеРсоНала 26. пРИсоедИНеНИе датчИка улИчНой темпеРатуРЫ Из проводов, которые выходят из приборного щитка, два провода КРАСНОГО цвета оснащены и з о л и р о в а н н ы м и н о ж е в ы м и к о н т а к т а м и Подсоединить датчик уличной температ уры к данн...
Страница 22 - еЖегодНое техНИческое обслуЖИваНИе
86 926.237.2 - RU Руководство для техНИческого пеРсоНала Для правильной и надежной работы котла необходимо ежегодно проверять: • внешний вид и непроницаемость прокладок газового контура и камеры сгорания; • состояние и правильное положение электрода зажигания и электрода-датчика пламени; • состояние...
Страница 23 - очИстка от Известкового Налета в сИстеме гвс
87 926.237.2 - RU Руководство для техНИческого пеРсоНала Это неприменимо к моделям 1.24F - 1.24 Ко тел о б орудов а н фи льт р ом для холодной в оды, размещенным в гидравлическом блоке. Для его очистки действуйте следующим образом: • слейте воду из системы ГВС; • отверните гайк у на блоке дат чика п...
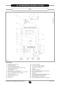
Страница 24 - ФуНкцИоНальНЫе схемЫ
88 926.237.2 - RU Руководство для техНИческого пеРсоНала 32. ФуНкцИоНальНЫе схемЫ 24 F Рис. 15 обозначения: подача в систему отопления выход горячей воды газ подача холодной воды возврат из системы отопления устройство Вентури точка положительного давления точка отрицательного давления пневмореле – ...
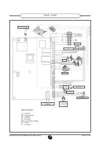
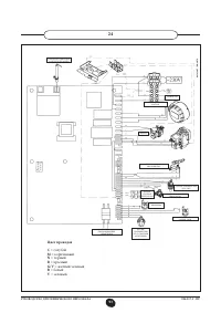
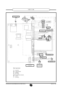
Страница 28 - схЕМЫ эЛЕКТрИЧЕсКИх сОЕдИНЕНИй; цвет проводов
92 926.237.2 - RU Руководство для техНИческого пеРсоНала 33. схЕМЫ эЛЕКТрИЧЕсКИх сОЕдИНЕНИй 24 F цвет проводов C = голубой м = коричневый n = черный R = красный G/V = желтый/зеленый B = белый V = зеленый ЭЛЕКТРОД ЗАжИГАНИя/ КОНТРОЛя ПЛАМЕНИ ТЕРМОСТАТ ТРЕХХОДОВЫй КЛАПАН НАСОС ВЕНТИЛяТОР ДАТЧИК ПРИОРИ...
Страница 32 - вЫпИска Из НоРм И пРавИл ес для газовЫх котлов
96 926.237.2 - RU Руководство для техНИческого пеРсоНала 34. вЫпИска Из НоРм И пРавИл ес для газовЫх котлов Установка, тех. обслуживание и эксплуатация газовых котлов в Италии регламентируются нормами uNI-CIg n. 7129 и uNI-CIg n. 7131, выписку из которых мы предлагаем Вашему вниманию Установка, тех....
Страница 34 - техНИческИе даННЫе
98 926.237.2 - RU Руководство для техНИческого пеРсоНала 35. техНИческИе даННЫе компания BAXI S.p.A., постоянно работая над усовершенствованием предлагаемой продукции, оставляет за собой право без предварительного уведомления вносить необходимые технические изменения в свою продукцию. Настоящее руко...