Водонагреватели STIEBEL ELTRON ESH 5 U-N Trend tap 201387 - инструкция пользователя по применению, эксплуатации и установке на русском языке. Мы надеемся, она поможет вам решить возникшие у вас вопросы при эксплуатации техники.
Если остались вопросы, задайте их в комментариях после инструкции.
"Загружаем инструкцию", означает, что нужно подождать пока файл загрузится и можно будет его читать онлайн. Некоторые инструкции очень большие и время их появления зависит от вашей скорости интернета.

уСТАНОВкА
Технические характеристики
52
| ESH 5 U-N Trend | ESH 5 O-N Trend www.stiebel-eltron.com
ESH 5 O-N Trend
c06
c01
25
305
140
415
233
70
100
252
i13
D
00000
40
41
5
ESH 5 O-N Trend
c01 подвод холодной воды Наружная резьба
G 1/2 A
c06 Выпуск горячей воды
Наружная резьба
G 1/2 A
i13 Настенная монтажная
планка
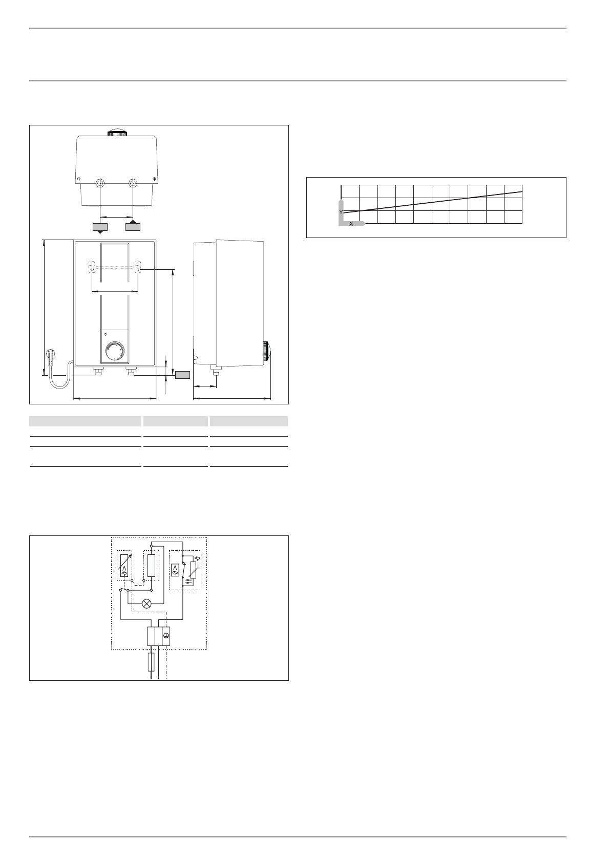
15.2 Электрическая схема
1/N/PE ~ 230 В
L N
85
�0
2�
06
�0
00
1
15.3 Диаграмма нагрева
Длительность нагрева зависит от количества накипи и
остаточного тепла. Длительность нагрева холодной воды
температурой 10 °C до максимальной температуры пока-
зана на графике.
35
40
45
50
55
60
65
70
75
80
85
0
5
10
15
D
00000
47
17
5
x Температура в °C
y Длительность в мин
15.4 Государственные допуски и
свидетельства
знаки технического контроля находятся на заводской та-
бличке.
15.5 Экстремальные условия эксплуатации
и возникновение неисправностей
В случае неисправности система может кратковременно
нагреваться до максимальной температуры 100 °C.
Содержание
- 2 СОДЕРЖАНИЕ | СпЕцИАльНыЕ укАзАНИя; СпЕцИАльНыЕ
- 3 ЭкСплуАТАцИя; Указания по технике безопасности; Другие обозначения в данной; Техника безопасности; Использование по назначению
- 4 Общие указания по технике; Описание устройства
- 5 уСТАНОВкА; Общие указания по технике; Комплект поставки
- 7 Подключение к водопроводу
- 8 Ввод в эксплуатацию; Первый ввод в эксплуатацию; Вывод из эксплуатации
- 9 Техническое обслуживание
- 11 Характеристики энергопотребления
- 12 ГАРАНТИЯ | ЗАЩИТА ОКРУЖАЮЩЕЙ СРЕДЫ И УТИЛИЗАЦИЯ; Гарантия; ГАРАНТИя | зАЩИТА ОкРуЖАЮЩЕЙ СРЕДы И уТИлИзАцИя