Водонагреватели Protherm Панда 24PTP 10003784 - инструкция пользователя по применению, эксплуатации и установке на русском языке. Мы надеемся, она поможет вам решить возникшие у вас вопросы при эксплуатации техники.
Если остались вопросы, задайте их в комментариях после инструкции.
"Загружаем инструкцию", означает, что нужно подождать пока файл загрузится и можно будет его читать онлайн. Некоторые инструкции очень большие и время их появления зависит от вашей скорости интернета.

17
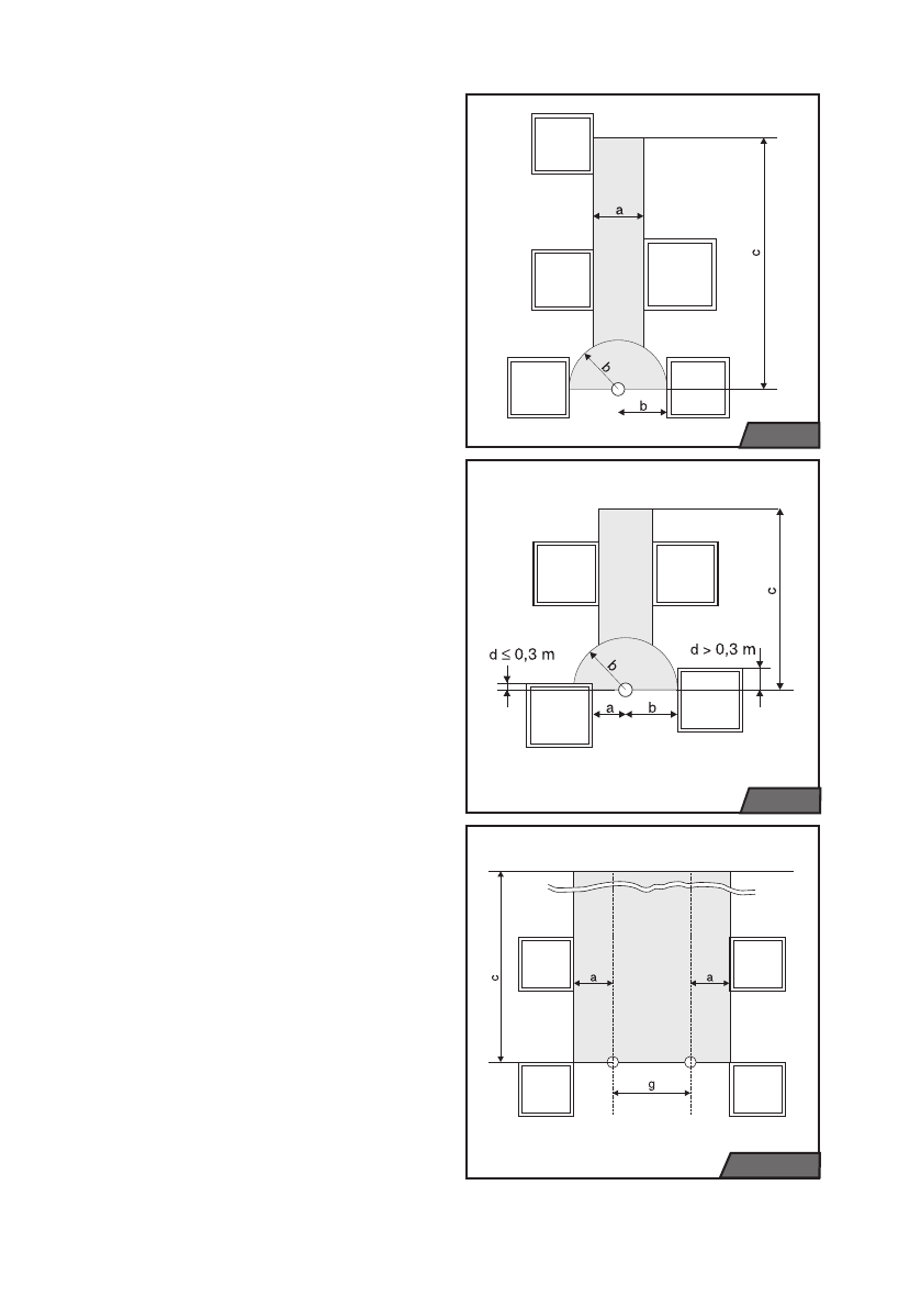
Примеры размещения дымоходов в
соответствии с приложением №7 к
Постановлению правительства СР №
92/1996 Сб.з.
Самостоятельный вывод в ровной
стене
1. Самостоятельный вывод образует пасмо
от оси вывода шириной a = 0,5 м, радиусом
b = 1,0 м и высотой c = 5,0 м.
Рис. 14 – Схема создания пасма при
самостоятельном выводе дымохода
2. Если ось вывода находится на расстоянии
d > 0,3 м под верхней частью конструкции
окна, созданное пасмо не может
перекрываться с плоскостью окна. Если
расстояние d < 0,3 м, пасмо, ограниченное
радиусом b, может пересекаться с верхней
частью плоскости окна.
Рис. 15 – Схема создания пасма от оси
вывода дымохода, расположенного
Вблизи верхней части окна
Спаренный вывод при
горизонтальной ориентации на
подобной внешней стене
Расстояния от спаренного вывода на ровной
стене при горизонтальной ориентации
являются следующими:
a = 1,5 м; g = 5,0 м; c = 5,0 м.
В случае если g < 5 м, происходит
пересечение пасм, причем общая ширина
пасма должна быть 8 м, а значения „a“
пропорционально увеличить с обеих сторон
(так, например, если g = 4,0 м, то значение a
должно соответствовать величине 2,0 м).
Рис. 16a – Спаренный вывод при
горизонтальной ориентации на
ровной внешней стене
рис
. 14
рис
. 15
рис
. 16a
Содержание
- 2 Protherm 24 PTP; Obsah; Содержание
- 3 Введение
- 5 Описание проточного нагревателя
- 6 Ввод в действие проточного нагревателя; Запуск проточного нагревателя
- 7 Уход и сервис; Квалифицированный уход и сервис; Противоморозная защита; Отключение проточного нагревателя
- 8 Гарантия и гарантийные условия
- 9 Сообщения о неисправностях; Неисправность
- 10 Исполнение
- 11 рис
- 14 Установка проточного нагревателя; Навеска проточного нагревателя; Подключение газа и воды
- 16 Подвод воздуха и отвод продуктов сгорания; Таблица
- 20 Информация для пользователя; Профессиональное обслуживание и сервис
- 21 Запасные части