Водонагреватели Neva Lux 6014 сж газ - инструкция пользователя по применению, эксплуатации и установке на русском языке. Мы надеемся, она поможет вам решить возникшие у вас вопросы при эксплуатации техники.
Если остались вопросы, задайте их в комментариях после инструкции.
"Загружаем инструкцию", означает, что нужно подождать пока файл загрузится и можно будет его читать онлайн. Некоторые инструкции очень большие и время их появления зависит от вашей скорости интернета.

Основные
особенности
аппарата
:
-
аппарат
автоматически
включается
при
открытии
крана
горячей
воды
(
при
расходе
воды
более
2,5
л
/
мин
);
-
горелка
запальная
автоматически
выключается
после
воспламенения
горелки
основной
;
-
аппарат
поддерживает
(
в
пределах
своей
теплопроизводительности
)
заданную
температуру
горячей
воды
при
изменении
расхода
воды
,
температуры
воды
на
входе
и
давления
газа
;
-
на
цифровом
дисплее
отображается
температура
воды
,
вытекающей
из
аппарата
,
и
задаваемая
температура
при
нажатии
кнопок
управления
;
-
при
возникновении
неисправности
на
дисплее
высвечивается
код
ошибки
;
-
аппарат
имеет
индикатор
разряда
элемента
питания
.
Не
рекомендуется
устанавливать
данный
аппарат
в
сетях
водоснабжения
с
часто
изменяющимся
давлением
воды
.
2.3.
Комплект
поставки
Комплект
поставки
приведен
в
таблице
2.
Таблица
2
Обозначение
Наименование
Количество
,
штук
3261-00.00
Аппарат
«NEVALUX-6014»
1
3261-00.00
РЭ
Руководство
по
эксплуатации
1
3261-82.00
Упаковка
1
3208-06.600
Элементы
крепления
аппарата
(
комплект
)
1
Запасные
части
3103-00.014
Прокладка
D19xd10x2
2
Примечание
.
Элемент
питания
в
комплект
поставки
не
входит
.
2.4.
Устройство
аппарата
2.4.1.
Аппарат
настенного
типа
(
рис
. 1)
имеет
прямоугольную
форму
,
образуемую
съемной
облицовкой
2.
На
лицевой
стороне
облицовки
расположены
:
смотровое
окно
3
для
наблюдения
за
пламенем
горелок
запальной
и
основной
;
дисплей
8
температуры
воды
,
кнопки
задания
температуры
воды
9
и
10,
индикатор
разряда
батареи
11.
Все
основные
элементы
аппарата
смонтированы
на
задней
стенке
19 (
см
.
рис
. 2).
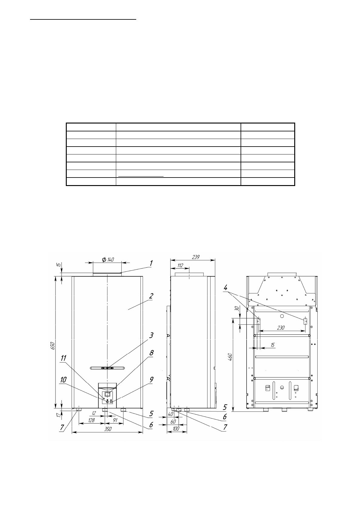
1 –
патрубок
газоотводящего
устройства
; 2 –
облицовка
; 3 –
окно
смотровое
;
4 –
монтажные
отверстия
; 5 –
штуцер
подвода
холодной
воды
,
резьба
G 1/2;
6
–
штуцер
подвода
газа
,
резьба
G 1/2; 7 –
штуцер
отвода
горячей
воды
,
резьба
G 1/2;
8 –
дисплей
температуры
воды
; 9 –
кнопка
уменьшения
задаваемой
температуры
;
10 –
кнопка
увеличения
задаваемой
температуры
; 11 –
индикатор
разряда
элемента
питания
.
Рисунок
1.
Внешний
вид
,
габаритные
и
присоединительные
размеры
аппарата
5
Содержание
- 2 СОДЕРЖАНИЕ; «NEVALUX»
- 3 ЕСЛИ
- 4 Назначение; Таблица
- 5 Комплект; Устройство
- 9 Место
- 12 Подключение
- 19 LO; ПРАВИЛА













