Водонагреватели Neva Lux 6014 сж газ - инструкция пользователя по применению, эксплуатации и установке на русском языке. Мы надеемся, она поможет вам решить возникшие у вас вопросы при эксплуатации техники.
Если остались вопросы, задайте их в комментариях после инструкции.
"Загружаем инструкцию", означает, что нужно подождать пока файл загрузится и можно будет его читать онлайн. Некоторые инструкции очень большие и время их появления зависит от вашей скорости интернета.

-
газоотводящая
труба
и
её
соединение
с
аппаратом
должны
быть
герметичными
.
Соединение
трубы
с
аппаратом
рекомендуется
выполнять
в
соответствии
с
рисунком
7.
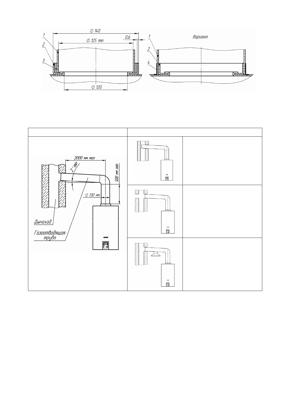
1 -
газоотводящая
труба
; 2 –
патрубок
газоотводящего
устройства
аппарата
;
3 –
уплотнитель
термостойкий
; 4 –
скотч
алюминиевый
термостойкий
Рисунок
7.
Схема
подсоединения
газоотводящей
трубы
3.7.2.
Вариант
подключения
аппарата
к
дымоходу
показан
на
рисунке
8.
Рисунок
8.
Подключение
аппарата
к
дымоходу
Правильно
Неправильно
Конец
газоотводящей
трубы
слишком
близок
к
противоположной
стене
дымохода
.
В
дымоходе
на
уровне
подсоединения
газоотводящей
трубы
имеется
отверстие
(
в
том
числе
и
с
подключенным
к
нему
другим
устройством
).
Два
устройства
имеют
одно
подсоединение
к
дымоходу
3.8.
Установка
элемента
питания
Элемент
питания
типоразмера
D
устанавливается
в
батарейный
отсек
13 (
см
.
рис
. 2)
в
соответствии
с
полярностью
,
указанной
на
внутренней
стороне
крышки
отсека
.
Рекомендуется
устанавливать
элемент
питания
типа
LR20,
алкалиновый
,
высокой
энергоёмкости
для
обеспечения
более
длительной
работы
аппарата
.
3.9.
Проверка
аппарата
После
установки
аппарата
и
проверки
на
герметичность
должны
быть
проверены
:
работа
горелок
запальной
и
основной
(
п
. 5.1.2, 5.1.3),
работа
автоматики
безопасности
(
п
. 2.5.6),
температура
и
расход
горячей
воды
.
Включение
и
выключение
аппарата
,
и
регулировку
температуры
воды
выполнять
в
соответствии
с
разделом
4.
Примечание
.
После
хранения
аппарата
в
помещении
с
отрицательной
температурой
его
первый
запуск
производить
не
ранее
,
чем
через
1,5
ч
после
переноса
его
в
тёплое
помещение
.
13













