Преобразователи частоты Danfoss VLT 2800 Series - инструкция пользователя по применению, эксплуатации и установке на русском языке. Мы надеемся, она поможет вам решить возникшие у вас вопросы при эксплуатации техники.
Если остались вопросы, задайте их в комментариях после инструкции.
"Загружаем инструкцию", означает, что нужно подождать пока файл загрузится и можно будет его читать онлайн. Некоторые инструкции очень большие и время их появления зависит от вашей скорости интернета.

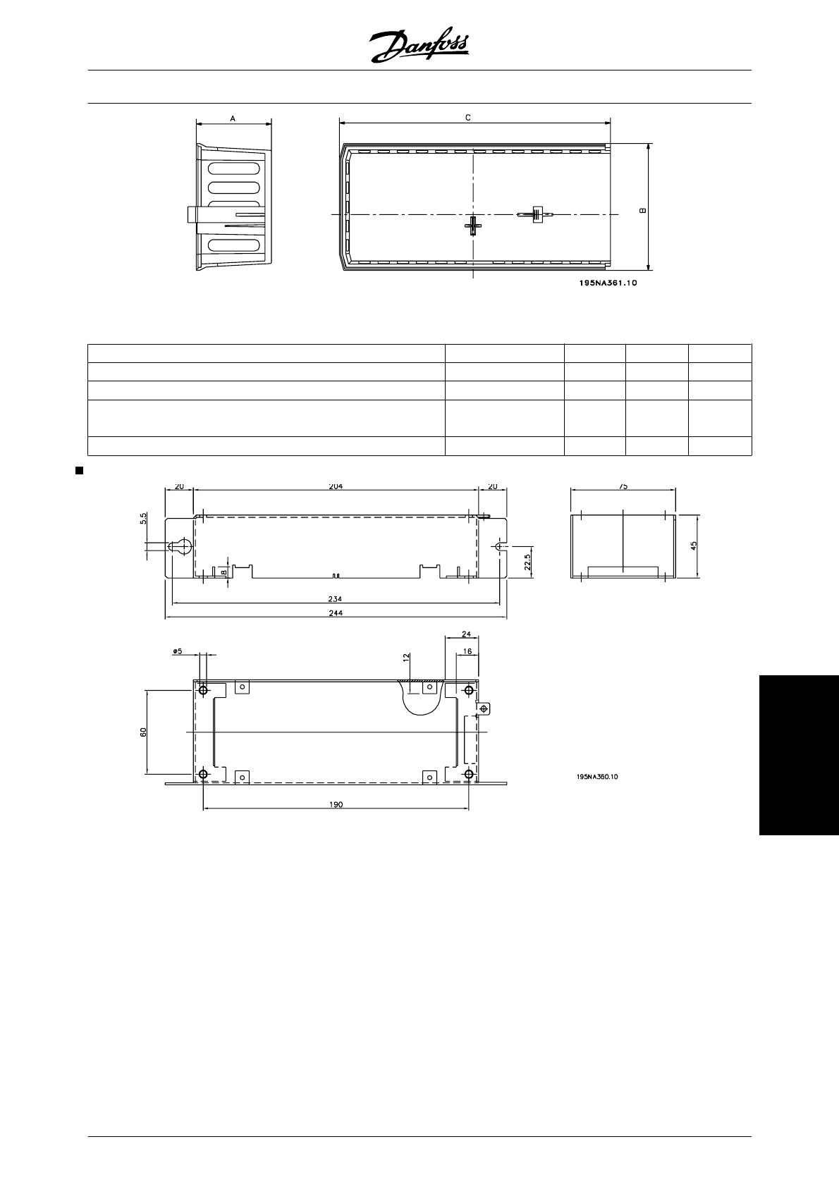
Размеры
Тип
Кодовый
номер
A
B
C
VLT 2803-2815 200-240
В
, VLT 2805-2815 380 - 480
В
195N2118
47
80
170
VLT 2822 200-240
В
, VLT 2822-2840 380-480
В
195N2119
47
95
170
VLT 2840 200-240
В
, VLT 2822 PD2, TR1 2855-2875
380-480
В
195N2120
47
145
170
TR1 2880-2882 380-480
В
, VLT 2840 PD2
195N2126
47
205
245
Фильтр
ЭМС
для
длинных
кабелей
двигателя
192H4719
Серия
VLT® 2800
MG.27.A2.50 - VLT
®
–
зарегистрированный
товарный
знак
компании
Danfoss
71
Монтаж
Содержание
- 2 Все; UL; Алфавитный; зарегистрированный
- 3 Серия; Быс
- 4 Ref; ETR
- 5 Внимание
- 7 VL
- 8 Выключатель
- 13 Пр
- 14 LCP
- 15 Функция; Описание; FB
- 16 LC
- 21 Конфигурация; DeviceNet; Характеристики
- 23 RS
- 32 Сброс
- 35 Sin; ramp 1
- 41 Цифровые; Не
- 44 Клемма
- 45 FREQ
- 47 Выход
- 60 FF
- 62 VLT
- 64 Уставка; Замкнутый
- 68 – Fb; – Ref
- 69 Монтаж
- 71 Размеры; Тип
- 73 NEMA 1
- 77 См
- 79 Danfoss
- 86 LCP 2
- 92 UDC
- 94 HPFB
- 100 PELV
- 101 излучение
- 108 IEC
- 109 Входные
- 116 FC
- 119 Ал