Пароварки Miele DGM7640 - инструкция пользователя по применению, эксплуатации и установке на русском языке. Мы надеемся, она поможет вам решить возникшие у вас вопросы при эксплуатации техники.
Если остались вопросы, задайте их в комментариях после инструкции.
"Загружаем инструкцию", означает, что нужно подождать пока файл загрузится и можно будет его читать онлайн. Некоторые инструкции очень большие и время их появления зависит от вашей скорости интернета.
Загружаем инструкцию

Монтаж
-
I
N
S
T
A
L
L
A
T
I
O
N
-
168
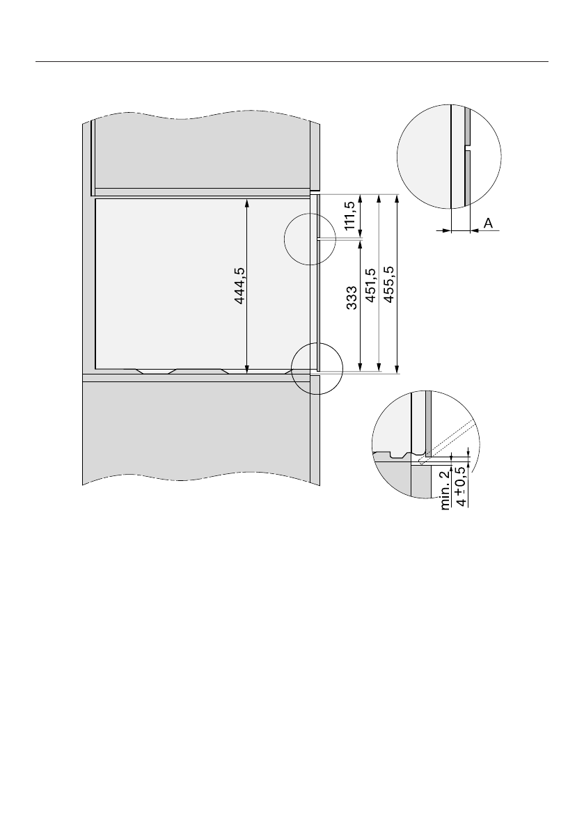
Вид сбоку
A
Стеклянный фронт: 22 мм
Металлический фронт: 23,3 мм
Содержание
- 2 Содержание
- 3 Ввод в эксплуатацию
- 4 Управление прибором
- 7 Указания по безопасности и предупреждения
- 8 Надлежащее использование
- 9 Если у Вас есть дети
- 10 Техническая безопасность
- 12 Если вилка будет удалена с сетевого кабеля или кабель не
- 13 Правильная эксплуатация; Опасность получения травм из-за горячего пара и горячих по-
- 14 Режим СВЧ
- 15 Важно, чтобы температура в продукте распределялась рав-
- 18 Теплоизолирующая упаковка имеет тонкий слой алюминиевой
- 19 Чистка и уход
- 20 Ваш вклад в охрану окружающей среды; Утилизация прибора
- 21 Обзор; Пароварка
- 22 Типовая табличка; всегда
- 23 не; Таблетки для удаления накипи
- 24 Элементы управления
- 25 «утоплена» и; Датчик приближения
- 26 Сенсорные кнопки; Сенсорная; . Процесс приготовления выполняется при мощности
- 28 Сенсорный дисплей; Сенсорный дисплей состоит из нескольких областей.; центре дисплея; или
- 29 Символы; На экране дисплея могут появиться следующие символы:
- 30 Принцип управления; оранжевым цветом; Выбор пункта меню; ОК
- 31 OK; Ввод букв; Перемещение записей
- 32 Индикация поля Помощник; Активация MobileStart
- 33 Описание функций; Ёмкость для воды
- 34 Фаза нагрева; фаза; ца снова автоматически закрывается.
- 35 Принцип действия
- 36 Подходящая посуда
- 37 решётка
- 38 Неподходящая посуда
- 39 Крышка; Не
- 40 Стеклянный поддон; Для режима; Подсветка рабочей камеры; Если коснуться кнопки
- 41 Доступность соединения Wi-Fi
- 42 Основные установки; Установка языка; Установка даты
- 43 Установка жёсткости воды; Первая чистка пароварки; Очистка ёмкости для воды
- 44 Вы должны
- 45 Установки; Обзор установок; Пункт меню
- 48 Вызов меню «Установки»; Индикация
- 49 Отображение; Формат времени; Дата; Освещение
- 50 Дисплей; Яркость
- 52 Функция
- 53 Отвод пара; Рекоменд. температура; Выберите нужный режим работы.
- 54 Жёсткость воды
- 56 Включить прибор
- 57 Безопасность; и удерживайте его ми-
- 60 Индикация SuperVision
- 61 – Установленное обновление нельзя
- 62 Версия ПО; Правовая информация
- 63 Заводские настройки; Все записи MyMiele удаляются.
- 65 Установка времени таймера
- 66 Изменение времени таймера; Удаление времени таймера
- 67 Главное меню и подменю; Меню
- 69 лодную питьевую воду
- 70 Чистка пароварки
- 71 Изменение температуры
- 72 Установка времени приготовления
- 73 Изменить время приготовления
- 74 Опасность получения травм от
- 75 Изменение режима работы
- 76 Быстр. старт СВЧ и Попкорн
- 78 Важно знать для приготовления на пару; Посуда для приготовления; Контейнеры для приготовления
- 80 Собственные рецепты
- 81 Приготовление на пару; . Этот режим подходит прежде; Настройка; Выберите время приготовления
- 84 Время приготовления
- 85 Рыба
- 86 Рекомендации
- 87 время приготовления
- 88 – Для сохранения
- 90 Соотношение
- 91 Крупа
- 92 Макароны / изделия из теста; Сухие продукты; Свежие продукты
- 93 Клецки; Паровые кнедли из дрожжевого теста
- 94 Чечевицу; С замачиванием
- 95 Без замачивания
- 96 Мелкие
- 97 Фрукты; Колбаски
- 98 Подготовка
- 99 Моллюски
- 100 Уровень приготовления
- 101 Приготовление блюда меню
- 108 Повторный разогрев
- 109 Повторный разогрев в режиме Sous-vide
- 110 Разогрев с помощью пара
- 112 Продукт; Время
- 113 Опасность заражения из-за
- 117 Бланширование; Консервирование; Банки
- 118 – Рекомендуется использовать оста-
- 119 Длительность консервирования
- 120 Подъём дрожжевого теста; Стерилизация посуды
- 122 Расплавление желатина; Замочите
- 123 Расплавление мёда; Расплавление шоколада
- 124 Приготовление йогурта; При использовании йогуртно-
- 125 Растапливание шпика; Шпик не подрумянивается.
- 126 Тушение лука; Получение сока
- 127 Снятие кожицы с продукта
- 128 Консервирование яблок
- 129 Размораживание и разогрев в режиме быстрого приготовления; Посуда для
- 130 Количество
- 131 Приготовление риса; Влейте рис с жидкостью в неперфорированный контейнер.; Мощность микроволн,
- 132 Размораживание и разогрев c использованием СВЧ; Размораживание; Мощность микроволн
- 134 Указания к таблице
- 135 Размораживание в режиме СВЧ
- 137 Разогрев; Опасность получения травм
- 138 Выберите
- 139 Опасность получения ожогов
- 140 Разогрев в режиме СВЧ
- 142 Категории; Указания по использованию
- 144 Добавление записей; Удаление записей
- 145 Персональн. программы
- 146 Подтвердите с помощью
- 151 Тестовые блюда согласно EN 60705 (режим СВЧ
- 153 Чистка рабочей камеры
- 154 Сразу; Снимите защиту от перелива.; Принадлежности
- 155 Установка
- 156 Очистка пароварки от накипи
- 157 Замачивание
- 163 Дополнительно приобретаемые принадлежности; Средства для чистки и ухода
- 164 Сервисная служба; – в сервисные центры Miele.
- 165 Монтаж; Указания по безопасности при встраивании прибора
- 167 Встраивание в шкаф под столешницей
- 170 Установка пароварки
- 171 Подключение к электросети
- 172 Параметры подключения
- 174 Гарантия качества товара
- 176 Контактная информация о Miele
- 177 Заявление о соответствии товара
- 178 Авторские права и лицензии; . Изложенные в условиях предоставления свободной лицензии поло-
- 179 Факс
Характеристики
Остались вопросы?Не нашли свой ответ в руководстве или возникли другие проблемы? Задайте свой вопрос в форме ниже с подробным описанием вашей ситуации, чтобы другие люди и специалисты смогли дать на него ответ. Если вы знаете как решить проблему другого человека, пожалуйста, подскажите ему :)
Часто задаваемые вопросы
Как посмотреть инструкцию к Miele DGM7640?
Необходимо подождать полной загрузки инструкции в сером окне на данной странице
Руководство на русском языке?
Все наши руководства представлены на русском языке или схематично, поэтому вы без труда сможете разобраться с вашей моделью
Как скопировать текст из PDF?
Чтобы скопировать текст со страницы инструкции воспользуйтесь вкладкой "HTML"