Пароварки Miele DGC6860 - инструкция пользователя по применению, эксплуатации и установке на русском языке. Мы надеемся, она поможет вам решить возникшие у вас вопросы при эксплуатации техники.
Если остались вопросы, задайте их в комментариях после инструкции.
"Загружаем инструкцию", означает, что нужно подождать пока файл загрузится и можно будет его читать онлайн. Некоторые инструкции очень большие и время их появления зависит от вашей скорости интернета.

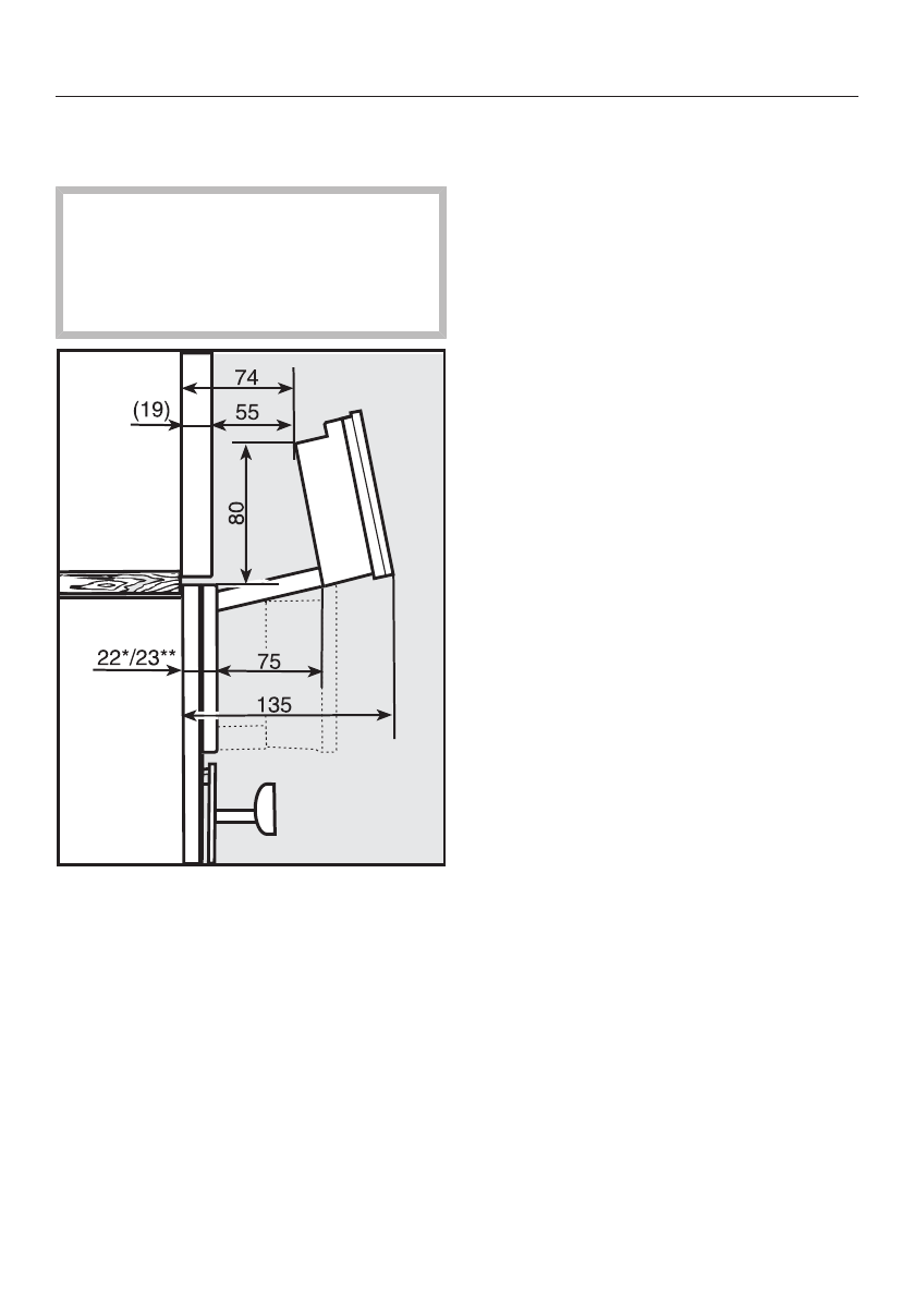
Детальные размеры фронтальной поверхности па-
роварки
182
Область наклона панели уп-
равления
В области наклона панели управ-
ления не должен находиться ника-
кой предмет (напр., ручка дверцы),
который может помешать откры-
тию и закрытию панели.
*
Стеклянный фронт /
**
Металличес-
кий фронт
Содержание
- 2 Содержание
- 3 Эксплуатация: комбинированный режим
- 4 Предупреждающий сигнал + таймер
- 6 Блокировка запуска
- 8 Указания по безопасности и предупреждения
- 9 Надлежащее использование
- 10 Если у Вас есть дети
- 11 Опасность получения травм! Несущая способность дверцы
- 12 Техническая безопасность
- 14 Если пароварка встроена за мебельным фронтом (например,
- 15 Правильная эксплуатация; Опасность получения ожогов! При работе пароварка нагрева-
- 17 Никогда не покрывайте дно рабочей камеры фольгой или за-
- 18 Чистка и уход
- 19 Ваш вклад в охрану окружающей среды; Утилизация прибора
- 20 Обзор; Внешний вид пароварки
- 22 Универсальный противень
- 24 Элементы управления
- 25 Сенсорные кнопки; Функция
- 26 Сенсорный дисплей; Дисплей разделяется на три области.
- 27 Символы
- 28 Принцип управления; Выбрать или вызвать меню
- 29 Ввод чисел
- 30 Описание функций; Панель управления; . Панель управления оснащена; Емкость для воды
- 31 Влажность; Работа режима; и специальной программы; выполняются за счет комби-; Время приготовления; время; Шумы
- 32 Фаза нагрева; вместе с; Подсветка рабочей камеры; Если коснуться кнопки
- 33 Ввод в эксплуатацию; Основные установки; Текст приветствия на дисплее
- 34 Индикация текущего времени; Первая чистка пароварки
- 35 Принадлежности / рабочая камера; Установка жесткости воды
- 36 Вы должны; Нагрев пароварки
- 37 Главное меню и подменю
- 40 Простая эксплуатация; допроводную воду
- 41 После завершения приготовления; После использования прибора; Недостаточное количество воды
- 42 Прерывание работы прибора; Опасность получения ожогов!
- 43 Расширенная эксплуатация; С помощью задания опций
- 46 Выберите
- 47 работает; В режиме; невозможна
- 50 Следуйте указаниям на дисплее.
- 52 До запуска
- 55 После приготовления
- 59 и время; При касании
- 60 Изменить режим работы
- 61 Изменение температуры
- 63 MyMiele; Добавить запись; Удалить записи
- 64 Автоматические программы; Обзор пищевых категорий
- 65 Указания по использованию
- 66 Поиск
- 67 Персональные программы
- 69 Изменение этапов приготовления
- 71 Изменение сигнала
- 72 Использование таймера; Установка значений таймера; По истечении времени
- 73 Важно знать; Посуда для приготовления; Контейнеры
- 74 Уровень установки
- 75 Защита при вынимании
- 76 или
- 79 лись
- 81 Колбасные изделия; Рыба
- 82 Температура
- 84 Подготовка
- 85 Свежие продукты
- 86 Установки; Соотношение
- 87 Макароны / изделия из теста; Сухие продукты
- 88 Клецки; Паровые кнедли из дрожжевого теста
- 90 Чечевицу; С замачиванием
- 91 Без замачивания
- 92 Размер S
- 93 Вы можете использовать собранный сок для изготовления глазури; Сливы
- 95 Порядок действий
- 98 Рекомендации
- 103 Жаркое ломтиками толщиной 1
- 104 Размораживание
- 107 Консервирование; Банки
- 110 Консервирование пирогов
- 111 Получение сока
- 112 Функции
- 113 Сушка
- 114 Приготовление йогурта; При использовании йогуртно-
- 115 Подъем дрожжевого теста
- 116 Расплавление желатина; Замочите; Расплавление шоколада
- 117 Снятие кожицы с продукта
- 118 Консервирование яблок; Бланширование
- 119 Тушение лука; Растапливание шпика; Шпик не подрумянивается.
- 120 Стерилизация посуды
- 121 Расплавление меда; Пицца
- 124 Пищевой термометр; Принцип действия
- 125 – использовать для приготовления
- 126 Разместите продукт в приборе.
- 127 – Если Вы хотите готовить одновре-
- 128 Жарение; Указания по жарению; Мясо диких животных стано-; Нежирное мясо
- 129 Жирное мясо
- 130 Таблица жарения
- 136 Выпекание; Конвекция плюс; Выпекайте на нижнем уровне.
- 137 Указания по выпеканию; – выпечки с содержанием разрыхли-
- 139 Таблица выпекания
- 142 Запекание на гриле; нельзя; Переверните продукт спустя
- 144 Таблица приготовления на гриле
- 145 Вы находитесь в главном меню.; Изменение и сохранение установок; Подтвердите с помощью OK.
- 146 Обзор установок; Пункт меню
- 148 Язык; Индикация
- 149 Дата; Звуковые сигналы
- 150 Единицы; Вес; Поддержание тепла
- 151 Автоматическое промывание; ется индикация; Рекомендуемые температуры; Безопасность
- 152 Блокировка кнопок; Жесткость воды
- 153 Торговля; Демонстрационный режим; Заводские настройки; Все записи MyMiele удаляются.
- 156 Класс энергоэффективности
- 157 Указания по чистке и уходу; Риск получения травм!
- 159 PerfectClean
- 160 Рабочая камера; Удалите
- 161 Фильтр в дне рабочей камеры
- 162 Вытрите отсек насухо.; Принадлежности
- 163 Боковые направляющие
- 164 Уход; Смачивание
- 165 Удаление накипи
- 166 После удаления накипи
- 167 Дверца; Снятие
- 168 Установка
- 171 В режимах; эти функции вообще не предлагаются.
- 174 Задвиньте панель управления.
- 175 Дополнительно приобретаемые принадлежности; Контейнер шириной
- 177 Крышки для контейнеров; Средства для чистки и ухода; Для очистки пароварки от накипи
- 178 Прочее
- 179 Форма для запекания Gourmet
- 180 Все размеры указаны в мм.
- 182 кий фронт
- 183 Размеры для встраивания; Встраивание в высокий шкаф; Сзади ниши для встраивания не должно быть задней стенки шкафа.
- 185 Встраивание в шкаф под столешницей
- 187 Встраивание; Монтаж пароварки
- 188 Электроподключение; Опасность получения травм!
- 189 Технические характеристики; Общая мощность 3,45 кВт; Отключение электропитания; Риск получения травм в ре-
- 190 Замена сетевого кабеля; Схема подключения
- 191 Сервисная служба, типовая табличка, гарантия; Сервисная служба; Гарантийный срок составляет 2 года.
- 192 Сертификат соответствия; – При температуре от –25 °C до +55 °C, а также кратковременно, не более 24; Дата изготовления
- 193 Гарантия качества товара
- 195 Контактная информация о Miele
- 196 Авторские права и лицензии; – размножение и распространение,
- 199 Факс
Характеристики
Остались вопросы?Не нашли свой ответ в руководстве или возникли другие проблемы? Задайте свой вопрос в форме ниже с подробным описанием вашей ситуации, чтобы другие люди и специалисты смогли дать на него ответ. Если вы знаете как решить проблему другого человека, пожалуйста, подскажите ему :)













