Пароварки Miele DGC 6660 - инструкция пользователя по применению, эксплуатации и установке на русском языке. Мы надеемся, она поможет вам решить возникшие у вас вопросы при эксплуатации техники.
Если остались вопросы, задайте их в комментариях после инструкции.
"Загружаем инструкцию", означает, что нужно подождать пока файл загрузится и можно будет его читать онлайн. Некоторые инструкции очень большие и время их появления зависит от вашей скорости интернета.

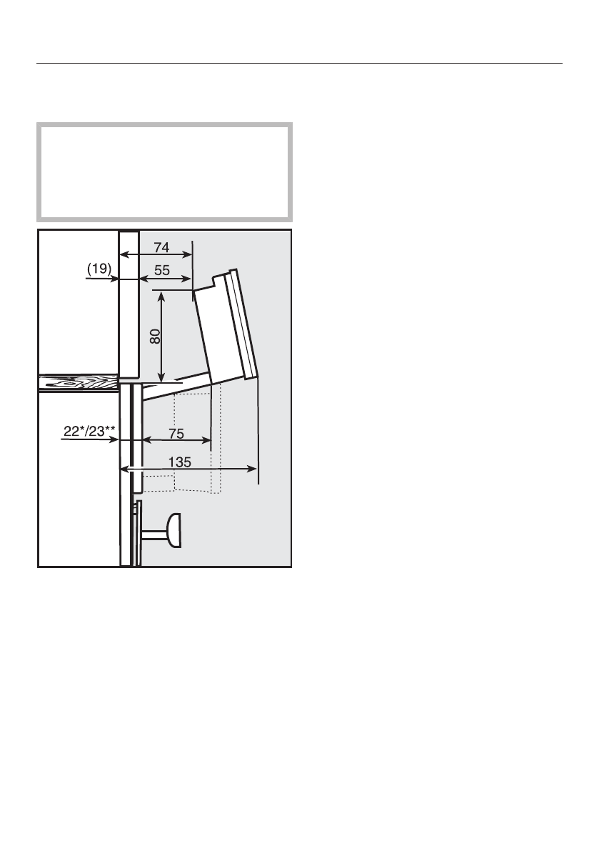
Детальные размеры фронтальной поверхности па-
роварки
174
Область наклона панели уп-
равления
В области наклона панели управ-
ления не должен находиться ника-
кой предмет (напр., ручка дверцы),
который может помешать откры-
тию и закрытию панели.
*
Стеклянный фронт /
**
Металличес-
кий фронт
Содержание
- 2 Содержание
- 4 Приготовление на пару
- 5 Пищевой термометр
- 7 Гарантия качества товара
- 8 Указания по безопасности и предупреждения
- 9 Надлежащее использование
- 10 Если у Вас есть дети
- 11 Опасность получения травм! Несущая способность дверцы
- 12 Техническая безопасность
- 14 Если пароварка встроена за мебельным фронтом (например,
- 15 Правильная эксплуатация; Опасность получения ожогов! При работе пароварка нагрева-
- 17 Никогда не покрывайте дно рабочей камеры фольгой или за-
- 18 Чистка и уход
- 19 Ваш вклад в охрану окружающей среды; Утилизация прибора
- 20 Обзор; Внешний вид пароварки
- 22 Универсальный противень
- 23 Элементы управления
- 24 Сенсорные кнопки; рядом с этим пунктом.
- 25 Дисплей; После включения пароварки кнопкой Вкл/Выкл
- 26 Символы
- 27 Описание функций; Панель управления
- 28 Влажность; Работа режима; Время приготовления; время; Шумы
- 29 Фаза нагрева; вместе с; Подсветка рабочей камеры; Если коснуться кнопки
- 30 Первый ввод в эксплуатацию; Основные установки; Текст приветствия на дисплее
- 31 Индикация текущего времени; Подтвердите с помощью OK.
- 32 Первая чистка пароварки; Опасность защемления!; Установка жесткости воды
- 33 Вам следует; Нагрев пароварки
- 34 Главное меню и подменю; Для выпекания на нескольких уровнях; Ступень 3
- 36 Создание и сохранение процессов приготовления
- 37 Эксплуатация: режим «Приготовление на пару»; Простая эксплуатация; допроводную воду
- 38 После завершения приготовления; После использования прибора; Недостаточное количество воды
- 39 Прерывание работы прибора; Опасность получения ожогов!
- 40 Расширенная эксплуатация; Выберите
- 41 До запуска
- 42 Изменение температуры
- 43 Эксплуатация: комбинированный режим; Режим работы; В режиме
- 46 Следуйте указаниям на дисплее.
- 49 Коснитесь; При новом касании
- 51 Включите пароварку с помощью; Выберите нужный режим работы.; назад к установке температуры.
- 55 на дисплее высвечива-
- 56 Изменить режим работы
- 58 Автоматические программы; Обзор пищевых категорий
- 59 Указания по использованию
- 60 Персональные программы
- 61 вол
- 63 Изменение этапов приготовления
- 64 Выберите нужную программу.; Персональная программа удаляется.
- 65 Таймер; Установка значений таймера; По истечении времени; Изменение времени таймера
- 66 Важно знать; Посуда для приготовления; Контейнеры
- 67 Уровень установки
- 68 Защита при вынимании
- 69 или
- 72 лись
- 74 Сардельки; Рыба
- 75 – Большую рыбу готовьте в том поло-
- 77 Подготовка
- 78 Свежие продукты
- 79 Установки; Соотношение
- 80 Макароны / изделия из теста; Сухие продукты
- 81 Клецки; Паровые кнедли из дрожжевого теста
- 83 Чечевицу; С замачиванием
- 84 Без замачивания
- 85 Размер S
- 88 Порядок действий
- 91 Рекомендации
- 95 Повторный разогрев
- 97 Специальные программы
- 98 Жаркое ломтиками толщиной 1
- 101 Продукт
- 102 Консервирование; Банки
- 104 Длительность консервирования
- 105 Консервирование пирогов; Время консервирования
- 106 Получение сока
- 107 Приготовление блюд меню
- 109 Приготовление йогурта; При использовании йогуртно-
- 110 Подъем дрожжевого теста
- 111 Расплавление желатина; Замочите; Расплавление шоколада
- 112 Снятие кожицы с продукта; Время
- 113 Консервирование яблок; Бланширование
- 114 Тушение лука; Растапливание шпика; Шпик не подрумянивается.
- 115 Стерилизация посуды; Нагревание полотенец
- 116 Растапливание меда; Пицца
- 118 Программа «Шаббат»
- 119 Принцип действия
- 120 Разместите продукт в приборе.
- 121 – Если Вы хотите готовить одновре-; Внутренняя температура
- 122 Жарение; Указания по жарению; Мясо диких животных стано-; Комбинированный режим; Нежирное мясо
- 123 Жирное мясо
- 124 Таблица жарения
- 130 Выпекание; Выпекайте на нижнем уровне.
- 131 Указания по выпеканию; Жироулавливающий фильтр
- 132 Замороженные продукты
- 133 Таблица выпекания
- 136 Запекание на гриле; нельзя; Переверните продукт спустя
- 138 Таблица приготовления на гриле; Время приготовления на гриле
- 139 Вызов меню «Установки»; Изменение и сохранение установок; OK
- 140 Обзор установок; Пункт меню
- 141 Язык; Индикация; Дата
- 142 Освещение; Мелодии
- 143 Звук нажатия кнопок; Выбирайте; изменять громкость звука.; Единицы; Вес; Температура
- 144 Поддержание тепла; Автоматическое промывание; ется индикация
- 145 Рекомендуемые температуры; Безопасность; Блокировка запуска
- 146 Блокировка кнопок; Жесткость воды
- 147 Торговля; Режим презентации; Заводские настройки
- 150 Указания по чистке и уходу; Риск получения травм!
- 152 PerfectClean
- 153 Рабочая камера; Удалите
- 154 Фильтр в дне рабочей камеры
- 155 Вытрите отсек насухо.; Принадлежности
- 156 Боковые направляющие; сзади
- 157 Уход; Замачивание
- 158 После удаления накипи
- 159 Дверца; Снятие
- 160 Установка
- 167 Дополнительно приобретаемые принадлежности; Контейнер шириной
- 169 Крышки для контейнеров; Средства для чистки и ухода; Для очистки пароварки от накипи
- 170 Прочее
- 171 Формы для запекания Gourmet
- 172 Все размеры указаны в мм.
- 174 кий фронт
- 175 Размеры для встраивания; Встраивание в высокий шкаф
- 177 Встраивание в шкаф под столешницей
- 179 Встраивание; Монтаж пароварки
- 180 Подключение к электросети; Опасность получения травм!
- 181 Технические характеристики; Общая мощность 3,45 кВт; Отключение электропитания; Риск получения травм в ре-
- 182 Замена сетевого кабеля; Опасность поражения элект-; Схема подключения
- 183 Сервисная служба; – в сервисные центры Miele.; Типовая табличка; Гарантийный срок составляет 2 года.
- 184 Сертификат соответствия; – При температуре от –25 °C до +55 °C, а также кратковременно, не более 24; Дата изготовления
- 187 Контактная информация о Miele
- 191 Факс