Материнские платы MSI A520 - инструкция пользователя по применению, эксплуатации и установке на русском языке. Мы надеемся, она поможет вам решить возникшие у вас вопросы при эксплуатации техники.
Если остались вопросы, задайте их в комментариях после инструкции.
"Загружаем инструкцию", означает, что нужно подождать пока файл загрузится и можно будет его читать онлайн. Некоторые инструкции очень большие и время их появления зависит от вашей скорости интернета.

12
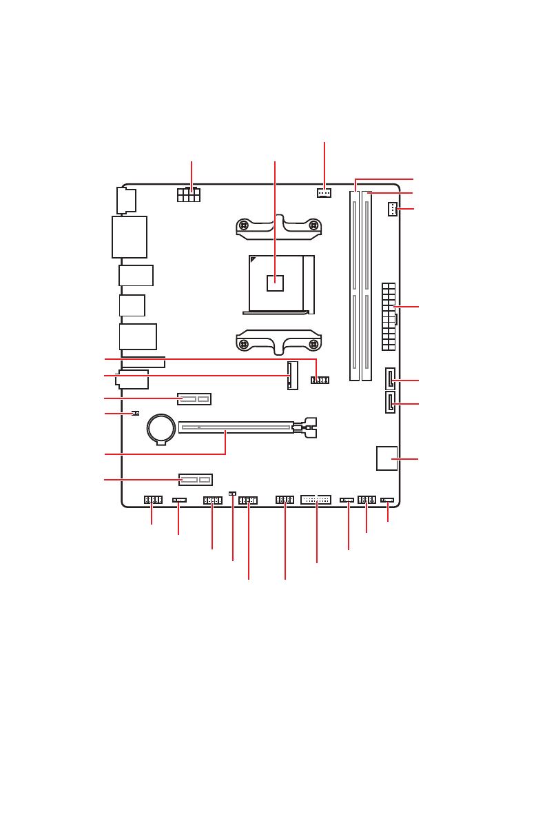
Компоненты материнской платы
Компоненты материнской платы
BAT1
JUSB3
JRGB1
SATA▼1▲2
M2_1
JTPM1
JUSB1 JUSB2
CPU_FAN1
SYS_FAN1
PCI_E1
PCI_E2
PCI_E3
JBAT1
Процессорный сокет
CPU_PWR1
JAUD1
JCI1
JFP1
JRAINBOW1
JFP2
ATX_PWR1
DIMMB1
DIMMA1
SATA3
SATA4
JCOM1
Содержание
- 6 Installing the Motherboard/ Installation des Motherboards/
- 7 VII; Connecting the Power Connectors/ Stromanschlüsse
- 9 IX; Installing a Graphics Card/ Einbau der Grafikkarte/ Installer
- 127 Содержание
- 128 Безопасное использование продукции
- 129 Технические характеристики
- 130 Подключение; RAID; USB; LAN
- 132 Center
- 133 Эксклюзивные
- 134 Комплект поставки
- 135 Задняя панель портов ввода/ вывода; индикатора; Таблица состояний индикатора порта LAN
- 136 ∙ Выбор устройства; Автоматическое всплывающее диалоговое окно
- 139 Процессор AM4
- 140 Слоты DIMM; Рекомендации по установке модулей памяти
- 141 MSI Gaming Series Graphics Card Bolster
- 142 Установка модуля M.2; Видео Инструкция
- 144 JAUD1: Разъем аудио передней панели
- 147 Разъем; Переключение режимов работы и скорости вращения вентилятора; Назначение контактов разъема для подключения вентилятора
- 148 JCOM1: Разъем последовательного порта
- 149 JCI1: Разъем датчика открытия корпуса; Использование датчика открытия корпуса
- 150 Сброс настроек BIOS до значений по умолчанию; Индикаторы отладки EZ
- 151 JRGB1: Разъем RGB LED; Подключение RGB светодиодных лент
- 152 JRAINBOW1: Разъем адресных RGB LED; Подключение адресных RGB светодиодных лент
- 153 Установка ОС, драйверов и утилит; Установка Windows® 10
- 154 Преимущества UEFI; ∙ 32-битная ОС Windows; Как проверить режим BIOS?; Режим загрузки UEFI
- 155 Настройка BIOS; всегда устанавливайте настройки по умолчанию; Вход в настройки BIOS; Функциональные клавиши
- 156 Сброс BIOS; очистки данных CMOS; Обновление BIOS; Обновление BIOS при помощи M-FLASH; Yes
- 157 Обновление BIOS при помощи MSI DRAGON CENTER; порт Flash BIOS
- 158 Режим EZ
- 160 ▪ Добавление пункта BIOS в меню Избранное
- 161 Режим разгона; переключатель режимов установки; ∙ Выбор меню BIOS
- 162 Меню OC
- 164 Enter
- 166 ii
Характеристики
Остались вопросы?Не нашли свой ответ в руководстве или возникли другие проблемы? Задайте свой вопрос в форме ниже с подробным описанием вашей ситуации, чтобы другие люди и специалисты смогли дать на него ответ. Если вы знаете как решить проблему другого человека, пожалуйста, подскажите ему :)