Котел Buderus Logano G221-32 - инструкция пользователя по применению, эксплуатации и установке на русском языке. Мы надеемся, она поможет вам решить возникшие у вас вопросы при эксплуатации техники.
Если остались вопросы, задайте их в комментариях после инструкции.
"Загружаем инструкцию", означает, что нужно подождать пока файл загрузится и можно будет его читать онлайн. Некоторые инструкции очень большие и время их появления зависит от вашей скорости интернета.

2
Информация об оборудовании
Logano G221 – 6 720 801 320 (2011/12)
11
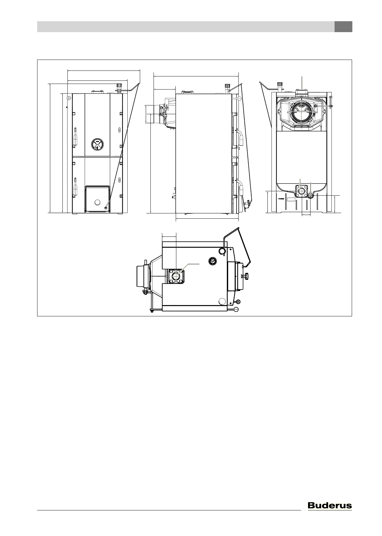
2.12 Размеры и технические характеристики
Рис. 4
Размеры и подключения
VK
= подающая линия котла
RK
= обратная линия котла
EL
= слив (подключение крана для наполнения и слива)
B
K
B
H
H
K
H
AA
AA
L
AA
L
L
K
VK
H
RK
H
EL
A
1
RK
EL
A
2
VK
6 720 643 469-31.1T
Содержание
- 3 Содержание; Охрана окружающей среды/утилизация 32
- 4 Правила техники безопасности
- 5 Осторожно открывайте двери котла.
- 6 Никогда не перекрывайте отопительный контур.
- 7 Информация об оборудовании; Применение по назначению; Условия для пуска котла в эксплуатацию; Максимальная температура котла:; Указания по монтажу; Не кладите горючие предметы на котёл.
- 8 Приточный воздух; угроза для жизни из-за; Горючесть строительных материалов; негорючие
- 9 Описание оборудования; Основные части котла:; Дымовая заслонка
- 10 Комплект поставки; Дополнительное оборудование; Комплект поставки; Узел; Их можно заказать дополнительно.
- 11 Заводская табличка; Заводская табличка
- 12 Размеры и технические характеристики; Размеры и подключения; = подающая линия котла; = обратная линия котла; VK; RK
- 13 Размеры
- 14 Технические характеристики
- 15 Потери давления; Гидравлическое сопротивление, мбар; mbar
- 16 Общие рекомендации по топливу; Максимальная длина поленьев
- 17 Транспортировка и установка; Транспортировка; Транспортировка грузовыми тележками; Подъём котла краном; Крановая проушина
- 18 Установка котла; Минимальные расстояния от стен; Расстояния от стен; Фундамент или несгораемое основание; угроза жизни от взрыва и; Размер; Горючие материалы
- 19 Поднимите котёл со специального поддона.
- 20 Монтаж; Монтаж регулятора горения; Откройте загрузочную дверцу.; Монтаж облицовки; Монтаж кронштейнов; Рис. 10 Установка передней траверсы; Монтаж тяги в левой стенке котла; Наверните ручку на тягу.
- 21 Рис. 12 Монтаж боковых стенок; Установка верхней крышки котла; Рис. 13 Установка крышки котла и
- 22 Установите регулятор давления при 30; Соединение тяги с дымовой заслонкой
- 23 Рис. 18 Установка задней панели; Задняя панель; Установка передней панели; Рис. 19 Установка передней панели; Передняя панель; Снимите переднюю панель.; Штифт шарнирного кронштейна
- 24 Указания по подаче приточного воздуха
- 25 Рис. 21 Расположение ограничителя тяги /; Топливо; номинальной мощности
- 26 Выполнение гидравлических подключений; Подключение системы отопления; Подключите обратную линию к патрубку RK.
- 27 Рис. 24 Термоманометр
- 28 Ввод в эксплуатацию; Создание рабочего давления; Рис. 25 Термоманометр
- 29 Настройка регулятора горения; производится по красной шкале регулятора.; Рис. 27 Заводская табличка
- 30 Растапливание котла; Рис. 28 Открытая дымовая заслонка; Дверца топочной камеры
- 31 Энергопотребление; опасность получения
- 32 Рис. 32 Дозагрузка дров; Проверка термической защиты; Работы при пуске в эксплуатацию; Таб. 12 Протокол пуска в эксплуатацию
- 33 Прекращение топки котла; Тщательно очистите отопительную систему при; Временное прекращение эксплуатации котла; Очистите зольную камеру.; Действия в аварийной ситуации; Упаковка; возможно повреждение
- 34 Чистка и техническое обслуживание; Периодичность чистки котла; Таб. 13 Периодичность чистки котла
- 35 Очистите загрузочную и зольную дверцы.; Зольный ящик; Осторожно снимите крышку люка.; Крепёжная вставка
- 36 Проверка рабочего давления; Рис. 36 Термоманометр; Проверка термической защиты
- 37 Протокол контрольного осмотра и технического обслуживания
- 38 Неисправности и их устранение; Неисправность
- 39 Алфавитный указатель

