Котел Bosch Tronic 5000 H ErP - инструкция пользователя по применению, эксплуатации и установке на русском языке. Мы надеемся, она поможет вам решить возникшие у вас вопросы при эксплуатации техники.
Если остались вопросы, задайте их в комментариях после инструкции.
"Загружаем инструкцию", означает, что нужно подождать пока файл загрузится и можно будет его читать онлайн. Некоторые инструкции очень большие и время их появления зависит от вашей скорости интернета.

10
|
Дані про прилад
UA
6 720 647 615 2011/03
2.13
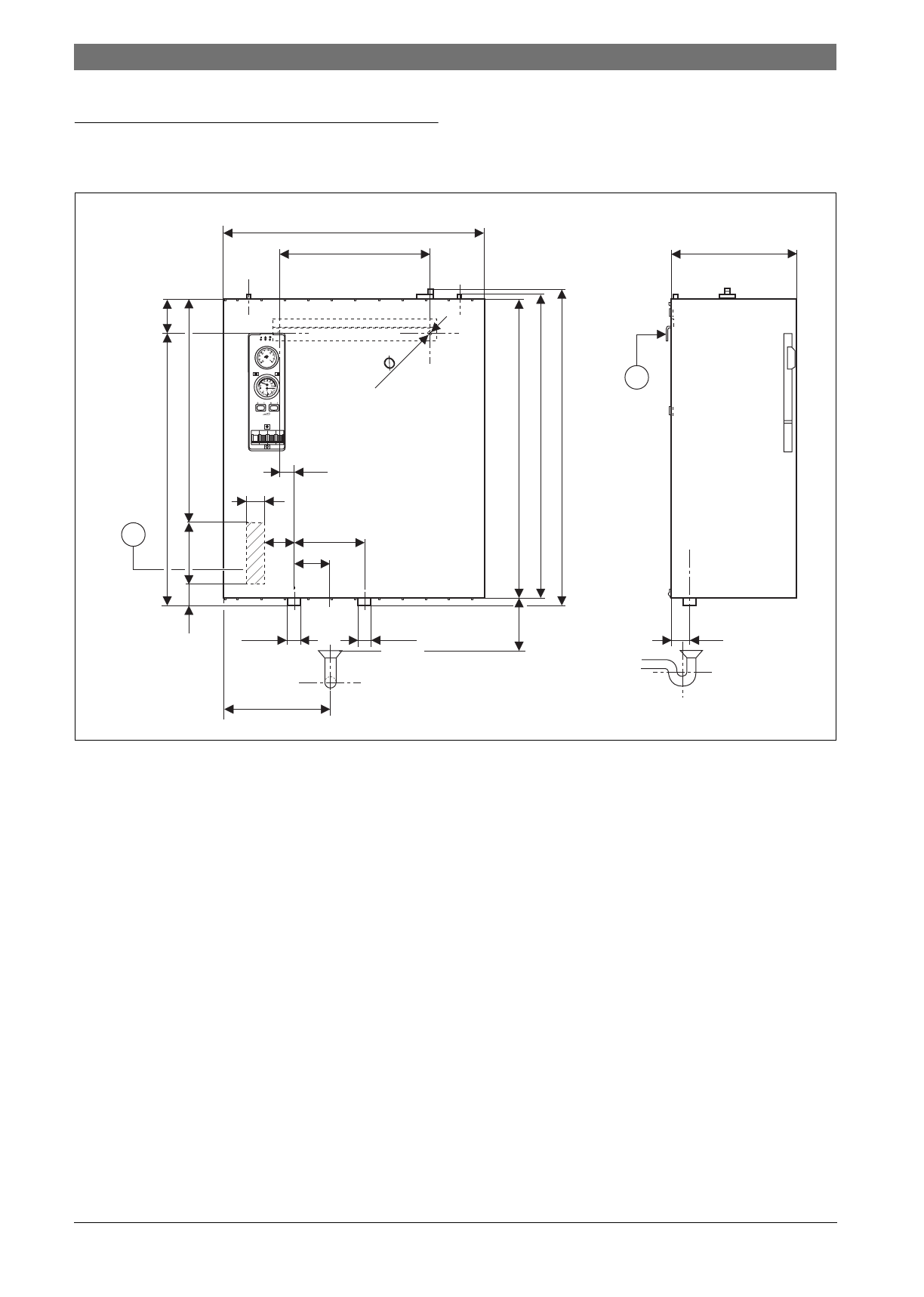
Розміри та технічні характеристики
2.13.1 Виміри котла Tronic 5000 H 4 — 18
Мал. 2
Підключення та габарити котла Tronic 5000 H 4 — 18
1
Кабельний ввід у прилад
2
Монтажна скоба
EL
Стік (сифон)
RK
Зворотна лінія подачі опалювального котла (G
¾
")
VK
Пряма лінія подачі опалювального котла (G
¾
")
∞
320
75
31
40
63
150
268
224
555
40
G3/4
G3/4
2x
10
674
650
639
250
582
72
46
131
477
1
6 720 647 615-01.2ITL
2
VK
RK
EL
Характеристики
Остались вопросы?Не нашли свой ответ в руководстве или возникли другие проблемы? Задайте свой вопрос в форме ниже с подробным описанием вашей ситуации, чтобы другие люди и специалисты смогли дать на него ответ. Если вы знаете как решить проблему другого человека, пожалуйста, подскажите ему :)












